2013September
20.5 million yen, 4LDK, 103.5 sq m
New Homes » Tokai » Shizuoka Prefecture » Iwata
 
| | Iwata City, Shizuoka Prefecture 静岡県磐田市 |
| Enshu Railway "Eastern is small" walk 4 minutes 遠州鉄道「東部小」歩4分 |
| Special Price New Year New Year sales events 1 / 4 1 / 5 Iwata Nishikaizuka five terms All two buildings Sunny Parking four Allowed Site tours being held in the net at Yamada, real-estate and building website 新年特別価格 新春販売会1/4 1/5 磐田 西貝塚5期 全2棟 日当たり良好 駐車場4台可 山田宅建ホームページにてネットで現場見学会開催中 |
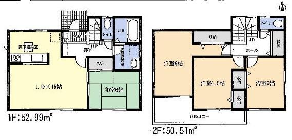
Price 価格 | | 20.5 million yen 2050万円 | Floor plan 間取り | | 4LDK 4LDK | Units sold 販売戸数 | | 1 units 1戸 | Land area 土地面積 | | 200.74 sq m (registration) 200.74m2(登記) | Building area 建物面積 | | 103.5 sq m (measured) 103.5m2(実測) | Driveway burden-road 私道負担・道路 | | Nothing 無 | Completion date 完成時期(築年月) | | September 2013 2013年9月 | Address 住所 | | Iwata City, Shizuoka Prefecture Nishikaizuka 静岡県磐田市西貝塚 | Traffic 交通 | | Enshu Railway "Eastern is small" walk 4 minutes 遠州鉄道「東部小」歩4分 | Related links 関連リンク | | [Related Sites of this company] 【この会社の関連サイト】 | Contact お問い合せ先 | | (Yes) Yamada, real-estate and building TEL: 053-584-3115 Please inquire as "saw SUUMO (Sumo)" (有)山田宅建TEL:053-584-3115「SUUMO(スーモ)を見た」と問い合わせください | Time residents 入居時期 | | Consultation 相談 | Land of the right form 土地の権利形態 | | Ownership 所有権 | Structure and method of construction 構造・工法 | | Wooden 2-story 木造2階建 | Overview and notices その他概要・特記事項 | | Building confirmation number: 03670 建築確認番号:03670 | Company profile 会社概要 | | <Marketing alliance (agency)> Shizuoka Governor (4) No. 011219 No. (Yes) Yamada, real-estate and building Yubinbango434-0036 Yokosuka Hamamatsu, Shizuoka Prefecture Hamakita 879-1 <販売提携(代理)>静岡県知事(4)第011219号(有)山田宅建〒434-0036 静岡県浜松市浜北区横須賀879-1 |
 Local appearance photo
現地外観写真
Floor plan間取り図  20.5 million yen, 4LDK, Land area 200.74 sq m , Building area 103.5 sq m
2050万円、4LDK、土地面積200.74m2、建物面積103.5m2
Location
|