New Homes » Tokai » Shizuoka Prefecture » Shimizu-ku
 
| | Shizuoka City, Shimizu-ku, 静岡県静岡市清水区 |
| ShizuTetsu just line "Takahashi east" walk 5 minutes しずてつジャストライン「高橋東」歩5分 |
| Shimizu-ku, Takahashi in five buildings imposing complete ☆ Fully equipped storage lot ■ 0800-805-3543 ■ Please feel free to contact us ☆ 清水区高橋に5棟堂々完成☆設備充実収納たっぷり■0800-805-3543■お気軽にお問い合わせください☆ |
Features pickup 特徴ピックアップ | | Construction housing performance with evaluation / Design house performance with evaluation / Corresponding to the flat-35S / Pre-ground survey / Parking two Allowed / Immediate Available / Super close / System kitchen / Yang per good / All room storage / A quiet residential area / Shaping land / garden / Washbasin with shower / Face-to-face kitchen / Barrier-free / Bathroom 1 tsubo or more / 2-story / South balcony / Double-glazing / Warm water washing toilet seat / Nantei / Underfloor Storage / The window in the bathroom / TV monitor interphone / Ventilation good / All living room flooring / Water filter / City gas 建設住宅性能評価付 /設計住宅性能評価付 /フラット35Sに対応 /地盤調査済 /駐車2台可 /即入居可 /スーパーが近い /システムキッチン /陽当り良好 /全居室収納 /閑静な住宅地 /整形地 /庭 /シャワー付洗面台 /対面式キッチン /バリアフリー /浴室1坪以上 /2階建 /南面バルコニー /複層ガラス /温水洗浄便座 /南庭 /床下収納 /浴室に窓 /TVモニタ付インターホン /通風良好 /全居室フローリング /浄水器 /都市ガス | Price 価格 | | 21,800,000 yen ~ 24,800,000 yen 2180万円 ~ 2480万円 | Floor plan 間取り | | 4LDK 4LDK | Units sold 販売戸数 | | 2 units 2戸 | Total units 総戸数 | | 5 units 5戸 | Land area 土地面積 | | 124.34 sq m ~ 125.45 sq m 124.34m2 ~ 125.45m2 | Building area 建物面積 | | 94.39 sq m ~ 94.81 sq m 94.39m2 ~ 94.81m2 | Driveway burden-road 私道負担・道路 | | Road width: 4m ~ 4.9m, Asphaltic pavement 道路幅:4m ~ 4.9m、アスファルト舗装 | Completion date 完成時期(築年月) | | November 2013 2013年11月 | Address 住所 | | Shizuoka City, Shimizu-ku, Takahashi 1-1682-1 静岡県静岡市清水区高橋1-1682-1 | Traffic 交通 | | ShizuTetsu just line "Takahashi east" walk 5 minutes しずてつジャストライン「高橋東」歩5分 | Related links 関連リンク | | [Related Sites of this company] 【この会社の関連サイト】 | Contact お問い合せ先 | | TEL: 0800-602-4936 [Toll free] mobile phone ・ Also available from PHS Caller ID is not notified Please contact the "saw SUUMO (Sumo)" If it does not lead, If the real estate company TEL:0800-602-4936【通話料無料】携帯電話・PHSからもご利用いただけます 発信者番号は通知されません 「SUUMO(スーモ)を見た」と問い合わせください つながらない方、不動産会社の方は
| Building coverage, floor area ratio 建ぺい率・容積率 | | Kenpei rate: 60%, Volume ratio: 200% 建ペい率:60%、容積率:200% | Time residents 入居時期 | | Immediate available 即入居可 | Land of the right form 土地の権利形態 | | Ownership 所有権 | Structure and method of construction 構造・工法 | | Wooden 2-story 木造2階建 | Use district 用途地域 | | Two mid-high 2種中高 | Overview and notices その他概要・特記事項 | | Building confirmation number: No. 13SGS-A-01-0800 建築確認番号:第13SGS-A-01-0800号 | Company profile 会社概要 | | <Mediation> Shizuoka Governor (1) No. 013206 (Ltd.) property Yubinbango420-0043 Shizuoka City, Aoi-ku, Kawabe-cho 2-2-22 <仲介>静岡県知事(1)第013206号(株)プロパティ〒420-0043 静岡県静岡市葵区川辺町2-2-22 |
Local appearance photo現地外観写真  It is the appearance of the C Building ☆
C号棟の外観です☆
Kitchenキッチン  Face-to-face system Kitchen ☆
対面式のシステムキッチン☆
Bathroom浴室  Bathroom with large windows ☆
大きな窓のある浴室☆
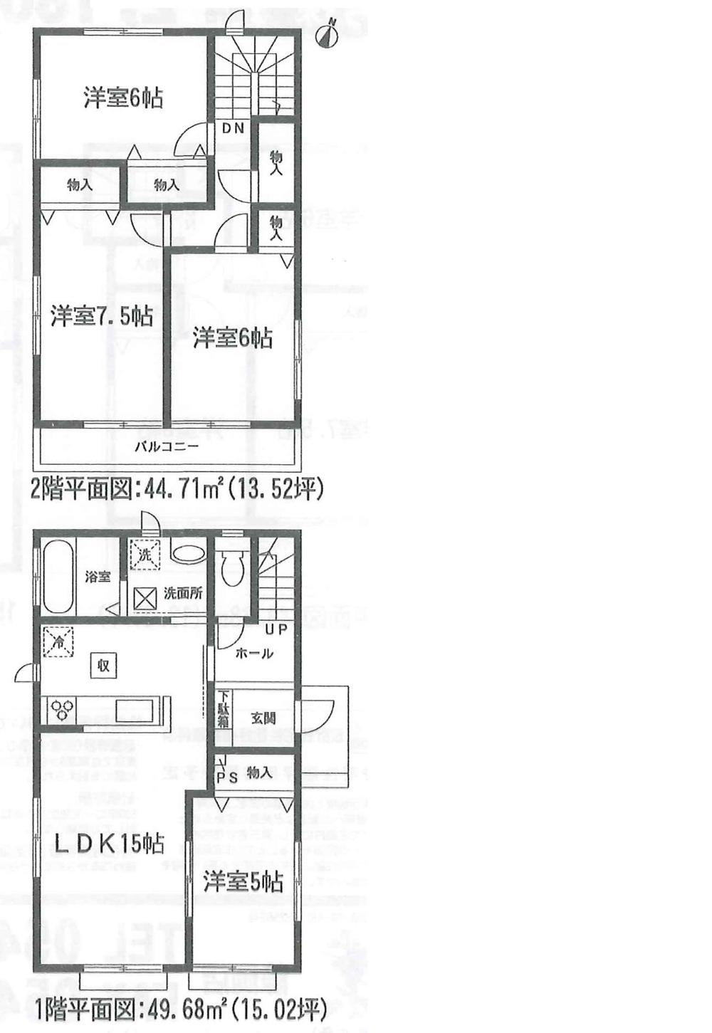
Floor plan間取り図  (C Building), Price 24,800,000 yen, 4LDK, Land area 125.45 sq m , Building area 94.39 sq m
(C号棟)、価格2480万円、4LDK、土地面積125.45m2、建物面積94.39m2
Livingリビング  LDK of easy-to-use rectangle ☆
使い勝手の良い長方形のLDK☆
Non-living roomリビング以外の居室  Each room, Storage rooms ☆
各部屋、収納完備☆
Entrance玄関  There storage of a large capacity in front on ☆
入って正面には大容量の収納有り☆
Wash basin, toilet洗面台・洗面所  Washbasin with cleanliness ☆
清潔感のある洗面台☆
Toiletトイレ  Toilet with a handrail ☆
手すり付きのトイレ☆
Supermarketスーパー  886m until Coop Shizuoka Shimonohigashi shop
コープしずおか下野東店まで886m
 The entire compartment Figure
全体区画図
 Other
その他
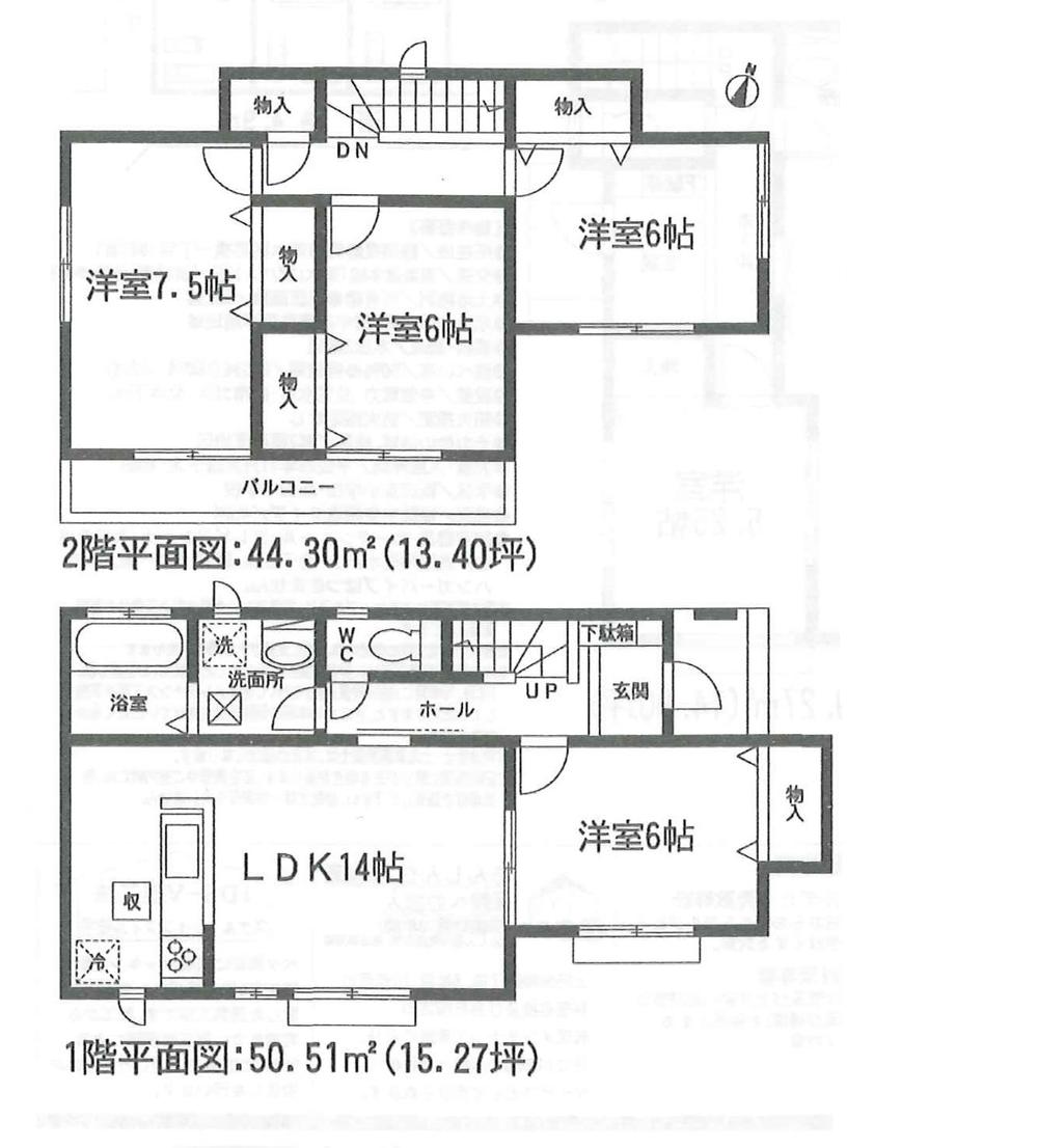
Floor plan間取り図  (B Building), Price 23.8 million yen, 4LDK, Land area 124.34 sq m , Building area 94.81 sq m
(B号棟)、価格2380万円、4LDK、土地面積124.34m2、建物面積94.81m2
 Living
リビング
 Non-living room
リビング以外の居室
 Entrance
玄関
Supermarketスーパー  612m until Maxvalu Shimizu Yasaka shop
マックスバリュ清水八坂店まで612m
 Living
リビング
 Non-living room
リビング以外の居室
Convenience storeコンビニ  413m to Seven-Eleven Shimizu Iida-cho shop
セブンイレブン清水飯田町店まで413m
 Non-living room
リビング以外の居室
Location
|