New Homes » Tokai » Shizuoka Prefecture » Suruga-ku


Shizuoka Prefecture Shizuoka Suruga-ku,
Shizutetsu bus "Toro chome" walk 1 minute
LDK15 tatami mats or more, Face-to-face kitchen, Walk-in closet, Vibration Control ・ Seismic isolation ・ Earthquake resistant, Parking two Allowed, Fiscal year Available, System kitchen, Bathroom Dryer, Toilet 2 places, 2-story, Southeast direction, Hot water
LDK15 tatami mats or more, Face-to-face kitchen, Walk-in closet, Vibration Control ・ Seismic isolation ・ Earthquake resistant, Parking two Allowed, Fiscal year Available, System kitchen, Bathroom Dryer, Toilet 2 places, 2-story, Southeast direction, Warm water washing toilet seat, Underfloor Storage, All room 6 tatami mats or more, City gas, Readjustment land within
Features pickup
Vibration Control ・ Seismic isolation ・ Earthquake resistant / Parking two Allowed / Fiscal year Available / System kitchen / Bathroom Dryer / LDK15 tatami mats or more / Face-to-face kitchen / Toilet 2 places / 2-story / Southeast direction / Warm water washing toilet seat / Underfloor Storage / Walk-in closet / All room 6 tatami mats or more / City gas / Readjustment land within
Price
28.8 million yen
Floor plan
4LDK + S (storeroom)
Units sold
1 units
Total units
1 units
Land area
116.54 sq m (measured)
Building area
98.95 sq m (measured)
Driveway burden-road
Nothing, Northwest 5.6m width (contact the road width 5.4m)
Completion date
January 2014
Address
Shizuoka Prefecture Shizuoka Suruga-ku, Toro 1
Traffic
Shizutetsu bus "Toro chome" walk 1 minute
Related links
[Related Sites of this company]
Person in charge
Personnel Tsubasa Makino Age: 20 Daigyokai experience: you looking for a 5-year fun and cheerful well together to consent properties!
Contact
TEL: 0800-603-1205 [Toll free] mobile phone ・ Also available from PHS
Caller ID is not notified
Please contact the "saw SUUMO (Sumo)"
If it does not lead, If the real estate company
Building coverage, floor area ratio
60% ・ 200%
Time residents
January 2014
Land of the right form
Ownership
Structure and method of construction
Wooden 2-story
Construction
Aidi Home Co., Ltd.
Use district
Semi-industrial
Other limitations
Regulations have by the Landscape Act, Height district, Shade limit Yes
Overview and notices
Contact: Tsubasa Makino, Facilities: Public Water Supply, This sewage, City gas, Building confirmation number: No. KS113-3610-00680, Parking: car space
Company profile
<Mediation> Shizuoka Governor (8) No. 005704 (Ltd.) first real estate Tamachi store Yubinbango420-0068 Shizuoka City, Aoi-ku, Tamachi 5-10-1


Compartment figure

Compartment figure. 28.8 million yen, 4LDK + S (storeroom), Land area 116.54 sq m , Building area 98.95 sq m
28.8 million yen, 4LDK + S (storeroom), Land area 116.54 sq m , Building area 98.95 sq m

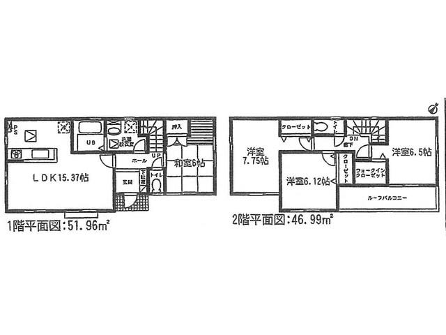
Floor plan

Floor plan. 28.8 million yen, 4LDK + S (storeroom), Land area 116.54 sq m , Building area 98.95 sq m
28.8 million yen, 4LDK + S (storeroom), Land area 116.54 sq m , Building area 98.95 sq m

Same specifications photos (Other introspection)
Same specifications photos (Other introspection)

Same specifications photos (Other introspection)
Same specifications photos (Other introspection)

Same specifications photos (Other introspection)
Same specifications photos (Other introspection)



Location