New Homes » Tokai » Shizuoka Prefecture » Yaizu
 
| | Shizuoka Prefecture Yaizu 静岡県焼津市 |
| JR Tokaido Line "Nishi Yaizu" walk 20 minutes JR東海道本線「西焼津」歩20分 |
| If new construction spec home Leave it to the Corporation Frontier! After a long time appeared! Yaizu Shodo of ready-built house! Good living environment! Day preeminent! Parking parallel three possible! Conditions is close to the best! ! 新築建売住宅なら株式会社フロンティアへおまかせ!久々登場!焼津小土の建売住宅!住環境良し!日当り抜群!駐車場並列3台可能!ベストに近い条件です!! |
Features pickup 特徴ピックアップ | | Corresponding to the flat-35S / Pre-ground survey / Year Available / Parking three or more possible / Energy-saving water heaters / Super close / Facing south / System kitchen / Bathroom Dryer / Yang per good / All room storage / Siemens south road / A quiet residential area / LDK15 tatami mats or more / Around traffic fewer / Corner lot / Japanese-style room / Shaping land / Washbasin with shower / Face-to-face kitchen / 3 face lighting / Toilet 2 places / Bathroom 1 tsubo or more / 2-story / South balcony / Double-glazing / Otobasu / Warm water washing toilet seat / Underfloor Storage / The window in the bathroom / TV monitor interphone / Ventilation good / Water filter / Flat terrain フラット35Sに対応 /地盤調査済 /年内入居可 /駐車3台以上可 /省エネ給湯器 /スーパーが近い /南向き /システムキッチン /浴室乾燥機 /陽当り良好 /全居室収納 /南側道路面す /閑静な住宅地 /LDK15畳以上 /周辺交通量少なめ /角地 /和室 /整形地 /シャワー付洗面台 /対面式キッチン /3面採光 /トイレ2ヶ所 /浴室1坪以上 /2階建 /南面バルコニー /複層ガラス /オートバス /温水洗浄便座 /床下収納 /浴室に窓 /TVモニタ付インターホン /通風良好 /浄水器 /平坦地 | Price 価格 | | 21,800,000 yen ~ 22,800,000 yen 2180万円 ~ 2280万円 | Floor plan 間取り | | 4LDK 4LDK | Units sold 販売戸数 | | 2 units 2戸 | Total units 総戸数 | | 2 units 2戸 | Land area 土地面積 | | 132.06 sq m ~ 133.78 sq m (39.94 tsubo ~ 40.46 tsubo) (Registration) 132.06m2 ~ 133.78m2(39.94坪 ~ 40.46坪)(登記) | Building area 建物面積 | | 96.38 sq m ~ 96.79 sq m (29.15 tsubo ~ 29.27 square meters) 96.38m2 ~ 96.79m2(29.15坪 ~ 29.27坪) | Driveway burden-road 私道負担・道路 | | Road width: 3.3m ~ 4.6m, Asphaltic pavement 道路幅:3.3m ~ 4.6m、アスファルト舗装 | Completion date 完成時期(築年月) | | December 2013 schedule 2013年12月予定 | Address 住所 | | Shizuoka Prefecture Yaizu Shodo 静岡県焼津市小土 | Traffic 交通 | | JR Tokaido Line "Nishi Yaizu" walk 20 minutes JR Tokaido Line "Yaizu" walk 21 minutes JR東海道本線「西焼津」歩20分 JR東海道本線「焼津」歩21分
| Contact お問い合せ先 | | TEL: 054-221-0005 Please inquire as "saw SUUMO (Sumo)" TEL:054-221-0005「SUUMO(スーモ)を見た」と問い合わせください | Building coverage, floor area ratio 建ぺい率・容積率 | | Kenpei rate: 60%, Volume ratio: 200% 建ペい率:60%、容積率:200% | Time residents 入居時期 | | 1 month after the contract 契約後1ヶ月 | Land of the right form 土地の権利形態 | | Ownership 所有権 | Structure and method of construction 構造・工法 | | Wooden 2-story (framing method) 木造2階建(軸組工法) | Use district 用途地域 | | Two dwellings 2種住居 | Land category 地目 | | Residential land 宅地 | Overview and notices その他概要・特記事項 | | Building confirmation number: No. H25SHC116021 建築確認番号:第H25SHC116021号 | Company profile 会社概要 | | <Mediation> Shizuoka Governor (1) No. 013505 (Ltd.) Frontier Yubinbango420-0871 Shizuoka City, Aoi-ku, calamus 2-15-25 <仲介>静岡県知事(1)第013505号(株)フロンティア〒420-0871 静岡県静岡市葵区昭府2-15-25 |
Rendering (appearance)完成予想図(外観)  (1 Building) Rendering
(1号棟)完成予想図
 (Building 2) Rendering
(2号棟)完成予想図
 Cityscape Rendering
街並完成予想図
Floor plan間取り図  (1 Building), Price 22,800,000 yen, 4LDK, Land area 132.06 sq m , Building area 96.38 sq m
(1号棟)、価格2280万円、4LDK、土地面積132.06m2、建物面積96.38m2
Otherその他  map
地図
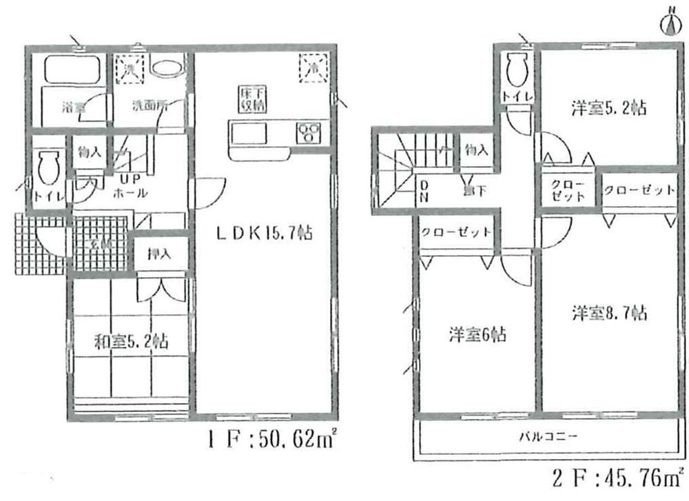
Floor plan間取り図  (Building 2), Price 21,800,000 yen, 4LDK, Land area 133.78 sq m , Building area 96.79 sq m
(2号棟)、価格2180万円、4LDK、土地面積133.78m2、建物面積96.79m2
Location
|