New Homes » Tokai » Shizuoka Prefecture » Yaizu
 
| | Shizuoka Prefecture Yaizu 静岡県焼津市 |
| JR Tokaido Line "Nishi Yaizu" walk 24 minutes JR東海道本線「西焼津」歩24分 |
| Yaizu December to Shodo, Two buildings appeared! ! 40 square meters site of ☆ You can also enjoy gardening as a garden because it is per yang good ■ 0800-805-3543 ■ Please feel free to contact us! 焼津市小土に12月、2棟登場!!40坪の敷地☆ 陽当り良好だからお庭としてガーデニングも楽しめます■0800-805-3543■お気軽にお問い合わせください! |
Features pickup 特徴ピックアップ | | Corresponding to the flat-35S / Pre-ground survey / Year Available / Parking two Allowed / Facing south / System kitchen / Bathroom Dryer / Yang per good / A quiet residential area / Japanese-style room / Washbasin with shower / Face-to-face kitchen / Barrier-free / Toilet 2 places / Bathroom 1 tsubo or more / 2-story / South balcony / Double-glazing / Warm water washing toilet seat / Nantei / The window in the bathroom / TV monitor interphone / Ventilation good / Water filter / All rooms are two-sided lighting フラット35Sに対応 /地盤調査済 /年内入居可 /駐車2台可 /南向き /システムキッチン /浴室乾燥機 /陽当り良好 /閑静な住宅地 /和室 /シャワー付洗面台 /対面式キッチン /バリアフリー /トイレ2ヶ所 /浴室1坪以上 /2階建 /南面バルコニー /複層ガラス /温水洗浄便座 /南庭 /浴室に窓 /TVモニタ付インターホン /通風良好 /浄水器 /全室2面採光 | Price 価格 | | 21,800,000 yen ~ 22,800,000 yen 2180万円 ~ 2280万円 | Floor plan 間取り | | 4LDK 4LDK | Units sold 販売戸数 | | 2 units 2戸 | Total units 総戸数 | | 2 units 2戸 | Land area 土地面積 | | 132.06 sq m ~ 133.78 sq m 132.06m2 ~ 133.78m2 | Building area 建物面積 | | 96.38 sq m ~ 96.79 sq m 96.38m2 ~ 96.79m2 | Completion date 完成時期(築年月) | | December 2013 schedule 2013年12月予定 | Address 住所 | | Shizuoka Prefecture Yaizu Shodo 565-1 静岡県焼津市小土565-1他 | Traffic 交通 | | JR Tokaido Line "Nishi Yaizu" walk 24 minutes JR東海道本線「西焼津」歩24分
| Related links 関連リンク | | [Related Sites of this company] 【この会社の関連サイト】 | Contact お問い合せ先 | | TEL: 0800-602-4936 [Toll free] mobile phone ・ Also available from PHS Caller ID is not notified Please contact the "saw SUUMO (Sumo)" If it does not lead, If the real estate company TEL:0800-602-4936【通話料無料】携帯電話・PHSからもご利用いただけます 発信者番号は通知されません 「SUUMO(スーモ)を見た」と問い合わせください つながらない方、不動産会社の方は
| Building coverage, floor area ratio 建ぺい率・容積率 | | Kenpei rate: 60%, Volume ratio: 200% 建ペい率:60%、容積率:200% | Time residents 入居時期 | | December 2013 2013年12月 | Land of the right form 土地の権利形態 | | Ownership 所有権 | Structure and method of construction 構造・工法 | | Wooden 2-story 木造2階建 | Use district 用途地域 | | Two dwellings 2種住居 | Land category 地目 | | Residential land 宅地 | Overview and notices その他概要・特記事項 | | Building confirmation number: No. H25SHC116022 建築確認番号:第H25SHC116022号 | Company profile 会社概要 | | <Mediation> Shizuoka Governor (1) No. 013206 (Ltd.) property Yubinbango420-0043 Shizuoka City, Aoi-ku, Kawabe-cho 2-2-22 <仲介>静岡県知事(1)第013206号(株)プロパティ〒420-0043 静岡県静岡市葵区川辺町2-2-22 |
 Same specifications photo (kitchen)
同仕様写真(キッチン)
 Same specifications photo (bathroom)
同仕様写真(浴室)
 Same specifications photos (living)
同仕様写真(リビング)
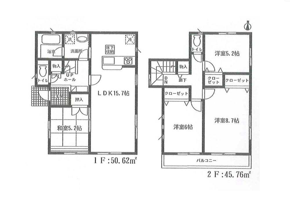
Floor plan間取り図  (Building 2), Price 21,800,000 yen, 4LDK, Land area 133.78 sq m , Building area 96.79 sq m
(2号棟)、価格2180万円、4LDK、土地面積133.78m2、建物面積96.79m2
 Same specifications photos (living)
同仕様写真(リビング)
 Same specifications photos (Other introspection)
同仕様写真(その他内観)
 The entire compartment Figure
全体区画図
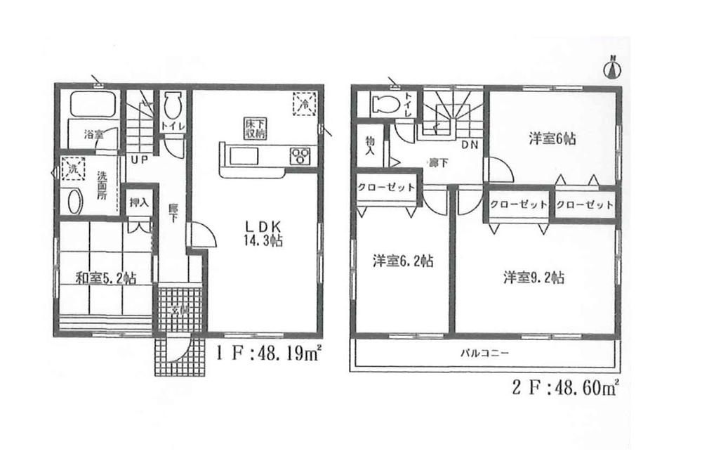
 (1 Building), Price 22,800,000 yen, 4LDK, Land area 132.06 sq m , Building area 96.38 sq m
(1号棟)、価格2280万円、4LDK、土地面積132.06m2、建物面積96.38m2
 Same specifications photos (living)
同仕様写真(リビング)
 Same specifications photos (Other introspection)
同仕様写真(その他内観)
 Same specifications photos (Other introspection)
同仕様写真(その他内観)
 Same specifications photos (Other introspection)
同仕様写真(その他内観)
 Same specifications photos (Other introspection)
同仕様写真(その他内観)
 Same specifications photos (Other introspection)
同仕様写真(その他内観)
 Same specifications photos (Other introspection)
同仕様写真(その他内観)
 Same specifications photos (Other introspection)
同仕様写真(その他内観)
 Same specifications photos (Other introspection)
同仕様写真(その他内観)
 Same specifications photos (Other introspection)
同仕様写真(その他内観)
 Same specifications photos (Other introspection)
同仕様写真(その他内観)
 Same specifications photos (Other introspection)
同仕様写真(その他内観)
Location
|