New Homes » Tokai » Shizuoka Prefecture » Yaizu
 
| | Shizuoka Prefecture Yaizu 静岡県焼津市 |
| JR Tokaido Line "Yaizu" walk 13 minutes JR東海道本線「焼津」歩13分 |
| Two buildings in Yaizu Daiei cho, January birth! Storage because plenty, Rooms also effective utilization ☆ ■ 0800-805-3543 ■ Please feel free to contact us ☆ 焼津市大栄町に2棟、1月誕生!収納たっぷりだから、お部屋も有効活用☆■0800-805-3543■お気軽にお問い合わせください☆ |
Features pickup 特徴ピックアップ | | Design house performance with evaluation / Corresponding to the flat-35S / Pre-ground survey / Parking two Allowed / Fiscal year Available / Facing south / System kitchen / Yang per good / All room storage / LDK15 tatami mats or more / Washbasin with shower / Face-to-face kitchen / Bathroom 1 tsubo or more / 2-story / Double-glazing / Warm water washing toilet seat / Underfloor Storage / The window in the bathroom / TV monitor interphone / All living room flooring / All room 6 tatami mats or more 設計住宅性能評価付 /フラット35Sに対応 /地盤調査済 /駐車2台可 /年度内入居可 /南向き /システムキッチン /陽当り良好 /全居室収納 /LDK15畳以上 /シャワー付洗面台 /対面式キッチン /浴室1坪以上 /2階建 /複層ガラス /温水洗浄便座 /床下収納 /浴室に窓 /TVモニタ付インターホン /全居室フローリング /全居室6畳以上 | Price 価格 | | 19,800,000 yen ~ 21,800,000 yen 1980万円 ~ 2180万円 | Floor plan 間取り | | 4LDK 4LDK | Units sold 販売戸数 | | 2 units 2戸 | Total units 総戸数 | | 2 units 2戸 | Land area 土地面積 | | 128.38 sq m ~ 128.39 sq m 128.38m2 ~ 128.39m2 | Building area 建物面積 | | 97.71 sq m ~ 98.54 sq m 97.71m2 ~ 98.54m2 | Completion date 完成時期(築年月) | | January 2014 will 2014年1月予定 | Address 住所 | | Shizuoka Prefecture Yaizu Daiei cho 3-5-1 静岡県焼津市大栄町3-5-1 | Traffic 交通 | | JR Tokaido Line "Yaizu" walk 13 minutes JR東海道本線「焼津」歩13分
| Related links 関連リンク | | [Related Sites of this company] 【この会社の関連サイト】 | Contact お問い合せ先 | | TEL: 0800-602-4936 [Toll free] mobile phone ・ Also available from PHS Caller ID is not notified Please contact the "saw SUUMO (Sumo)" If it does not lead, If the real estate company TEL:0800-602-4936【通話料無料】携帯電話・PHSからもご利用いただけます 発信者番号は通知されません 「SUUMO(スーモ)を見た」と問い合わせください つながらない方、不動産会社の方は
| Building coverage, floor area ratio 建ぺい率・容積率 | | Kenpei rate: 60%, Volume ratio: 150% 建ペい率:60%、容積率:150% | Time residents 入居時期 | | January 2015 will 2015年1月予定 | Land of the right form 土地の権利形態 | | Ownership 所有権 | Use district 用途地域 | | One middle and high 1種中高 | Overview and notices その他概要・特記事項 | | Building confirmation number: No. 13SGS-A-01-1234 建築確認番号:第13SGS-A-01-1234号 | Company profile 会社概要 | | <Mediation> Shizuoka Governor (1) No. 013206 (Ltd.) property Yubinbango420-0043 Shizuoka City, Aoi-ku, Kawabe-cho 2-2-22 <仲介>静岡県知事(1)第013206号(株)プロパティ〒420-0043 静岡県静岡市葵区川辺町2-2-22 |
 Same specifications photo (kitchen)
同仕様写真(キッチン)
 Same specifications photo (bathroom)
同仕様写真(浴室)
 Same specifications photos (living)
同仕様写真(リビング)
Floor plan間取り図  (Building 2), Price 21,800,000 yen, 4LDK, Land area 128.38 sq m , Building area 97.71 sq m
(2号棟)、価格2180万円、4LDK、土地面積128.38m2、建物面積97.71m2
 Same specifications photos (Other introspection)
同仕様写真(その他内観)
 The entire compartment Figure
全体区画図
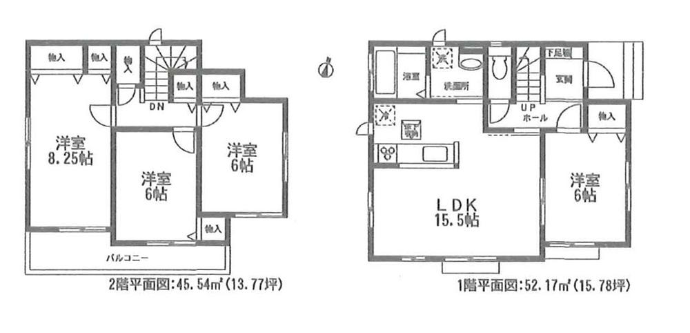
 (1 Building), Price 19,800,000 yen, 4LDK, Land area 128.39 sq m , Building area 98.54 sq m
(1号棟)、価格1980万円、4LDK、土地面積128.39m2、建物面積98.54m2
 Same specifications photos (Other introspection)
同仕様写真(その他内観)
 Same specifications photos (Other introspection)
同仕様写真(その他内観)
 Same specifications photos (Other introspection)
同仕様写真(その他内観)
 Same specifications photos (Other introspection)
同仕様写真(その他内観)
 Same specifications photos (Other introspection)
同仕様写真(その他内観)
 Same specifications photos (Other introspection)
同仕様写真(その他内観)
Location
|