New Homes » Kanto » Tokyo » Adachi-ku
 
| | Adachi-ku, Tokyo 東京都足立区 |
| Nippori ・ Toneri liner "Nishiarai Daishi west" walk 9 minutes 日暮里・舎人ライナー「西新井大師西」歩9分 |
| ・ Send your inquiry to "03-5851-9001"! ・ From time to time information meeting held in! Please feel free to contact us! ・お問い合わせは「03-5851-9001」まで!・随時案内会開催中!お気軽にお問い合わせください! |
| Pre-ground survey, Year Available, 2 along the line more accessible, It is close to the city, System kitchen, All room storage, Flat to the station, A quiet residential area, LDK15 tatami mats or more, Shaping land, Washbasin with shower, Face-to-face kitchen, Toilet 2 places, Bathroom 1 tsubo or more, Double-glazing, Warm water washing toilet seat, Underfloor Storage, The window in the bathroom, Urban neighborhood, Ventilation good, All living room flooring, Walk-in closet, Water filter, Three-story or more, All rooms are two-sided lighting, Flat terrain 地盤調査済、年内入居可、2沿線以上利用可、市街地が近い、システムキッチン、全居室収納、駅まで平坦、閑静な住宅地、LDK15畳以上、整形地、シャワー付洗面台、対面式キッチン、トイレ2ヶ所、浴室1坪以上、複層ガラス、温水洗浄便座、床下収納、浴室に窓、都市近郊、通風良好、全居室フローリング、ウォークインクロゼット、浄水器、3階建以上、全室2面採光、平坦地 |
Features pickup 特徴ピックアップ | | Corresponding to the flat-35S / Pre-ground survey / Immediate Available / 2 along the line more accessible / Super close / It is close to the city / System kitchen / Yang per good / All room storage / Flat to the station / A quiet residential area / LDK15 tatami mats or more / Around traffic fewer / Shaping land / Washbasin with shower / Face-to-face kitchen / Toilet 2 places / Bathroom 1 tsubo or more / Double-glazing / Warm water washing toilet seat / Underfloor Storage / The window in the bathroom / TV monitor interphone / Urban neighborhood / Ventilation good / All living room flooring / Built garage / Walk-in closet / Water filter / Three-story or more / City gas / All rooms are two-sided lighting / Flat terrain フラット35Sに対応 /地盤調査済 /即入居可 /2沿線以上利用可 /スーパーが近い /市街地が近い /システムキッチン /陽当り良好 /全居室収納 /駅まで平坦 /閑静な住宅地 /LDK15畳以上 /周辺交通量少なめ /整形地 /シャワー付洗面台 /対面式キッチン /トイレ2ヶ所 /浴室1坪以上 /複層ガラス /温水洗浄便座 /床下収納 /浴室に窓 /TVモニタ付インターホン /都市近郊 /通風良好 /全居室フローリング /ビルトガレージ /ウォークインクロゼット /浄水器 /3階建以上 /都市ガス /全室2面採光 /平坦地 | Event information イベント情報 | | Local guide Board (Please be sure to ask in advance) schedule / Now open 現地案内会(事前に必ずお問い合わせください)日程/公開中 | Price 価格 | | 33,800,000 yen 3380万円 | Floor plan 間取り | | 2LDK + 2S (storeroom) 2LDK+2S(納戸) | Units sold 販売戸数 | | 1 units 1戸 | Total units 総戸数 | | 1 units 1戸 | Land area 土地面積 | | 115.63 sq m (34.97 tsubo) (Registration) 115.63m2(34.97坪)(登記) | Building area 建物面積 | | 115.63 sq m (34.97 tsubo) (Registration), Among the first floor garage 9.93 sq m 115.63m2(34.97坪)(登記)、うち1階車庫9.93m2 | Driveway burden-road 私道負担・道路 | | Nothing, East 4m width (contact the road width 6.3m) 無、東4m幅(接道幅6.3m) | Completion date 完成時期(築年月) | | October 2013 2013年10月 | Address 住所 | | Adachi-ku, Tokyo Nishiarai 6-23-24 東京都足立区西新井6-23-24 | Traffic 交通 | | Nippori ・ Toneri liner "Nishiarai Daishi west" walk 9 minutes Daishisen Tobu "Daishimae" walk 9 minutes Isesaki Tobu "Nishiarai" walk 21 minutes 日暮里・舎人ライナー「西新井大師西」歩9分 東武大師線「大師前」歩9分 東武伊勢崎線「西新井」歩21分
| Related links 関連リンク | | [Related Sites of this company] 【この会社の関連サイト】 | Person in charge 担当者より | | Person in charge of real-estate and building mountains Koji Age: 40 Daigyokai experience: five years really to customers My home is Irassharu believe want, As able to say that the "house was good to buy.", We are trying every day. 担当者宅建山中 光治年齢:40代業界経験:5年本気でマイホームが欲しいと考えていらっしゃるお客様に、「家が買えて良かった」と言って頂ける様に、日々心がけております。 | Contact お問い合せ先 | | TEL: 0800-603-3161 [Toll free] mobile phone ・ Also available from PHS Caller ID is not notified Please contact the "saw SUUMO (Sumo)" If it does not lead, If the real estate company TEL:0800-603-3161【通話料無料】携帯電話・PHSからもご利用いただけます 発信者番号は通知されません 「SUUMO(スーモ)を見た」と問い合わせください つながらない方、不動産会社の方は
| Building coverage, floor area ratio 建ぺい率・容積率 | | 60% ・ 160% 60%・160% | Time residents 入居時期 | | Immediate available 即入居可 | Land of the right form 土地の権利形態 | | Ownership 所有権 | Structure and method of construction 構造・工法 | | Wooden three-story (framing method) 木造3階建(軸組工法) | Use district 用途地域 | | One dwelling 1種住居 | Other limitations その他制限事項 | | Height district, Quasi-fire zones 高度地区、準防火地域 | Overview and notices その他概要・特記事項 | | Contact: Yamanaka Koji, Facilities: Public Water Supply, This sewage, City gas, Parking: Garage 担当者:山中 光治、設備:公営水道、本下水、都市ガス、駐車場:車庫 | Company profile 会社概要 | | <Marketing alliance (agency)> Governor of Tokyo (3) The 080,734 No. Century 21 (Ltd.) Sale land Takenotsuka store sales Section 1 Yubinbango121-0064 Adachi-ku, Tokyo Hokima 1-7-3 <販売提携(代理)>東京都知事(3)第080734号センチュリー21(株)セールランド竹ノ塚店営業一課〒121-0064 東京都足立区保木間1-7-3 |
Local appearance photo現地外観写真  Local (11 May 2013) Shooting
現地(2013年11月)撮影
Kitchenキッチン  Indoor (11 May 2013) Shooting
室内(2013年11月)撮影
Bathroom浴室  Indoor (11 May 2013) Shooting
室内(2013年11月)撮影
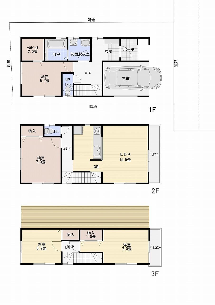
Floor plan間取り図  33,800,000 yen, 2LDK + 2S (storeroom), Land area 115.63 sq m , Building area 115.63 sq m
3380万円、2LDK+2S(納戸)、土地面積115.63m2、建物面積115.63m2
Livingリビング  Indoor (11 May 2013) Shooting
室内(2013年11月)撮影
Non-living roomリビング以外の居室  Indoor (11 May 2013) Shooting
室内(2013年11月)撮影
Wash basin, toilet洗面台・洗面所  Indoor (11 May 2013) Shooting
室内(2013年11月)撮影
Toiletトイレ  Indoor (11 May 2013) Shooting
室内(2013年11月)撮影
Station駅  Nishiarai Daishi 660m to West Railway Station
西新井大師西駅まで660m
Non-living roomリビング以外の居室  Indoor (11 May 2013) Shooting
室内(2013年11月)撮影
Primary school小学校  224m to Adachi Ward Nishiarai first elementary school
足立区立西新井第一小学校まで224m
Non-living roomリビング以外の居室  Indoor (11 May 2013) Shooting
室内(2013年11月)撮影
Junior high school中学校  824m to Adachi Ward Nishiarai Junior High School
足立区立西新井中学校まで824m
Supermarketスーパー  Until Life Nishiarai shop 611m
ライフ西新井店まで611m
Park公園  Nishiarai until Nishikoen 280m
西新井西公園まで280m
Kindergarten ・ Nursery幼稚園・保育園  Nishiarai 446m to kindergarten
西新井幼稚園まで446m
Hospital病院  451m to a specific medical corporation Association Akiraaikai Mizuno Memorial Hospital
特定医療法人社団昭愛会水野記念病院まで451m
Location
|