New Homes » Kanto » Tokyo » Adachi-ku
 
| | Adachi-ku, Tokyo 東京都足立区 |
| Tsukuba Express "six-cho," a 10-minute flower garden 6-chome AzumaAyumi 4 minutes by bus つくばエクスプレス「六町」バス10分花畑6丁目東歩4分 |
| [We price revision! ! Do not miss this opportunity! ] All 23 buildings of the Big Town birth! ! Spacious balcony specification, Yang per good, It is a quiet residential area. small ・ Good location of the junior high school close, Readjustment land 【価格改定致しました!!この機会をお見逃しなく!】全23棟のビッグタウン誕生!!広々バルコニー仕様、陽当り良好、閑静な住宅街です。小・中学校至近の好立地、区画整理地 |
| It became a current of 10 houses sold in Thanks! All building popular counter-type system Kitchen, Shaping land, It is a good location of the corresponding four-way corner lot in flat 35S. Local can guide you. おかげさまで現在10棟の販売となりました!全棟人気のカウンター式システムキッチン、整形地、フラット35Sに対応四方向角地の好立地です。現地ご案内できます。 |
Features pickup 特徴ピックアップ | | Design house performance with evaluation / Corresponding to the flat-35S / Year Available / Parking two Allowed / Riverside / Facing south / System kitchen / Bathroom Dryer / Yang per good / All room storage / Siemens south road / A quiet residential area / LDK15 tatami mats or more / Or more before road 6m / Japanese-style room / Shaping land / Washbasin with shower / Face-to-face kitchen / Wide balcony / Toilet 2 places / 2-story / Double-glazing / Warm water washing toilet seat / Underfloor Storage / The window in the bathroom / TV monitor interphone / Ventilation good / City gas / Flat terrain / Readjustment land within 設計住宅性能評価付 /フラット35Sに対応 /年内入居可 /駐車2台可 /リバーサイド /南向き /システムキッチン /浴室乾燥機 /陽当り良好 /全居室収納 /南側道路面す /閑静な住宅地 /LDK15畳以上 /前道6m以上 /和室 /整形地 /シャワー付洗面台 /対面式キッチン /ワイドバルコニー /トイレ2ヶ所 /2階建 /複層ガラス /温水洗浄便座 /床下収納 /浴室に窓 /TVモニタ付インターホン /通風良好 /都市ガス /平坦地 /区画整理地内 | Price 価格 | | 26,900,000 yen ~ 29,900,000 yen 2690万円 ~ 2990万円 | Floor plan 間取り | | 4LDK 4LDK | Units sold 販売戸数 | | 7 units 7戸 | Total units 総戸数 | | 23 units 23戸 | Land area 土地面積 | | 86.04 sq m ~ 104.09 sq m 86.04m2 ~ 104.09m2 | Building area 建物面積 | | 88.6 sq m ~ 93.1 sq m 88.6m2 ~ 93.1m2 | Driveway burden-road 私道負担・道路 | | West 6m public road, East 6m public road, North 4.5m driveway, South 4.5m ・ 6m public road Driveway equity 260 sq m × 1 / 15 西側6m公道、東側6m公道、北側4.5m私道、南側4.5m・6m公道 私道持分260m2×1/15 | Completion date 完成時期(築年月) | | 2013 late October 2013年10月下旬 | Address 住所 | | Adachi-ku, Tokyo flower garden 6 東京都足立区花畑6 | Traffic 交通 | | Tsukuba Express "six-cho," a 10-minute flower garden 6-chome AzumaAyumi 4 minutes by bus Isesaki Tobu "Takenotsuka" walk 42 minutes つくばエクスプレス「六町」バス10分花畑6丁目東歩4分 東武伊勢崎線「竹ノ塚」歩42分
| Related links 関連リンク | | [Related Sites of this company] 【この会社の関連サイト】 | Contact お問い合せ先 | | TEL: 0800-602-4422 [Toll free] mobile phone ・ Also available from PHS Caller ID is not notified Please contact the "saw SUUMO (Sumo)" If it does not lead, If the real estate company TEL:0800-602-4422【通話料無料】携帯電話・PHSからもご利用いただけます 発信者番号は通知されません 「SUUMO(スーモ)を見た」と問い合わせください つながらない方、不動産会社の方は
| Most price range 最多価格帯 | | 27 million yen (3 units) 2700万円台(3戸) | Building coverage, floor area ratio 建ぺい率・容積率 | | Kenpei rate: 60%, Volume ratio: 200% 建ペい率:60%、容積率:200% | Time residents 入居時期 | | Consultation 相談 | Land of the right form 土地の権利形態 | | Ownership 所有権 | Structure and method of construction 構造・工法 | | Wooden 2-story 木造2階建 | Use district 用途地域 | | One middle and high 1種中高 | Land category 地目 | | Residential land 宅地 | Other limitations その他制限事項 | | Regulations have by the Landscape Act 景観法による規制有 | Overview and notices その他概要・特記事項 | | Building confirmation number: HPA-13-02583-1 other 建築確認番号:HPA-13-02583-1 他 | Company profile 会社概要 | | <Mediation> Governor of Tokyo (1) Article 091 879 Issue new Nissho Ju販 Co. Yubinbango123-0863 Adachi-ku, Tokyo Yazaike 1-2-7 <仲介>東京都知事(1)第091879号新日商住販(株)〒123-0863 東京都足立区谷在家1-2-7 |
Local appearance photo現地外観写真  I Building site (November 2013) Shooting
I号棟現地(2013年11月)撮影
 Q Building Local (11 May 2013) Shooting
Q号棟 現地(2013年11月)撮影
Livingリビング  I Building Indoor (11 May 2013) Shooting
I号棟 室内(2013年11月)撮影
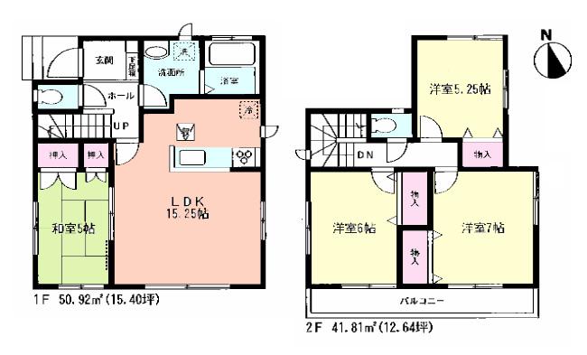
Floor plan間取り図  (Q), Price 28,900,000 yen, 4LDK, Land area 86.04 sq m , Building area 89.33 sq m
(Q)、価格2890万円、4LDK、土地面積86.04m2、建物面積89.33m2
Local appearance photo現地外観写真  T Building Because it faces the south road day preeminent! !
T号棟 南道路に面していますので日当たり抜群!!
Bathroom浴室  I Building
I号棟
Kitchenキッチン  I Building
I号棟
Non-living roomリビング以外の居室  Second floor Western style room
2階 洋室
 Entrance
玄関
Wash basin, toilet洗面台・洗面所  Indoor (11 May 2013) Shooting
室内(2013年11月)撮影
Local photos, including front road前面道路含む現地写真  South Front
南側 前面
Parking lot駐車場  I Building
I号棟
Primary school小学校  439m to Adachi Ward Oka Elementary School
足立区立桜花小学校まで439m
Other introspectionその他内観  I Building
I号棟
The entire compartment Figure全体区画図  All 23 buildings of the Big Town birth!
全23棟のビッグタウン誕生!
Floor plan間取り図  (R), Price 28,900,000 yen, 4LDK, Land area 104.09 sq m , Building area 93.1 sq m
(R)、価格2890万円、4LDK、土地面積104.09m2、建物面積93.1m2
Local appearance photo現地外観写真  U Building
U号棟
Local photos, including front road前面道路含む現地写真  South road
南側道路
Other introspectionその他内観  I Building
I号棟
Floor plan間取り図  (A), Price 29,900,000 yen, 4LDK, Land area 88.04 sq m , Building area 92.73 sq m
(A)、価格2990万円、4LDK、土地面積88.04m2、建物面積92.73m2
Local appearance photo現地外観写真  V Building
V号棟
Location
|