New Homes » Kanto » Tokyo » Adachi-ku


Adachi-ku, Tokyo
Isesaki Tobu "Yatsuka" walk 26 minutes
・ Is also a breeze front and out of public road 6M and the car in the readjustment land. Living environment is also very good. Flat 35S Eco available.
・ In the case of our alliance mortgage available, The entire period up to -1.7% preferential treatment. ・ The application, Conditions, there is a review. ・ Weekdays, Saturday and Sunday, will guide you regardless of holiday. ・ It can come to pick you up in the car.
Features pickup
Construction housing performance with evaluation / Design house performance with evaluation / Long-term high-quality housing / Corresponding to the flat-35S / Immediate Available / System kitchen / Bathroom Dryer / All room storage / A quiet residential area / LDK15 tatami mats or more / Around traffic fewer / Corner lot / Shaping land / Washbasin with shower / Face-to-face kitchen / Bathroom 1 tsubo or more / South balcony / Otobasu / High speed Internet correspondence / Warm water washing toilet seat / loft / TV monitor interphone / All living room flooring / Dish washing dryer / Water filter / Three-story or more / All rooms are two-sided lighting
Price
32,800,000 yen
Floor plan
4LDK
Units sold
1 units
Total units
4 units
Land area
111.78 sq m
Building area
73.1 sq m
Driveway burden-road
Nothing
Completion date
August 2012
Address
Adachi-ku, Tokyo flower garden 6
Traffic
Isesaki Tobu "Yatsuka" walk 26 minutes
Tsukuba Express "six-cho," a 15-minute Aigumi park walk 3 minutes by bus
Isesaki Tobu "Soka" walk 35 minutes
Related links
[Related Sites of this company]
Person in charge
Rep Yuji Fujimoto
Contact
TEL: 0800-603-7130 [Toll free] mobile phone ・ Also available from PHS
Caller ID is not notified
Please contact the "saw SUUMO (Sumo)"
If it does not lead, If the real estate company
Building coverage, floor area ratio
60% ・ 200%
Time residents
Immediate available
Land of the right form
Ownership
Structure and method of construction
Wooden three-story
Use district
City planning area outside
Overview and notices
Contact: Yuji Fujimoto, Facilities: Public Water Supply, This sewage, City gas
Company profile
<Mediation> Minister of Land, Infrastructure and Transport (2) No. 007684 + HOUSE Tokyo Office (Ltd.) propoxycarbonyl life Yubinbango104-0028, Chuo-ku, Tokyo Yaesu 2-5-12 Prairie Yaesu Building 5th floor


Local appearance photo
Local appearance photo

Living
Living

Local appearance photo

Local appearance photo. It will be local layout.
It will be local layout.

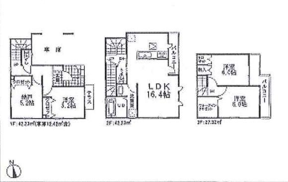
Floor plan

Floor plan. 32,800,000 yen, 4LDK, Land area 111.78 sq m , Will be building area 73.1 sq m large 4LDK.
32,800,000 yen, 4LDK, Land area 111.78 sq m , Will be building area 73.1 sq m large 4LDK.

Local appearance photo
Local appearance photo

Living
Living

Bathroom
Bathroom

Kitchen
Kitchen

Local guide map

Local guide map. It will be local guide map.
It will be local guide map.

Local appearance photo
Local appearance photo



Location