New Homes » Kanto » Tokyo » Adachi-ku
 
| | Adachi-ku, Tokyo 東京都足立区 |
| Nippori ・ Toneri liner "Minuma bill water park" walk 8 minutes 日暮里・舎人ライナー「見沼代親水公園」歩8分 |
| Advanced housing of ENE-FARM equipped. Parking 2 ~ 3 units can be, Large 4 ~ Designer House of 5LDK. roof balcony, Mist sauna, LDK floor heating, Dishwasher, Equipment of bathroom TV such as enhanced ・ specification. エネファーム搭載の先進住宅。駐車2 ~ 3台可能、大型4 ~ 5LDKのデザイナーズハウス。ルーフバルコニー、ミストサウナ、LDK床暖房、食洗機、浴室TV等充実の設備・仕様。 |
| ■ Local Photos, It was published! (November 29, 2013 shooting) Please refer to the local under construction. ■ Nippori ・ Toneri liner "Minuma bill Water Park" Station 8-minute walk, Commuting per station of origin ・ School convenient! ■ Peaceful living environment of low-rise exclusive residential area ■ Yang per good ■ LDK spacious 19 Pledge ~ 20 Pledge! ■ Parking Space 2 ・ Three ■ Attic storage (A Building) ■ Past of Urban port series of videos from all building LDK blow-related link You can see. ■現地写真、掲載しました!(2013年11月29日撮影) 建築中の現地をご覧ください。■日暮里・舎人ライナー「見沼代親水公園」駅徒歩8分、始発駅につき通勤・通学至便!■低層住居専用地域の穏やかな住環境■陽当り良好■LDK広々19帖 ~ 20帖!■駐車スペース2・3台■小屋裏収納(A号棟)■全棟LDK吹抜け関連リンクより過去のアーバンポートシリーズの動画がご覧いただけます。 |
Features pickup 特徴ピックアップ | | Measures to conserve energy / Parking three or more possible / LDK20 tatami mats or more / Energy-saving water heaters / Facing south / System kitchen / Bathroom Dryer / Yang per good / All room storage / Flat to the station / Siemens south road / A quiet residential area / Around traffic fewer / Or more before road 6m / Corner lot / Japanese-style room / Starting station / Shaping land / Mist sauna / Washbasin with shower / Face-to-face kitchen / Barrier-free / Toilet 2 places / Bathroom 1 tsubo or more / 2-story / South balcony / Warm water washing toilet seat / TV with bathroom / The window in the bathroom / Atrium / Leafy residential area / Ventilation good / Dish washing dryer / Walk-in closet / Water filter / Living stairs / City gas / All rooms are two-sided lighting / roof balcony / Flat terrain / Attic storage / Floor heating 省エネルギー対策 /駐車3台以上可 /LDK20畳以上 /省エネ給湯器 /南向き /システムキッチン /浴室乾燥機 /陽当り良好 /全居室収納 /駅まで平坦 /南側道路面す /閑静な住宅地 /周辺交通量少なめ /前道6m以上 /角地 /和室 /始発駅 /整形地 /ミストサウナ /シャワー付洗面台 /対面式キッチン /バリアフリー /トイレ2ヶ所 /浴室1坪以上 /2階建 /南面バルコニー /温水洗浄便座 /TV付浴室 /浴室に窓 /吹抜け /緑豊かな住宅地 /通風良好 /食器洗乾燥機 /ウォークインクロゼット /浄水器 /リビング階段 /都市ガス /全室2面採光 /ルーフバルコニー /平坦地 /屋根裏収納 /床暖房 | Event information イベント情報 | | Model house schedule / Now open ◆ Showroom OPEN! ! ◆ At our "Urban Port" series equipment ・ You can see at any time the specification! phone [0800-603-1730] , Or please contact us from the following document request form. that time, Desired date and your desired time zone A ・ 10:00 ~ 13: 00B ・ 13:00 ~ 16: 00C ・ 16:00 ~ Get tell 19:00, You can reserve smoothly. モデルハウス日程/公開中◆ショールームOPEN!!◆当社にて「アーバンポート」シリーズの設備・仕様をいつでもご覧いただけます!電話【0800-603-1730】、もしくは下記資料請求フォームよりお問い合わせください。その際、ご希望日とご希望時間帯A・10:00 ~ 13:00B・13:00 ~ 16:00C・16:00 ~ 19:00をお伝えいただくと、スムーズにご予約ができます。 | Property name 物件名 | | Urban port Toneri 3-chome Stage III アーバンポート 舎人3丁目 III期 | Price 価格 | | 46,800,000 yen ~ 54,800,000 yen 4680万円 ~ 5480万円 | Floor plan 間取り | | 4LDK ~ 5LDK 4LDK ~ 5LDK | Units sold 販売戸数 | | 2 units 2戸 | Total units 総戸数 | | 2 units 2戸 | Land area 土地面積 | | 113.73 sq m ~ 131.08 sq m (34.40 tsubo ~ 39.65 square meters) 113.73m2 ~ 131.08m2(34.40坪 ~ 39.65坪) | Building area 建物面積 | | 110.8 sq m ~ 124.46 sq m (33.51 tsubo ~ 37.64 square meters) 110.8m2 ~ 124.46m2(33.51坪 ~ 37.64坪) | Driveway burden-road 私道負担・道路 | | Northwest 7.4m public road, Southwest 4.5m driveway 北西7.4m公道、南西4.5m私道 | Completion date 完成時期(築年月) | | March 2014 schedule 2014年3月予定 | Address 住所 | | Adachi-ku, Tokyo Toneri 3 東京都足立区舎人3 | Traffic 交通 | | Nippori ・ Toneri liner "Minuma bill water park" walk 8 minutes Nippori ・ Toneri liner "Toneri" walk 10 minutes 日暮里・舎人ライナー「見沼代親水公園」歩8分 日暮里・舎人ライナー「舎人」歩10分
| Related links 関連リンク | | [Related Sites of this company] 【この会社の関連サイト】 | Person in charge 担当者より | | Rep Miyamoto Age: 30 Daigyokai experience: we are working hard with the aim of 10 years Adachi-ku, No.1! Please come feel free to. We look forward to with a smile. 担当者宮本年齢:30代業界経験:10年足立区No.1を目指して頑張っております!お気軽にお越し下さい。笑顔でお待ちしております。 | Contact お問い合せ先 | | TEL: 0800-603-1730 [Toll free] mobile phone ・ Also available from PHS Caller ID is not notified Please contact the "saw SUUMO (Sumo)" If it does not lead, If the real estate company TEL:0800-603-1730【通話料無料】携帯電話・PHSからもご利用いただけます 発信者番号は通知されません 「SUUMO(スーモ)を見た」と問い合わせください つながらない方、不動産会社の方は
| Building coverage, floor area ratio 建ぺい率・容積率 | | Kenpei rate: 50%, Volume ratio: 150% 建ペい率:50%、容積率:150% | Time residents 入居時期 | | March 2014 schedule 2014年3月予定 | Land of the right form 土地の権利形態 | | Ownership 所有権 | Structure and method of construction 構造・工法 | | Wooden 2-story 木造2階建 | Use district 用途地域 | | One low-rise 1種低層 | Land category 地目 | | Residential land 宅地 | Other limitations その他制限事項 | | Height district, Quasi-fire zones 高度地区、準防火地域 | Overview and notices その他概要・特記事項 | | Contact: Miyamoto, Building confirmation number: No. 13UDI2T Ken 01444 ・ 01445 No., Tokyo Electric Power Co., Public Water Supply, This sewage, City gas 担当者:宮本、建築確認番号:第13UDI2T建01444号・01445号、東京電力、公営水道、本下水、都市ガス | Company profile 会社概要 | | <Mediation> Governor of Tokyo (6) No. 062333 (Corporation) Tokyo Metropolitan Government Building Lots and Buildings Transaction Business Association (Corporation) metropolitan area real estate Fair Trade Council member (Ltd.) House Say Lars Yubinbango123-0864 Adachi-ku, Tokyo Shikahama 7-18-1 <仲介>東京都知事(6)第062333号(公社)東京都宅地建物取引業協会会員 (公社)首都圏不動産公正取引協議会加盟(株)ハウスセイラーズ〒123-0864 東京都足立区鹿浜7-18-1 |
Otherその他  Urban port series that combines comfortable living and design
快適な居住性とデザインを兼ね備えたアーバンポートシリーズ
Rendering (appearance)完成予想図(外観) ![Rendering (appearance). Rendering [Overall]](/images/tokyo/adachi/2d90950033.jpg) Rendering [Overall]
完成予想図【全体】
The entire compartment Figure全体区画図  All building site 34 square meters more than! !
全棟敷地34坪超!!
Rendering (appearance)完成予想図(外観) ![Rendering (appearance). Rendering [Overall]](/images/tokyo/adachi/2d90950046.jpg) Rendering [Overall]
完成予想図【全体】
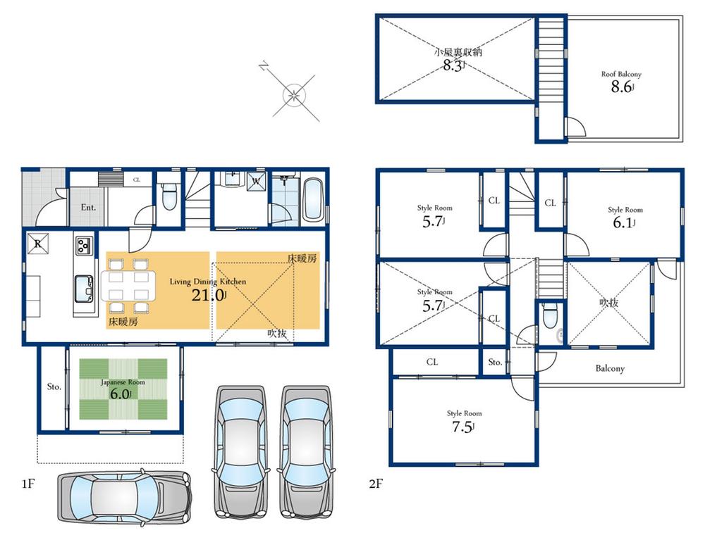
Floor plan間取り図  (A Building), Price 54,800,000 yen, 5LDK, Land area 131.08 sq m , Building area 124.46 sq m
(A号棟)、価格5480万円、5LDK、土地面積131.08m2、建物面積124.46m2
 (B Building), Price 46,800,000 yen, 4LDK, Land area 113.73 sq m , Building area 110.8 sq m
(B号棟)、価格4680万円、4LDK、土地面積113.73m2、建物面積110.8m2
Other Equipmentその他設備  Equipped with dishwasher in the kitchen standard. Us to reduce the burden of saving and the wife of the household chores of water bill.
キッチンには食洗機が標準装備。水道代の節約や奥様の家事の負担を減らしてくれます。
 Standard equipped with a digital terrestrial bathroom TV. Also, Since the connection between the AV equipment is also available, You can also movies and DVD watching. To bath time more relaxing!
地デジ対応の浴室TVを標準装備。また、AV機器との接続も可能ですので、映画やDVD鑑賞もできます。よりリラックスできるバスタイムに!
Cooling and heating ・ Air conditioning冷暖房・空調設備  The LDK compared with the electric, Early rising, Standard equipment the entire gas hot-water floor heating to warm evenly room. Running cost is also economic!
LDKには電気式と比べ、立ち上がりが早く、部屋全体がムラなく温まるガス温水式床暖房を標準装備。ランニングコストも経済的です!
Power generation ・ Hot water equipment発電・温水設備  Energy farm at home produce electricity. System to build together also hot water without discarding the heat out at the time of power generation. Energy made with ENE-FARM is active in the whole house. Energy-saving effect Ya, Reduction of utility costs ・ Also reduce CO2 emissions.
自宅で電気をつくるエネファーム。発電時に出る熱を捨てずにお湯も一緒につくるシステム。エネファームで作ったエネルギーは家中で活躍します。省エネ効果や、光熱費の削減・CO2の削減も。
Other Equipmentその他設備  Full-fledged mist sauna in your home you can enjoy. Stimulus is less comfortable perspiration on the skin is obtained, It is also effective in the health and beauty.
ご家庭で本格的なミストサウナがお楽しみいただけます。肌への刺激が少なく快適に発汗作用が得られ、健康や美容にも効果的です。
Park公園  190m until Minuma bill hydrophilic park babble zone
見沼代親水公園せせらぎゾーンまで190m
Supermarketスーパー  Bergs until Adachi Kojiya shop 550m every Tuesday of "88 yen uniform sale", Evening City Saturday, Also crowded with customers local to the Sunday morning market.
ベルクス足立古千谷店まで550m 毎週火曜日の「88円均一セール」、土曜日の夕市、日曜日の朝市には地元もお客様で賑わいます。
Station駅  Nippori ・ Toneri 640m until the liner "Minuma bill Water Park" station
日暮里・舎人ライナー「見沼代親水公園」駅まで640m
Local photos, including front road前面道路含む現地写真  There is a feeling of opening per corner lot.
角地につき開放感があります。
Local appearance photo現地外観写真  House under construction Ya, At Showroom, Facility ・ Specifications You can also check
建築中の住まいや、ショールームにて、設備・仕様もご確認いただけます
Local photos, including front road前面道路含む現地写真  Sunny local. Local (11 May 2013) Shooting
日当たり良好な現地。現地(2013年11月)撮影
Rendering (appearance)完成予想図(外観) ![Rendering (appearance). Rendering [B Building]](/images/tokyo/adachi/2d90950049.jpg) Rendering [B Building]
完成予想図【B号棟】
![Rendering (appearance). Rendering [A Building]](/images/tokyo/adachi/2d90950048.jpg) Rendering [A Building]
完成予想図【A号棟】
![Rendering (appearance). Rendering [A Building]](/images/tokyo/adachi/2d90950047.jpg) Rendering [A Building]
完成予想図【A号棟】
![Rendering (appearance). Rendering [B Building]](/images/tokyo/adachi/2d90950045.jpg) Rendering [B Building]
完成予想図【B号棟】
Primary school小学校  Toneri 1000m until the first elementary school
舎人第一小学校まで1000m
Other Equipmentその他設備  Standard equipped with a cupboard in the Urban Port. Stylish than fit in the kitchen!
アーバンポートではカップボードを標準装備。キッチンに合わせよりスタイリッシュに!
Supermarketスーパー  1000m to life Toneri shop
ライフ舎人店まで1000m
Junior high school中学校  1400m to Adachi Ward Iriya Minami Junior High School
足立区立入谷南中学校まで1400m
Kindergarten ・ Nursery幼稚園・保育園  Toneri 850m to Ito kindergarten
とねり伊藤幼稚園まで850m
Hospital病院  650m to Adachi rural clinic
足立田園クリニックまで650m
Police station ・ Police box警察署・交番  Until Tonerikoen 1400m
舎人公園まで1400m
Location
|