New Homes » Kanto » Tokyo » Adachi-ku
 
| | Adachi-ku, Tokyo 東京都足立区 |
| Tokyo Metro Chiyoda Line "Ayase" walk 9 minutes 東京メトロ千代田線「綾瀬」歩9分 |
| Corner lot, 3 Line 2 Station Available! 角地、3路線2駅利用可! |
| Building completed already, You can site your preview. Please feel free to contact us. 建物完成済、現地ご内覧出来ます。お気軽にお問い合わせ下さい。 |
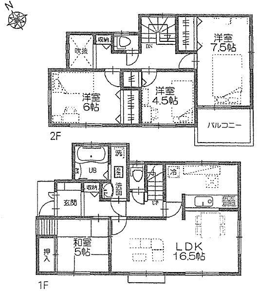
Features pickup 特徴ピックアップ | | 2 along the line more accessible / Facing south / System kitchen / Bathroom Dryer / All room storage / LDK15 tatami mats or more / Corner lot / Face-to-face kitchen / Toilet 2 places / Bathroom 1 tsubo or more / 2-story / TV monitor interphone / City gas 2沿線以上利用可 /南向き /システムキッチン /浴室乾燥機 /全居室収納 /LDK15畳以上 /角地 /対面式キッチン /トイレ2ヶ所 /浴室1坪以上 /2階建 /TVモニタ付インターホン /都市ガス | Price 価格 | | 37,800,000 yen 3780万円 | Floor plan 間取り | | 4LDK 4LDK | Units sold 販売戸数 | | 1 units 1戸 | Total units 総戸数 | | 8 units 8戸 | Land area 土地面積 | | 102 sq m (measured) 102m2(実測) | Building area 建物面積 | | 97.7 sq m (measured) 97.7m2(実測) | Driveway burden-road 私道負担・道路 | | Nothing, West 7.7m width, North 4.5m width 無、西7.7m幅、北4.5m幅 | Completion date 完成時期(築年月) | | October 2013 2013年10月 | Address 住所 | | Adachi-ku, Tokyo Ayase 4 東京都足立区綾瀬4 | Traffic 交通 | | Tokyo Metro Chiyoda Line "Ayase" walk 9 minutes JR Joban Line "Ayase" walk 9 minutes Tsukuba Express "Aoi" walk 9 minutes 東京メトロ千代田線「綾瀬」歩9分 JR常磐線「綾瀬」歩9分 つくばエクスプレス「青井」歩9分
| Person in charge 担当者より | | Rep Marui Daisuke Age: 30 Daigyokai experience: I will do my best in all sincerity for the 10-year customer of a dream realized. 担当者丸井 大介年齢:30代業界経験:10年お客様の夢実現の為に誠心誠意頑張ります。 | Contact お問い合せ先 | | TEL: 0800-603-0565 [Toll free] mobile phone ・ Also available from PHS Caller ID is not notified Please contact the "saw SUUMO (Sumo)" If it does not lead, If the real estate company TEL:0800-603-0565【通話料無料】携帯電話・PHSからもご利用いただけます 発信者番号は通知されません 「SUUMO(スーモ)を見た」と問い合わせください つながらない方、不動産会社の方は
| Building coverage, floor area ratio 建ぺい率・容積率 | | 60% ・ 300% 60%・300% | Time residents 入居時期 | | Consultation 相談 | Land of the right form 土地の権利形態 | | Ownership 所有権 | Structure and method of construction 構造・工法 | | Wooden 2-story 木造2階建 | Use district 用途地域 | | One dwelling 1種住居 | Overview and notices その他概要・特記事項 | | Contact: Marui Daisuke, Facilities: Public Water Supply, This sewage, City gas, Building confirmation number: 00243, Parking: car space 担当者:丸井 大介、設備:公営水道、本下水、都市ガス、建築確認番号:00243、駐車場:カースペース | Company profile 会社概要 | | <Mediation> Minister of Land, Infrastructure and Transport (3) No. 006,185 (one company) National Housing Industry Association (Corporation) metropolitan area real estate Fair Trade Council member Asahi housing (stock) Ueno shop Yubinbango110-0005, Taito-ku, Tokyo Ueno 2-13-10 Asahi Seimei Building 6th floor <仲介>国土交通大臣(3)第006185号(一社)全国住宅産業協会会員 (公社)首都圏不動産公正取引協議会加盟朝日住宅(株)上野店〒110-0005 東京都台東区上野2-13-10 朝日生命ビル6階 |
 Local appearance photo
現地外観写真
 Local appearance photo
現地外観写真
Floor plan間取り図  37,800,000 yen, 4LDK, Land area 102 sq m , Building area 97.7 sq m
3780万円、4LDK、土地面積102m2、建物面積97.7m2
 Local appearance photo
現地外観写真
 Living
リビング
 Bathroom
浴室
 Kitchen
キッチン
 Non-living room
リビング以外の居室
 Wash basin, toilet
洗面台・洗面所
 Receipt
収納
 Toilet
トイレ
 Local photos, including front road
前面道路含む現地写真
 Receipt
収納
Location
|