New Homes » Kanto » Tokyo » Adachi-ku


Adachi-ku, Tokyo
Tokyo Metro Chiyoda Line "Kitaayase" walk 13 minutes
Bright house wrapped in plenty of sunlight
Walk daily at Oyata Memorial Park ・ You can jogging.
Features pickup
System kitchen / All room storage / Shaping land / Washbasin with shower / Barrier-free / Toilet 2 places / 2-story / All living room flooring / City gas
Price
29 million yen
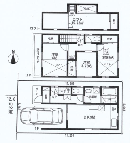
Floor plan
3DK
Units sold
1 units
Land area
63.07 sq m (measured)
Building area
77.83 sq m (measured)
Driveway burden-road
Nothing, West 12m width
Completion date
November 2013
Address
Adachi-ku, Tokyo Oyata 5
Traffic
Tokyo Metro Chiyoda Line "Kitaayase" walk 13 minutes
Related links
[Related Sites of this company]
Person in charge
The person in charge Tanaka Known Age: 40 Daigyokai experience: we will introduce the house to fulfill a dream together with the 25-year customer.
Contact
TEL: 0800-603-0565 [Toll free] mobile phone ・ Also available from PHS
Caller ID is not notified
Please contact the "saw SUUMO (Sumo)"
If it does not lead, If the real estate company
Building coverage, floor area ratio
60% ・ 200%
Time residents
Consultation
Land of the right form
Ownership
Structure and method of construction
Wooden 2-story
Use district
Two dwellings
Overview and notices
Contact: Tanaka Known, Facilities: Public Water Supply, This sewage, City gas, Building confirmation number: 1313070038, Parking: Garage
Company profile
<Mediation> Minister of Land, Infrastructure and Transport (3) No. 006,185 (one company) National Housing Industry Association (Corporation) metropolitan area real estate Fair Trade Council member Asahi housing (stock) Ueno shop Yubinbango110-0005, Taito-ku, Tokyo Ueno 2-13-10 Asahi Seimei Building 6th floor


Local appearance photo
Local appearance photo

Floor plan

Floor plan. 29 million yen, 3DK, Land area 63.07 sq m , Building area 77.83 sq m
29 million yen, 3DK, Land area 63.07 sq m , Building area 77.83 sq m

Local appearance photo
Local appearance photo

Local appearance photo
Local appearance photo

Local photos, including front road
Local photos, including front road



Location