New Homes » Kanto » Tokyo » Adachi-ku
 
| | Adachi-ku, Tokyo 東京都足立区 |
| Tokyo Metro Chiyoda Line "Kitaayase" walk 17 minutes 東京メトロ千代田線「北綾瀬」歩17分 |
| Roof balcony in the south road surface, It is newly built Ichinohe Ken dated attic storage. 南公道面でルーフバルコニー、屋根裏収納付の新築一戸建です。 |
| "Adachi-ku Shinmeiminami 2-chome ・ Shinmei area Popular as a detached "quiet residential area new construction. Also it will be able to use six-cho station from the opening of the Tsukuba Express, The new housing will have seen many. The Shinmeiminami 2-chome, Sunny with a roof balcony facing south road, New construction Ichinohe Ken dated attic storage has emerged. The building is currently under construction, Color select if possible now. We also accept various options. Since the jewels model room, Please feel free to contact us. 「足立区神明南2丁目・新築一戸建」閑静な住宅街として人気のある神明エリア。つくばエクスプレスの開通から六町駅も利用できるようになり、新しい住宅が多く見受けられます。その神明南2丁目、南道路に面する日当たりの良いルーフバルコニー付、屋根裏収納付の新築一戸建が登場しました。建物は現在建築中で、今ならカラーセレクト可能。各種オプションも受け付けております。モデルルームも御座いますので、お気軽にお問合せ下さい。 |
Features pickup 特徴ピックアップ | | Parking two Allowed / Facing south / System kitchen / Bathroom Dryer / Yang per good / Siemens south road / A quiet residential area / Shaping land / Washbasin with shower / Face-to-face kitchen / Barrier-free / Toilet 2 places / Bathroom 1 tsubo or more / 2-story / South balcony / Double-glazing / Warm water washing toilet seat / loft / The window in the bathroom / TV monitor interphone / High-function toilet / Ventilation good / All living room flooring / Dish washing dryer / Water filter / Living stairs / City gas / Storeroom / roof balcony 駐車2台可 /南向き /システムキッチン /浴室乾燥機 /陽当り良好 /南側道路面す /閑静な住宅地 /整形地 /シャワー付洗面台 /対面式キッチン /バリアフリー /トイレ2ヶ所 /浴室1坪以上 /2階建 /南面バルコニー /複層ガラス /温水洗浄便座 /ロフト /浴室に窓 /TVモニタ付インターホン /高機能トイレ /通風良好 /全居室フローリング /食器洗乾燥機 /浄水器 /リビング階段 /都市ガス /納戸 /ルーフバルコニー | Event information イベント情報 | | Local sales meetings (please visitors to direct local) schedule / Every Saturday, Sunday and public holidays time / 11:00 ~ 17:00 You can see weekdays. 現地販売会(直接現地へご来場ください)日程/毎週土日祝時間/11:00 ~ 17:00平日もご覧頂けます。 | Price 価格 | | 33,500,000 yen 3350万円 | Floor plan 間取り | | 2LDK + 2S (storeroom) 2LDK+2S(納戸) | Units sold 販売戸数 | | 1 units 1戸 | Total units 総戸数 | | 1 units 1戸 | Land area 土地面積 | | 85.99 sq m 85.99m2 | Building area 建物面積 | | 89.21 sq m 89.21m2 | Driveway burden-road 私道負担・道路 | | Nothing, South 5m width (contact the road width 7m) 無、南5m幅(接道幅7m) | Completion date 完成時期(築年月) | | March 2014 2014年3月 | Address 住所 | | Adachi-ku, Tokyo Shinmeiminami 2 東京都足立区神明南2 | Traffic 交通 | | Tokyo Metro Chiyoda Line "Kitaayase" walk 17 minutes Tsukuba Express "six-cho" walk 18 minutes Tsukuba Express "Aoi" walk 30 minutes 東京メトロ千代田線「北綾瀬」歩17分 つくばエクスプレス「六町」歩18分 つくばエクスプレス「青井」歩30分
| Related links 関連リンク | | [Related Sites of this company] 【この会社の関連サイト】 | Contact お問い合せ先 | | Kadoi real estate (Ltd.) TEL: 0800-603-0656 [Toll free] mobile phone ・ Also available from PHS Caller ID is not notified Please contact the "saw SUUMO (Sumo)" If it does not lead, If the real estate company 門井不動産(株)TEL:0800-603-0656【通話料無料】携帯電話・PHSからもご利用いただけます 発信者番号は通知されません 「SUUMO(スーモ)を見た」と問い合わせください つながらない方、不動産会社の方は
| Building coverage, floor area ratio 建ぺい率・容積率 | | Fifty percent ・ 150% 50%・150% | Time residents 入居時期 | | March 2014 schedule 2014年3月予定 | Land of the right form 土地の権利形態 | | Ownership 所有権 | Structure and method of construction 構造・工法 | | Wooden 2-story 木造2階建 | Use district 用途地域 | | One low-rise 1種低層 | Overview and notices その他概要・特記事項 | | Facilities: Public Water Supply, This sewage, City gas, Building confirmation number: No. KS113-3710-00048, Parking: car space 設備:公営水道、本下水、都市ガス、建築確認番号:第KS113-3710-00048号、駐車場:カースペース | Company profile 会社概要 | | <Marketing alliance (agency)> Governor of Tokyo (12) No. 026517 (Corporation) Tokyo Metropolitan Government Building Lots and Buildings Transaction Business Association (Corporation) metropolitan area real estate Fair Trade Council member Kadoi Real Estate Co., Ltd. Yubinbango120-0006 Adachi-ku, Tokyo Yanaka 4-9-21 <販売提携(代理)>東京都知事(12)第026517号(公社)東京都宅地建物取引業協会会員 (公社)首都圏不動産公正取引協議会加盟門井不動産(株)〒120-0006 東京都足立区谷中4-9-21 |
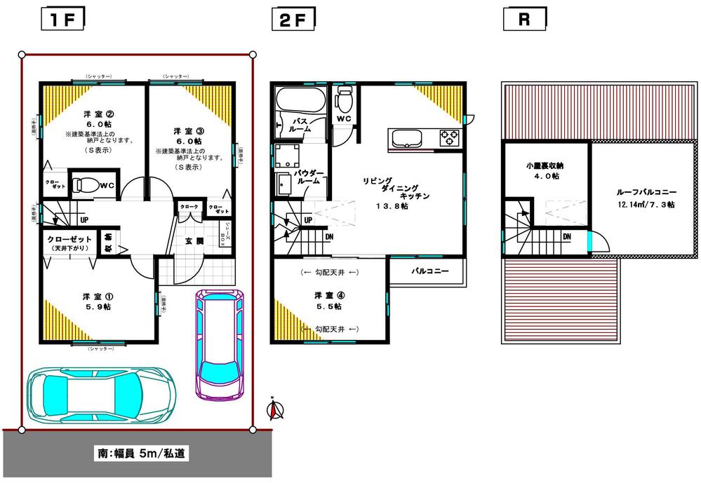
Floor plan間取り図  33,500,000 yen, 2LDK + 2S (storeroom), Land area 85.99 sq m , Building area 89.21 sq m roof balcony, It is with attic storage.
3350万円、2LDK+2S(納戸)、土地面積85.99m2、建物面積89.21m2 ルーフバルコニー、屋根裏収納付です。
Compartment figure区画図  33,500,000 yen, 2LDK + 2S (storeroom), Land area 85.99 sq m , It is shaping areas of building area 89.21 sq m 26 tsubo.
3350万円、2LDK+2S(納戸)、土地面積85.99m2、建物面積89.21m2 26坪の整形地です。
 Rendering (appearance)
完成予想図(外観)
Supermarketスーパー  Ebisuya to shops 360m
ゑびすや商店まで360m
 715m until Benny Super Sano shop
ベニースーパー佐野店まで715m
Convenience storeコンビニ  507m until Lawson Adachi Shinmeiminami shop
ローソン足立神明南店まで507m
 570m to Seven-Eleven Adachi Tatsunuma 1-chome
セブンイレブン足立辰沼1丁目店まで570m
Home centerホームセンター  (Ltd.) to Shimachu Co., Ltd. Oyata shop 1466m
(株)島忠大谷田店まで1466m
Park公園  1299m until the iris marsh park
しょうぶ沼公園まで1299m
Location
|