New Homes » Kanto » Tokyo » Adachi-ku
 
| | Adachi-ku, Tokyo 東京都足立区 |
| Isesaki Tobu "Umejima" walk 14 minutes 東武伊勢崎線「梅島」歩14分 |
| Second floor LDK14 Pledge than with atrium, Face-to-face kitchen, There is a wide loft of with fixed stairs! City gas, This sewage 吹き抜けのある2階LDK14帖超、対面キッチン、固定階段付の広いロフトあります!都市ガス、本下水 |
| Kurishima Elementary School 800m, Kurishima junior high school 800m 栗島小学校800m、栗島中学校800m |
Features pickup 特徴ピックアップ | | Facing south / System kitchen / Bathroom Dryer / 2-story / South balcony / Warm water washing toilet seat / loft / TV monitor interphone / High-function toilet / City gas / Storeroom 南向き /システムキッチン /浴室乾燥機 /2階建 /南面バルコニー /温水洗浄便座 /ロフト /TVモニタ付インターホン /高機能トイレ /都市ガス /納戸 | Price 価格 | | 32,800,000 yen 3280万円 | Floor plan 間取り | | 3LDK + S (storeroom) 3LDK+S(納戸) | Units sold 販売戸数 | | 1 units 1戸 | Land area 土地面積 | | 79.45 sq m (24.03 square meters) 79.45m2(24.03坪) | Building area 建物面積 | | 92.95 sq m (28.11 square meters) 92.95m2(28.11坪) | Driveway burden-road 私道負担・道路 | | Nothing, West 4m width 無、西4m幅 | Completion date 完成時期(築年月) | | October 2013 2013年10月 | Address 住所 | | Adachi-ku, Tokyo Chuohon cho 4 東京都足立区中央本町4 | Traffic 交通 | | Isesaki Tobu "Umejima" walk 14 minutes 東武伊勢崎線「梅島」歩14分
| Person in charge 担当者より | | Person in charge of Suzuki AkiraYoshi Age: 20s last year, I bought my home. that time, There were various difficulties, but was able to purchase the property satisfactory to result. Based on its experience, We provide shelter, such as will satisfy our customers. 担当者鈴木 朗義年齢:20代去年、マイホームを購入しました。その際、様々な困難がありましたが結果的には満足のいく物件を購入出来ました。その経験を元に、お客様に満足して頂ける様な住まいを提供いたします。 | Contact お問い合せ先 | | TEL: 0800-603-6306 [Toll free] mobile phone ・ Also available from PHS Caller ID is not notified Please contact the "saw SUUMO (Sumo)" If it does not lead, If the real estate company TEL:0800-603-6306【通話料無料】携帯電話・PHSからもご利用いただけます 発信者番号は通知されません 「SUUMO(スーモ)を見た」と問い合わせください つながらない方、不動産会社の方は
| Building coverage, floor area ratio 建ぺい率・容積率 | | 60% ・ 200% 60%・200% | Time residents 入居時期 | | Consultation 相談 | Land of the right form 土地の権利形態 | | Ownership 所有権 | Structure and method of construction 構造・工法 | | Wooden 2-story 木造2階建 | Use district 用途地域 | | Semi-industrial 準工業 | Overview and notices その他概要・特記事項 | | Contact: Suzuki AkiraYoshi, Facilities: This sewage, City gas, Building confirmation number:., Parking: car space 担当者:鈴木 朗義、設備:本下水、都市ガス、建築確認番号:.、駐車場:カースペース | Company profile 会社概要 | | <Mediation> Governor of Tokyo (1) the first 089,301 No. Century 21 (Ltd.) dwelling & amp; Smile Yubinbango121-0823 Adachi-ku, Tokyo diplomatic 1-24-25 <仲介>東京都知事(1)第089301号センチュリー21(株)住まい&スマイル〒121-0823 東京都足立区伊興1-24-25 |
 Living
リビング
 Kitchen
キッチン
 Local appearance photo
現地外観写真
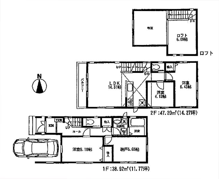
Floor plan間取り図  32,800,000 yen, 3LDK + S (storeroom), Land area 79.45 sq m , Building area 92.95 sq m floor plan
3280万円、3LDK+S(納戸)、土地面積79.45m2、建物面積92.95m2 間取り図
 Living
リビング
 Bathroom
浴室
 Non-living room
リビング以外の居室
 Entrance
玄関
 Wash basin, toilet
洗面台・洗面所
 Receipt
収納
 Toilet
トイレ
 Local photos, including front road
前面道路含む現地写真
 Parking lot
駐車場
 Other
その他
 Living
リビング
 Non-living room
リビング以外の居室
Location
|