New Homes » Kanto » Tokyo » Akiruno
 
| | Tokyo Akiruno 東京都あきる野市 |
| JR Ome Line "Fussa" walk 20 minutes JR青梅線「福生」歩20分 |
| There are two cars car space South-facing spacious balcony of LDK19 quires more Toilet 2 places カースペース2台分あり 南向きの広々バルコニー LDK19帖以上 トイレ2ヶ所 |
Features pickup 特徴ピックアップ | | Parking two Allowed / LDK18 tatami mats or more / Facing south / System kitchen / Bathroom Dryer / Yang per good / A quiet residential area / Washbasin with shower / Face-to-face kitchen / Toilet 2 places / 2-story / South balcony / Warm water washing toilet seat / Underfloor Storage / The window in the bathroom / TV monitor interphone / All living room flooring / Water filter / All rooms are two-sided lighting 駐車2台可 /LDK18畳以上 /南向き /システムキッチン /浴室乾燥機 /陽当り良好 /閑静な住宅地 /シャワー付洗面台 /対面式キッチン /トイレ2ヶ所 /2階建 /南面バルコニー /温水洗浄便座 /床下収納 /浴室に窓 /TVモニタ付インターホン /全居室フローリング /浄水器 /全室2面採光 | Price 価格 | | 27,800,000 yen 2780万円 | Floor plan 間取り | | 4LDK 4LDK | Units sold 販売戸数 | | 1 units 1戸 | Total units 総戸数 | | 3 units 3戸 | Land area 土地面積 | | 181.27 sq m (registration) 181.27m2(登記) | Building area 建物面積 | | 94.77 sq m (registration) 94.77m2(登記) | Driveway burden-road 私道負担・道路 | | Nothing, West 6.3m width 無、西6.3m幅 | Completion date 完成時期(築年月) | | February 2014 2014年2月 | Address 住所 | | Tokyo Akiruno flowers 東京都あきる野市草花 | Traffic 交通 | | JR Ome Line "Fussa" walk 20 minutes JR Itsukaichi "Higashiakiru" walk 29 minutes JR Ome Line "Ushihama" walk 32 minutes JR青梅線「福生」歩20分 JR五日市線「東秋留」歩29分 JR青梅線「牛浜」歩32分
| Person in charge 担当者より | | Person in charge of real-estate and building plains Yoichi Age: 30s 担当者宅建平野 陽一年齢:30代 | Contact お問い合せ先 | | TEL: 0800-603-1036 [Toll free] mobile phone ・ Also available from PHS Caller ID is not notified Please contact the "saw SUUMO (Sumo)" If it does not lead, If the real estate company TEL:0800-603-1036【通話料無料】携帯電話・PHSからもご利用いただけます 発信者番号は通知されません 「SUUMO(スーモ)を見た」と問い合わせください つながらない方、不動産会社の方は
| Building coverage, floor area ratio 建ぺい率・容積率 | | 40% ・ 80% 40%・80% | Time residents 入居時期 | | Consultation 相談 | Land of the right form 土地の権利形態 | | Ownership 所有権 | Structure and method of construction 構造・工法 | | Wooden 2-story 木造2階建 | Use district 用途地域 | | One low-rise 1種低層 | Other limitations その他制限事項 | | Irregular land, Irregular land 不整形地、不整形地 | Overview and notices その他概要・特記事項 | | Contact: Hirano Yoichi, Facilities: Public Water Supply, This sewage, Building confirmation number: No. H25SHC118360, Parking: car space 担当者:平野 陽一、設備:公営水道、本下水、建築確認番号:第H25SHC118360号、駐車場:カースペース | Company profile 会社概要 | | <Mediation> Governor of Tokyo (7) No. 047202 (Corporation) Tokyo Metropolitan Government Building Lots and Buildings Transaction Business Association (Corporation) metropolitan area real estate Fair Trade Council member (Ltd.) Yamaichi Home Hamura head office Yubinbango205-0003 Tokyo Hamura Midorigaoka 1-23-9 <仲介>東京都知事(7)第047202号(公社)東京都宅地建物取引業協会会員 (公社)首都圏不動産公正取引協議会加盟(株)山一ホーム羽村本店〒205-0003 東京都羽村市緑ヶ丘1-23-9 |
 Local appearance photo
現地外観写真
 Local appearance photo
現地外観写真
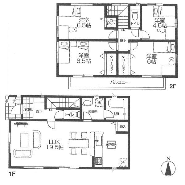
Floor plan間取り図  27,800,000 yen, 4LDK, Land area 181.27 sq m , Building area 94.77 sq m
2780万円、4LDK、土地面積181.27m2、建物面積94.77m2
 Local photos, including front road
前面道路含む現地写真
Compartment figure区画図  27,800,000 yen, 4LDK, Land area 181.27 sq m , Building area 94.77 sq m
2780万円、4LDK、土地面積181.27m2、建物面積94.77m2
 Local photos, including front road
前面道路含む現地写真
Location
|