New Homes » Kanto » Tokyo » Akishima


Tokyo Akishima
Seibu Haijima Line "Seibu Tachikawa" walk 2 minutes
Property name
Mitsui detached Fine coat Seibu Tachikawa Ayumoshiti Phase 3 / Notice advertising
Price
Undecided
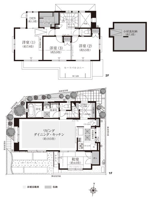
Floor plan
4LDK
Units sold
Undecided
Total units
168 units
Land area
100.02 sq m ~ 112.41 sq m
Building area
98.95 sq m ~ 110.11 sq m
Driveway burden-road
Road: about 5m ~ 12m asphalt pavement, Driveway burden: No
Completion date
2013 late March
Address
Tokyo Akishima Mihori-cho 1-chome, 355 No. 128
Traffic
Seibu Haijima Line "Seibu Tachikawa" walk 2 minutes
JR Ome Line "Akishima" walk 21 minutes
Related links
[Related Sites of this company]
Contact
Mitsui Fudosan Residential Co., Ltd. <Fine coat Seibu Tachikawa Ayumoshiti> sales center TEL: 0120-321-587 [Toll free] (mobile phone ・ Also available from PHS. ) Please contact the "saw SUUMO (Sumo)"
Sale schedule
■ Sales will start in early March 2014 ※ price ・ Units sold is undecided. Phase 3 sales dwelling unit because of the undetermined, Property data are inscribed thing of all sales target dwelling unit of the third period or later (building certification already acquired 50 units). Determination information will be explicit in the new sale advertising. Acts that lead to secure the contract or reservation of the application and the application order to sale can not be absolutely.
Event information
■ January 18, 2014 (Saturday) ・ 19 (Sunday) ・ 25 (Sat) ・ 26 (Sunday), Phase 3 model house prior guidance meetings decision! Time: (1) 10:00 AM ~ (2) 1:30 PM ~ ※ During your reservation acceptance by "visitors book" button in the properties HP! ※ 25 (Sat) ・ Your visit reservation of 26 days (day), We will consider it as January 6 (Monday) or later. ■ Document request being accepted!
Building coverage, floor area ratio
Kenpei rate: 60% (corner lot relaxation 70%), Volume ratio: 200%
Time residents
April 2014 late schedule
Land of the right form
Ownership
Structure and method of construction
Wooden 2-story (2 × 4 construction method)
Construction
Seibukensetsu Co., Ltd., Ltd. Estates Home
Use district
One middle and high
Land category
Residential land, Hybrid land
Overview and notices
Building confirmation number: No. SJK-KX1213030112 other, Transportation supplement / Seibu Haijima Line "Seibu Tachikawa" walk 2 minutes (residential area-ku to the entrance), 1-minute walk from the residential area Zone entrance, JR Ome Line "Akishima" walk 21 minutes (residential area-ku to the entrance), 2-minute walk from the residential area Zone entrance. The total development area of ​​67,426.54 sq m , The total number of plans compartment: 259 compartment (Seibu inner fine coat Tachikawa Ayumoshiti 168 compartment), Facilities: TEPCO, City gas, Public Water Supply, Public sewage, Home infiltration facilities, Car space (all households), ※ 1: The number of described on weekdays ・ During the day time (11:00 AM ~ 4:00 PM), When commuting (7:30 AM ~ 9:00 AM) is the time required for the most number of large train to arrive to the destination station of. transfer, Waiting time is not included. It depends on the time of day. () Is the time required at the time of commuting (October 2012 currently)
Company profile
<Seller> Minister of Land, Infrastructure and Transport (2) No. 7259 (one company) Real Estate Association (one company) Property Distribution Management Association (Corporation) metropolitan area real estate Fair Trade Council member Mitsui Fudosan Residential Co., Ltd. Yubinbango103-0022 Tokyo


Local appearance photo

Local appearance photo. Color of the building by AYUMO CITY In the district plan, height, Setting regulations to keep the securing good views of the site area. Outer wall and roof where the earth color tones is, Create a city landscape with a sense of unity together in harmony with the natural environment (local streets)
Color of the building by AYUMO CITY In the district plan, height, Setting regulations to keep the securing good views of the site area. Outer wall and roof where the earth color tones is, Create a city landscape with a sense of unity together in harmony with the natural environment (local streets)

Aerial photograph

aerial photograph. Seibu Haijima Line "Seibu Tachikawa" station a 2-minute walk of the good location! Large-scale commercial facilities and nature also spread to the rich in the surrounding local, Easy to live Location. Seen from the sky site (actually a slightly different is the addition of CG processing to those that were taken in July 2012)
Seibu Haijima Line "Seibu Tachikawa" station a 2-minute walk of the good location! Large-scale commercial facilities and nature also spread to the rich in the surrounding local, Easy to live Location. Seen from the sky site (actually a slightly different is the addition of CG processing to those that were taken in July 2012)

Other

Other. Yaoko Co., Ltd. Seibu Tachikawa Station shop located just a 1-minute walk (30m). In the new store, which opened in July this year, 9:30 AM ~ 10:00 open until PM. A rich assortment, Us to firmly support the life of the family.
Yaoko Co., Ltd. Seibu Tachikawa Station shop located just a 1-minute walk (30m). In the new store, which opened in July this year, 9:30 AM ~ 10:00 open until PM. A rich assortment, Us to firmly support the life of the family.

Living

Living. Facing south, Ventilation by a three-sided lighting ・ Good of about 18 tatami mats living in both the per yang ・ dining ・ kitchen. From the living room to the large space of about 22.6 tatami mats if open the DEN lead to flat. Easy-to-use size is glad (sale Models House)
Facing south, Ventilation by a three-sided lighting ・ Good of about 18 tatami mats living in both the per yang ・ dining ・ kitchen. From the living room to the large space of about 22.6 tatami mats if open the DEN lead to flat. Easy-to-use size is glad (sale Models House)

Non-living room

Non-living room. About 5.1 tatami nursery dihedral lighting. In the morning of awakening and plenty of bathed in warm natural light things fresh. Since the bay window counter is designed, It is possible to lay out what you like (sale Models House)
About 5.1 tatami nursery dihedral lighting. In the morning of awakening and plenty of bathed in warm natural light things fresh. Since the bay window counter is designed, It is possible to lay out what you like (sale Models House)

Floor plan
Floor plan

Primary school

Primary school. 420m to Tachikawa Municipal Nishisuna Elementary School
420m to Tachikawa Municipal Nishisuna Elementary School

Shopping centre

Shopping centre. The ・ 1110m until the Big Akishima shop
The ・ 1110m until the Big Akishima shop

Shopping centre. Until Mori Town 1550m
Until Mori Town 1550m

Local guide map

Local guide map. Including the Super Yaoko Co., Ltd. (about 30m) is in front of the station, Scheduled commercial facilities are complete. One of the "quotient × living" integrated development unique charm. Of course the day-to-day shopping, Commute ・ I'm glad Tachiyoreru incidentally of school the way home (local guide map)
Including the Super Yaoko Co., Ltd. (about 30m) is in front of the station, Scheduled commercial facilities are complete. One of the "quotient × living" integrated development unique charm. Of course the day-to-day shopping, Commute ・ I'm glad Tachiyoreru incidentally of school the way home (local guide map)

Access view
Access view

The entire compartment Figure

The entire compartment Figure. Flowers and greenery are continuous from the station square to your Uchi, Landscape, such as exciting. Also different flavor for each city block, Houses compete for attractive personality. Parks and public facilities also realize the life that fits all in about 400m (the entire section view)
Flowers and greenery are continuous from the station square to your Uchi, Landscape, such as exciting. Also different flavor for each city block, Houses compete for attractive personality. Parks and public facilities also realize the life that fits all in about 400m (the entire section view)

Park

park. 2040m to Showa Kinen Park (Tamagawa mouth)
2040m to Showa Kinen Park (Tamagawa mouth)

Home center

Home center. Cain home until Akishima shop 1140m
Cain home until Akishima shop 1140m

Other Environmental Photo

Other Environmental Photo. Showa-no-Mori 400m to golf course
Showa-no-Mori 400m to golf course

Other Environmental Photo. 1120m to Showa-no-Mori Tennis Center
1120m to Showa-no-Mori Tennis Center

Other Environmental Photo. K's Denki to Akishima shop 1280m
K's Denki to Akishima shop 1280m



Location