New Homes » Kanto » Tokyo » Akishima


Tokyo Akishima
JR Ome Line "Nakagami" walk 19 minutes
Development subdivision in, LDK15 tatami mats or more, Yang per good, Shaping land, Year Available, Super close, Parking two Allowed, System kitchen, Bathroom Dryer, All room storage, A quiet residential area, Around traffic fewer, Shea
One section of the development subdivision. Facing the development road of east 4.5m, The building has become a Zenshitsuminami direction! Dwelling environment ・ Location well-appointed living environment! (Please refer to the seller comments. ), But it is a little thing, With a screen door on all windows!
Features pickup
Year Available / Parking two Allowed / Super close / System kitchen / Bathroom Dryer / Yang per good / All room storage / A quiet residential area / LDK15 tatami mats or more / Around traffic fewer / Shaping land / Washbasin with shower / Face-to-face kitchen / Wide balcony / Toilet 2 places / Bathroom 1 tsubo or more / 2-story / South balcony / Double-glazing / Zenshitsuminami direction / Warm water washing toilet seat / Underfloor Storage / The window in the bathroom / TV monitor interphone / High-function toilet / Leafy residential area / All living room flooring / All room 6 tatami mats or more / Water filter / City gas / Maintained sidewalk / Flat terrain / Development subdivision in
Event information
Local sales meetings (please visitors to direct local) schedule / Every Saturday, Sunday and public holidays time / 10:00 ~ 17:00
Price
34,500,000 yen
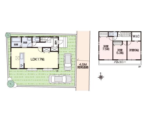
Floor plan
3LDK
Units sold
1 units
Total units
2 units
Land area
117.12 sq m (35.42 tsubo) (Registration)
Building area
90.05 sq m (27.24 tsubo) (measured)
Driveway burden-road
Road width: 4.5m, Asphaltic pavement
Completion date
2013 end of October
Address
Tokyo Akishima Miyazawa-cho 2-26
Traffic
JR Ome Line "Nakagami" walk 19 minutes
JR Ome Line "Akishima" walk 20 minutes
Person in charge
Rep Watanabe Keiko industry experience: with joy 10 years your smile has continued to this your work. It has the motto cherished full-hearted work your edge. I'm glad if Tatere to your role as a good advisor taking advantage of the experience.
Contact
TEL: 0800-603-1975 [Toll free] mobile phone ・ Also available from PHS
Caller ID is not notified
Please contact the "saw SUUMO (Sumo)"
If it does not lead, If the real estate company
Building coverage, floor area ratio
Kenpei rate: 40%, Volume ratio: 80%
Time residents
Consultation
Land of the right form
Ownership
Structure and method of construction
Wooden 2-story (framing method)
Use district
One low-rise
Land category
Residential land
Other limitations
Regulations have by the Landscape Act, Regulations have by the Aviation Law, Height district
Overview and notices
Contact: Watanabe Keiko, Building confirmation number: 25 Taken Kenichi Kendai 0207 No.
Company profile
<Mediation> Governor of Tokyo (5) No. 070326 (Corporation) All Japan Real Estate Association (Corporation) metropolitan area real estate Fair Trade Council member (Ltd.) Home land Akishima store Yubinbango196-0003 Tokyo Akishima Matsubara-cho 1-27-1


Other local

Other local. Building 2 Floor ・ section
Building 2 Floor ・ section

Local appearance photo

Local appearance photo. Local (11 May 2013) Shooting
Local (11 May 2013) Shooting

Kitchen

Kitchen. Indoor (11 May 2013) Shooting
Indoor (11 May 2013) Shooting

Living

Living. Indoor (11 May 2013) Shooting
Indoor (11 May 2013) Shooting

Non-living room

Non-living room. Indoor (11 May 2013) Shooting
Indoor (11 May 2013) Shooting

Kindergarten ・ Nursery

kindergarten ・ Nursery. Will Showa nursery school in the south-east side from property.
Will Showa nursery school in the south-east side from property.

kindergarten ・ Nursery. Will Akishima stand nursery school in the north-east side from property.
Will Akishima stand nursery school in the north-east side from property.

Primary school

Primary school. Elementary school located on the south side of the property.
Elementary school located on the south side of the property.

Junior high school

Junior high school. Junior high school on the north side of the property.
Junior high school on the north side of the property.

Supermarket

Supermarket. Ecos Tsukiji shop from property in the northeast side a 5-minute walk.
Ecos Tsukiji shop from property in the northeast side a 5-minute walk.

Convenience store

Convenience store. FamilyMart Miyazawa-cho 1-chome store from Listing to the northeast side a 5-minute walk.
FamilyMart Miyazawa-cho 1-chome store from Listing to the northeast side a 5-minute walk.



Location