New Homes » Kanto » Tokyo » Akishima


Tokyo Akishima
JR Ome Line "Haijima" walk 27 minutes
6 Building was completed. 23.8 million yen (including tax) is a newly built one units denominated handy price. Flat 35S corresponding Property. Bathroom with heating dryer. All room double-glazing adoption.
Corresponding to the flat-35S, Year Available, 2 along the line more accessible, System kitchen, Bathroom Dryer, All room storage, Washbasin with shower, Barrier-free, Toilet 2 places, 2-story, Double-glazing, Warm water washing toilet seat, Underfloor Storage, TV monitor interphone, All living room flooring, Water filter, Development subdivision in
Features pickup
Corresponding to the flat-35S / Immediate Available / 2 along the line more accessible / System kitchen / Bathroom Dryer / All room storage / Washbasin with shower / Barrier-free / Toilet 2 places / 2-story / Double-glazing / Warm water washing toilet seat / Underfloor Storage / TV monitor interphone / All living room flooring / Water filter / Development subdivision in
Price
23.8 million yen ~ 29,800,000 yen
Floor plan
3LDK ~ 4LDK
Units sold
6 units
Total units
8 units
Land area
115.2 sq m ~ 122.89 sq m (34.84 tsubo ~ 37.17 tsubo) (Registration)
Building area
85.28 sq m ~ 97.7 sq m (25.79 tsubo ~ 29.55 tsubo) (Registration)
Driveway burden-road
South width 5.00m road, East width 5.00m road, West width 5.00m road
Completion date
2013 early December
Address
Tokyo Akishima Haijima cho 4
Traffic
JR Ome Line "Haijima" walk 27 minutes
Seibu Haijima Line "Haijima" walk 27 minutes
JR Itsukaichi "Haijima" walk 27 minutes
Person in charge
Rep Fujii Takahiro
Contact
Co., Ltd., Chiyoda-home sales TEL: 0800-603-2192 [Toll free] mobile phone ・ Also available from PHS
Caller ID is not notified
Please contact the "saw SUUMO (Sumo)"
If it does not lead, If the real estate company
Building coverage, floor area ratio
Kenpei rate: 40%, Volume ratio: 80%
Time residents
Immediate available
Land of the right form
Ownership
Structure and method of construction
Wooden siding stuck 2-story
Use district
One low-rise
Land category
Residential land
Overview and notices
Person in charge: Fujii Takahiro, Building confirmation number: TKK 確済 13-807 No. other
Company profile
<Mediation> Governor of Tokyo (5) No. 070715 (Corporation) All Japan Real Estate Association (Corporation) metropolitan area real estate Fair Trade Council member Co., Ltd., Chiyoda-home sales Yubinbango196-0003 Tokyo Akishima Matsubara-cho 3-6-5 plan shell first floor


Local photos, including front road

Local photos, including front road. Local (11 May 2013) Shooting 6 Building
Local (11 May 2013) Shooting 6 Building

Local photos, including front road. Local (11 May 2013) Shooting 6 Building
Local (11 May 2013) Shooting 6 Building

Local photos, including front road. Local (11 May 2013) Shooting
Local (11 May 2013) Shooting

Floor plan

Floor plan. (1 Building), Price 29,800,000 yen, 4LDK, Land area 115.2 sq m , Building area 88.59 sq m
(1 Building), Price 29,800,000 yen, 4LDK, Land area 115.2 sq m , Building area 88.59 sq m

Local photos, including front road

Local photos, including front road. Local (11 May 2013) Shooting
Local (11 May 2013) Shooting

Supermarket

Supermarket. Ito-Yokado to Haijima shop 1739m
Ito-Yokado to Haijima shop 1739m

The entire compartment Figure
The entire compartment Figure

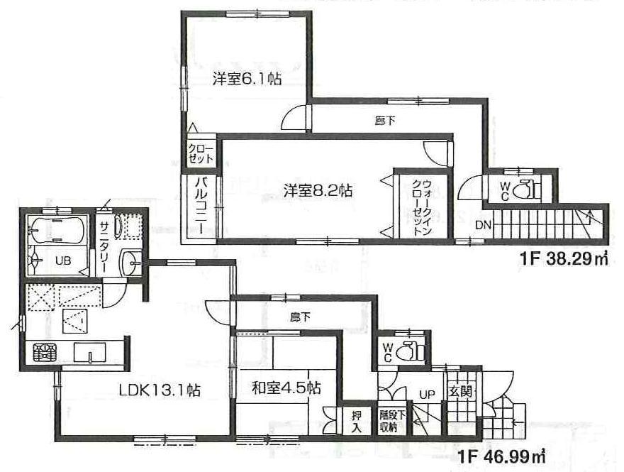
Floor plan

Floor plan. (6 Building), Price 23.8 million yen, 4LDK, Land area 120.41 sq m , Building area 85.28 sq m
(6 Building), Price 23.8 million yen, 4LDK, Land area 120.41 sq m , Building area 85.28 sq m

Local photos, including front road

Local photos, including front road. Local (11 May 2013) Shooting
Local (11 May 2013) Shooting

Junior high school

Junior high school. Akishima 296m to stand Tama side junior high school
Akishima 296m to stand Tama side junior high school

Floor plan

Floor plan. (Building 2), Price 29,800,000 yen, 3LDK, Land area 115.51 sq m , Building area 89.42 sq m
(Building 2), Price 29,800,000 yen, 3LDK, Land area 115.51 sq m , Building area 89.42 sq m

Local photos, including front road

Local photos, including front road. Local (11 May 2013) Shooting
Local (11 May 2013) Shooting

Primary school

Primary school. Haijima 240m until the fourth elementary school
Haijima 240m until the fourth elementary school



Location