New Homes » Kanto » Tokyo » Bunkyo


Bunkyo-ku, Tokyo
JR Yamanote Line "Sugamo" walk 9 minutes
2 along the line more accessible, System kitchen, Bathroom Dryer, Yang per good, A quiet residential area, Face-to-face kitchen, Toilet 2 places, Bathroom 1 tsubo or more, Double-glazing, Otobasu, The window in the bathroom, TV monitor in
■ A quiet residential area ■ Easy-to-use 4LDK ■ All rooms lighting ・ With screen door ■ Flat 35 application properties ■ Home warranty with responsibility
Features pickup
2 along the line more accessible / System kitchen / Bathroom Dryer / Yang per good / A quiet residential area / Face-to-face kitchen / Toilet 2 places / Bathroom 1 tsubo or more / Double-glazing / Otobasu / The window in the bathroom / TV monitor interphone / All living room flooring / Built garage / Dish washing dryer / Water filter / City gas / Floor heating
Price
58,800,000 yen ~ 59,800,000 yen
Floor plan
4LDK
Units sold
2 units
Total units
5 units
Land area
60.14 sq m ~ 61.77 sq m
Building area
90.84 sq m ~ 92.95 sq m
Driveway burden-road
Road width: 4m, Asphaltic pavement
Completion date
2013 end of August
Address
Bunkyo-ku, Tokyo Sengoku 3-26-1
Traffic
JR Yamanote Line "Sugamo" walk 9 minutes
Toei Mita Line "Sugamo" walk 9 minutes
Tokyo Metro Marunouchi Line "Shin'otsuka" walk 10 minutes
Contact
TEL: 0800-603-2768 [Toll free] mobile phone ・ Also available from PHS
Caller ID is not notified
Please contact the "saw SUUMO (Sumo)"
If it does not lead, If the real estate company
Building coverage, floor area ratio
Kenpei rate: 60%, Volume ratio: 200%
Time residents
Consultation
Land of the right form
Ownership
Structure and method of construction
Wooden three-story
Use district
One middle and high
Other limitations
Quasi-fire zones
Overview and notices
Building confirmation number: No. 12UDI13S Ken 03,702 other
Company profile
<Mediation> Governor of Tokyo (3) The 078,096 No. practical Kasuga Home Co., Ltd. Nishikata shop Yubinbango113-0024, Bunkyo-ku, Tokyo Nishikata 1-15-7


Local appearance photo
Local appearance photo

Other local

Other local. 5 Building
5 Building

Local photos, including front road

Local photos, including front road. 5 Building appearance
5 Building appearance

Local appearance photo

Local appearance photo. 5 Building appearance
5 Building appearance

Living

Living. 5 Building room
5 Building room

Bathroom

Bathroom. 1 Building room
1 Building room

Kitchen

Kitchen. 1 Building room
1 Building room

Non-living room

Non-living room. 1 Building room
1 Building room

Entrance

Entrance. 1 Building room
1 Building room

Wash basin, toilet

Wash basin, toilet. 5 Building room
5 Building room

Toilet

Toilet. 1 Building room
1 Building room

Balcony

Balcony. 1 Building
1 Building

View photos from the dwelling unit

View photos from the dwelling unit. 1 Building view
1 Building view

Other

Other. Site plan
Site plan

Living

Living. 5 Building room
5 Building room

Non-living room

Non-living room. 5 Building room
5 Building room

Other

Other. 1 Building Floor Plan
1 Building Floor Plan

Non-living room

Non-living room. 5 Building room
5 Building room

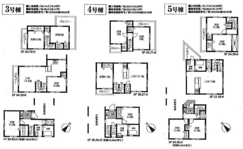
Other

Other. 3 ~ 5 Building floor plan
3 ~ 5 Building floor plan



Location