New Homes » Kanto » Tokyo » Bunkyo
 
| | Bunkyo-ku, Tokyo 東京都文京区 |
| JR Yamanote Line "Sugamo" walk 9 minutes JR山手線「巣鴨」歩9分 |
| Flat 35 financed properties. It is a property that equipment specifications were also enhanced. フラット35融資対象物件。設備仕様も充実した物件です。 |
| Used apartment ・ Residential home ・ So that come true hope Tokyo Sale information for customers such as land, Wholeheartedly we introduce. We will find the rooms meet the needs of our wish to help in fine thoughtfulness. Since we have published a large number of public before the property is in HP, We are allowed to quickly transmit the fresh information. So that I found you live the customer Nasaru consent, And supported by the best with the sense of speed. Sale assessment ・ We also purchase. In the case of hope is, Until Kee Corporation buying and selling Division 03-6865-1151 Please feel free to contact us. 中古マンション・一戸建て・土地等の東京都内売買物件情報をお客様のご希望が叶うよう、 心を込めてご紹介しております。お客様のご希望に合ったお部屋探しを細かい心遣いでお手伝いさせて頂きます。HPには公開前の物件を多数掲載しておりますので、新鮮な情報をいち早く発信させて頂いております。お客様が納得なさるお住まいが見つかるよう、スピード感を持って全力でサポートします。売却査定・買い取りも致します。ご希望の際は、ケーコーポレーション売買事業部03-6865-1151迄 お気軽にお問い合わせ下さい。 |
Features pickup 特徴ピックアップ | | 2 along the line more accessible / System kitchen / Bathroom Dryer / Washbasin with shower / Face-to-face kitchen / Double-glazing / Warm water washing toilet seat / TV monitor interphone / All living room flooring / Dish washing dryer / Water filter / Three-story or more / City gas 2沿線以上利用可 /システムキッチン /浴室乾燥機 /シャワー付洗面台 /対面式キッチン /複層ガラス /温水洗浄便座 /TVモニタ付インターホン /全居室フローリング /食器洗乾燥機 /浄水器 /3階建以上 /都市ガス | Price 価格 | | 58,800,000 yen 5880万円 | Floor plan 間取り | | 4LDK 4LDK | Units sold 販売戸数 | | 1 units 1戸 | Total units 総戸数 | | 5 units 5戸 | Land area 土地面積 | | 61.77 sq m (18.68 tsubo) (measured) 61.77m2(18.68坪)(実測) | Building area 建物面積 | | 90.84 sq m (27.47 tsubo) (measured) 90.84m2(27.47坪)(実測) | Driveway burden-road 私道負担・道路 | | 132.48 sq m , Northeast 4m width (contact the road width 1m) 132.48m2、北東4m幅(接道幅1m) | Completion date 完成時期(築年月) | | September 2013 2013年9月 | Address 住所 | | Tokyo, Bunkyo-ku, Sengoku 3 東京都文京区千石3 | Traffic 交通 | | JR Yamanote Line "Sugamo" walk 9 minutes Tokyo Metro Marunouchi Line "Shin'otsuka" walk 12 minutes JR Yamanote line "Otsuka" walk 11 minutes JR山手線「巣鴨」歩9分 東京メトロ丸ノ内線「新大塚」歩12分 JR山手線「大塚」歩11分
| Related links 関連リンク | | [Related Sites of this company] 【この会社の関連サイト】 | Person in charge 担当者より | | Person in charge of the customer responsible Age: 20 Daigyokai experience: we will be happy to help you find the room matches the hope of one year customers with fine thoughtfulness. The company HP, We have published the number of properties before publishing. We are allowed to quickly transmit the fresh information. 担当者お客様担当年齢:20代業界経験:1年お客様のご希望に合ったお部屋探しを細かい心遣いでお手伝いさせて頂きます。弊社HPには、公開前の物件数掲載しております。新鮮な情報をいち早く発信させて頂いております。 | Contact お問い合せ先 | | TEL: 0800-603-1099 [Toll free] mobile phone ・ Also available from PHS Caller ID is not notified Please contact the "saw SUUMO (Sumo)" If it does not lead, If the real estate company TEL:0800-603-1099【通話料無料】携帯電話・PHSからもご利用いただけます 発信者番号は通知されません 「SUUMO(スーモ)を見た」と問い合わせください つながらない方、不動産会社の方は
| Building coverage, floor area ratio 建ぺい率・容積率 | | 60% ・ 200% 60%・200% | Time residents 入居時期 | | Consultation 相談 | Land of the right form 土地の権利形態 | | Ownership 所有権 | Structure and method of construction 構造・工法 | | Wooden three-story 木造3階建 | Use district 用途地域 | | One middle and high 1種中高 | Overview and notices その他概要・特記事項 | | Contact: Customer Contact, Facilities: Public Water Supply, This sewage, City gas, Building confirmation number: first 12UDI3S Ken 03703, Parking: car space 担当者:お客様担当、設備:公営水道、本下水、都市ガス、建築確認番号:第12UDI3S建03703、駐車場:カースペース | Company profile 会社概要 | | <Mediation> Governor of Tokyo (7) No. 054460 (Ltd.) Kee Corporation head office Yubinbango113-0001, Bunkyo-ku, Tokyo Hakusan 1-33-19 Lions Mansion Hakusan Station <仲介>東京都知事(7)第054460号(株)ケーコーポレーション本店〒113-0001 東京都文京区白山1-33-19 ライオンズマンション白山駅前 |
 Local appearance photo
現地外観写真
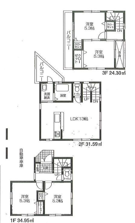
Floor plan間取り図  58,800,000 yen, 4LDK, Land area 61.77 sq m , Building area 90.84 sq m
5880万円、4LDK、土地面積61.77m2、建物面積90.84m2
Compartment figure区画図  58,800,000 yen, 4LDK, Land area 61.77 sq m , Building area 90.84 sq m
5880万円、4LDK、土地面積61.77m2、建物面積90.84m2
 Local appearance photo
現地外観写真
 Local photos, including front road
前面道路含む現地写真
 Local appearance photo
現地外観写真
 Local appearance photo
現地外観写真
 Local appearance photo
現地外観写真
 Local appearance photo
現地外観写真
 Local appearance photo
現地外観写真
 Local appearance photo
現地外観写真
 Local appearance photo
現地外観写真
 Local appearance photo
現地外観写真
 Local appearance photo
現地外観写真
 Local appearance photo
現地外観写真
 Local appearance photo
現地外観写真
 Local appearance photo
現地外観写真
 Local appearance photo
現地外観写真
 Local appearance photo
現地外観写真
Location
|