New Homes » Kanto » Tokyo » Fuchu
 
| | Fuchu, Tokyo 東京都府中市 |
| JR Chuo Line "Musashi Koganei" bus 7 minutes Tokyo autonomy Kaikan walk 6 minutes JR中央線「武蔵小金井」バス7分東京自治会館歩6分 |
| (Seller direct sales !!) Heart full Town Fuchushin-cho (Fuchu Shinmachi 2 chome) Development sale All six compartment (with land sale) "to the families who love Fuchu" Thank you for waiting! ~ All 6 compartment! It is a new sale direct sale properties (売主直売!!)ハートフルタウン府中新町(府中市新町2丁目)開発分譲 全6区画(土地分譲あり)”府中を愛する家族へ”お待たせしました! ~ 全6区画!新発売直売物件です |
| Dwell in the land, To the families who love Fuchu ◆ Seller direct sales! All 6 A pane direct sales listing ◆ ○ convenient JR Chuo Line to commute " Musashi Koganei " station AB compartment of the bus service number ○ Higashihachi road side to the land sale Produce is your favorite house is possible construction by the manufacturer ○ garage happy development road about 4.5m Feeling of freedom and sunlight ○ floor plan is, Spacious of 14 quires than 4LDK Western-style or with a Japanese-style room on the first floor OK even monthly 110,000 yen of payment in the family please come true the dream ○ bonus repayment without the 100% loan Please look in comparison with the now rent + parking Badai. Document request ・ Local your tour do not hesitate until 0120-15-8848 この地に住む、府中を愛する家族たちへ◆売主直売!全6区画直売物件です◆○通勤通学に便利なJR中央線 『 武蔵小金井 』 駅 までバス便多数○東八道路側のAB区画は土地分譲 お好きなハウスメーカで建築可能です○車庫入れもラクラクな開発道路約4.5mが生み出す 解放感と陽光○間取りは、ひろびろ14帖超の4LDK 1階に洋室もしくは和室付き 家族の夢をかなえてください○ボーナス返済なし100%ローンでも毎月11万円台のお支払でOK 今の家賃+駐車場代と比べて見てください。資料請求・現地ご見学はお気軽に0120-15-8848迄 |
Features pickup 特徴ピックアップ | | Construction housing performance with evaluation / Design house performance with evaluation / Corresponding to the flat-35S / Pre-ground survey / Vibration Control ・ Seismic isolation ・ Earthquake resistant / Parking two Allowed / Energy-saving water heaters / Facing south / System kitchen / All room storage / Flat to the station / A quiet residential area / LDK15 tatami mats or more / Around traffic fewer / Corner lot / Shaping land / Washbasin with shower / Face-to-face kitchen / Wide balcony / Bathroom 1 tsubo or more / 2-story / South balcony / Double-glazing / Warm water washing toilet seat / Underfloor Storage / The window in the bathroom / Leafy residential area / Ventilation good / All living room flooring / Water filter / Living stairs / All rooms are two-sided lighting / Flat terrain 建設住宅性能評価付 /設計住宅性能評価付 /フラット35Sに対応 /地盤調査済 /制震・免震・耐震 /駐車2台可 /省エネ給湯器 /南向き /システムキッチン /全居室収納 /駅まで平坦 /閑静な住宅地 /LDK15畳以上 /周辺交通量少なめ /角地 /整形地 /シャワー付洗面台 /対面式キッチン /ワイドバルコニー /浴室1坪以上 /2階建 /南面バルコニー /複層ガラス /温水洗浄便座 /床下収納 /浴室に窓 /緑豊かな住宅地 /通風良好 /全居室フローリング /浄水器 /リビング階段 /全室2面採光 /平坦地 | Event information イベント情報 | | (Please be sure to ask in advance) [The shop, Property Location ・ Floor plan ・ We have published all the compartment view (including the road with). ] Because of the busy season, Thank you accepted by phone. Free dial 0120-15-8848 Our sales listing is, You can also see in the building. Complete listing is of course, You can also see your freely in the property under construction. Marantz rather, I thought firm like seeing a structural framework can not be seen easily in the post-completion. Your tour at any time is possible. If you wish to site visits, Please contact us in advance. Specification ・ We will send blueprint. The exact (including planned) that blueprint and are using please tell us when and housing equipment is hope the specification has been posted. (事前に必ずお問い合わせください)【当店では、物件所在地・間取り図・区画図(道路付けを含む)を全て公開しております。】繁忙期のため、お電話にて受付をお願いします。フリーダイヤル 0120-15-8848当社の販売物件は、建築中でもご覧いただけます。完成物件はもちろん、建築中の物件でもご自由にご覧いただけます。むしろ当社としましては、完成後ではなかなか見ることが出来ないしっかりとした構造躯体をご覧いただきたいと思っております。いつでもご見学は可能です。現地見学をご希望される場合は、事前にご連絡ください。仕様書・設計図お送りいたします。正確な設計図や使用している(予定を含む)住宅機器などが掲載している仕様書をご希望されるときはお申し付けください。 | Price 価格 | | 37,800,000 yen ~ 41,300,000 yen 3780万円 ~ 4130万円 | Floor plan 間取り | | 4LDK 4LDK | Units sold 販売戸数 | | 3 units 3戸 | Total units 総戸数 | | 4 units 4戸 | Land area 土地面積 | | 100 sq m ~ 110.7 sq m (measured) 100m2 ~ 110.7m2(実測) | Building area 建物面積 | | 92.73 sq m ~ 93.98 sq m (measured) 92.73m2 ~ 93.98m2(実測) | Driveway burden-road 私道負担・道路 | | Road width: 4.5m ・ , Asphaltic pavement, There is new road equity 道路幅:4.5m・、アスファルト舗装、新設道路持分あり | Completion date 完成時期(築年月) | | March 2014 schedule 2014年3月予定 | Address 住所 | | Fuchu, Tokyo Shinmachi 2-48-7 東京都府中市新町2-48-7 | Traffic 交通 | | JR Chuo Line "Musashi Koganei" bus 7 minutes Tokyo autonomy Kaikan walk 6 minutes JR中央線「武蔵小金井」バス7分東京自治会館歩6分
| Related links 関連リンク | | [Related Sites of this company] 【この会社の関連サイト】 | Person in charge 担当者より | | Person in charge of real-estate and building Kurosaki Fumie Age: 20 Daigyokai Experience: 2 years from now, Residential a smart buy era! My name is Kurosaki of Idasangyo Kichijoji office. Idasangyo is the only direct sales specialty store. Our heart full Town is home to long-lasting and strong strong earthquake. 担当者宅建黒崎 史恵年齢:20代業界経験:2年これからは、住宅をかしこく買う時代です!飯田産業吉祥寺営業所の黒崎と申します。飯田産業唯一の直売専門店です。当社のハートフルタウンは地震に強い丈夫で長持ちする住宅です。 | Contact お問い合せ先 | | TEL: 0800-808-5143 [Toll free] mobile phone ・ Also available from PHS Caller ID is not notified Please contact the "saw SUUMO (Sumo)" If it does not lead, If the real estate company TEL:0800-808-5143【通話料無料】携帯電話・PHSからもご利用いただけます 発信者番号は通知されません 「SUUMO(スーモ)を見た」と問い合わせください つながらない方、不動産会社の方は
| Sale schedule 販売スケジュール | | Dwell in the land, To the families who love Fuchu ◆ Seller direct sales! All 6 A pane direct sales listing ◆ ○ convenient JR Chuo Line to commute " Musashi Koganei " station AB compartment of the bus service number ○ Higashihachi road side to the land sale Produce is your favorite house is possible construction by the manufacturer ○ garage happy development road about 4.5m Feeling of freedom and sunlight ○ floor plan is, Spacious of 14 quires than 4LDK Western-style or with a Japanese-style room on the first floor OK even monthly 110,000 yen of payment in the family please come true the dream ○ bonus repayment without the 100% loan Please look in comparison with the now rent + parking Badai. Document request ・ Because of local your tour do not hesitate busy season, Accepted thank you by phone. Kichijoji office 0120-15-8848 until この地に住む、府中を愛する家族たちへ◆売主直売!全6区画直売物件です◆○通勤通学に便利なJR中央線 『 武蔵小金井 』 駅 までバス便多数○東八道路側のAB区画は土地分譲 お好きなハウスメーカで建築可能です○車庫入れもラクラクな開発道路約4.5mが生み出す 解放感と陽光○間取りは、ひろびろ14帖超の4LDK 1階に洋室もしくは和室付き 家族の夢をかなえてください○ボーナス返済なし100%ローンでも毎月11万円台のお支払でOK 今の家賃+駐車場代と比べて見てください。資料請求・現地ご見学はお気軽に繁忙期のため、受付はお電話にてお願いします。吉祥寺営業所 0120‐15‐8848迄 | Building coverage, floor area ratio 建ぺい率・容積率 | | Kenpei rate: 40%, Volume ratio: 80% 建ペい率:40%、容積率:80% | Time residents 入居時期 | | March 2014 schedule 2014年3月予定 | Land of the right form 土地の権利形態 | | Ownership 所有権 | Structure and method of construction 構造・工法 | | Wooden 2-story (panel method) 木造2階建(パネル工法) | Construction 施工 | | Ltd. Idasangyo (Own design ・ Construction ・ Condominium sales) 株式会社飯田産業 (自社設計・施工・分譲販売) | Use district 用途地域 | | Quasi-residence 準住居 | Land category 地目 | | Residential land 宅地 | Other limitations その他制限事項 | | Height district 高度地区 | Overview and notices その他概要・特記事項 | | Contact: Kurosaki Fumie, Building confirmation number: HPA-13-07724-1 issue other 担当者:黒崎 史恵、建築確認番号:HPA-13-07724-1号他 | Company profile 会社概要 | | <Seller> Minister of Land, Infrastructure and Transport (8) No. 003306 (Ltd.) Idasangyo Kichijoji office Information Center Yubinbango180-0004 Musashino-shi, Tokyo Kichijojihon cho 1-13-9 Daiei Building 1F <売主>国土交通大臣(8)第003306号(株)飯田産業吉祥寺営業所インフォメーションセンター〒180-0004 東京都武蔵野市吉祥寺本町1-13-9大栄ビル1F |
Model house photoモデルハウス写真  Open-minded town is born smile gather a nice family town
開放的な街が誕生します笑顔が素敵な家族が集まる街
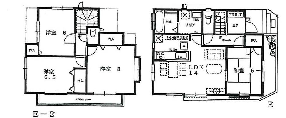
Floor plan間取り図  (E Building), Price 41,300,000 yen, 4LDK, Land area 100 sq m , Building area 93.56 sq m
(E号棟)、価格4130万円、4LDK、土地面積100m2、建物面積93.56m2
 (D Building), Price 40,900,000 yen, 4LDK, Land area 100 sq m , Building area 93.98 sq m
(D号棟)、価格4090万円、4LDK、土地面積100m2、建物面積93.98m2
 (C Building), Price 37,800,000 yen, 4LDK, Land area 110.7 sq m , Building area 92.73 sq m
(C号棟)、価格3780万円、4LDK、土地面積110.7m2、建物面積92.73m2
 The entire compartment Figure
全体区画図
Local appearance photo現地外観写真  Local (12 May 2013) Shooting
現地(2013年12月)撮影
Local photos, including front road前面道路含む現地写真  Please feel the release and the sunlight that this road will produce
この道路が生み出す解放と陽光を感じて下さい
 Local (12 May 2013) Shooting
現地(2013年12月)撮影
 There and handy convenience store right next door
あると便利なコンビニはすぐ隣
Model house photoモデルハウス写真  Model house
モデルハウス
 So also have Goaza in the immediate vicinity model house
モデルハウスもすぐ近くにごあざいますので
 Model house photo
モデルハウス写真
 Model house photo
モデルハウス写真
 Model house photo
モデルハウス写真
 Model house photo
モデルハウス写真
 Model house photo
モデルハウス写真
 Model house photo
モデルハウス写真
 Model house photo
モデルハウス写真
Supermarketスーパー  1184m until Inageya Fuchu Asama-cho shop
いなげや府中浅間町店まで1184m
Junior high school中学校  401m to Fuchu Municipal Fuchu fifth junior high school
府中市立府中第五中学校まで401m
Primary school小学校  712m to Fuchu Municipal Fuchu sixth elementary school
府中市立府中第六小学校まで712m
Otherその他  Now is the era to buy wisely housing! Idasangyo is a member of the Kichijoji office. Heart full Town of the Company (the seller) is the house that long-lasting and strong strong earthquake. Contact e-mail ・ Your phone is either welcome.
これからは住宅をかしこく買う時代です!飯田産業吉祥寺営業所のメンバーです。当社(売主)のハートフルタウンは地震に強い丈夫で長持ちする住宅です。お問合せはメール・お電話どちらでも大歓迎です。
 Thanks in Tokyo and number one!
おかげさまで東京都ナンバーワン!
Construction ・ Construction method ・ specification構造・工法・仕様  Nice house of strong Iida to earthquake
地震に強い飯田のいい家
 Get the housing performance evaluation report of the third-party organization in all properties!
全物件で第3者機関の住宅性能評価書を取得!
 Even without damage for the fourth consecutive times of seismic experiment!
連続4回の耐震実験でも損傷なし!
Otherその他  Everyone is granted to buy a house!
誰もが当たり前に家を買える!
Location
|