New Homes » Kanto » Tokyo » Fuchu

| | Fuchu, Tokyo 東京都府中市 |
| JR Chuo Line "Kokubunji" walk 26 minutes JR中央線「国分寺」歩26分 |
| Latest sale status of "of today" is [Toll free] TEL: please call 0800-603-0550. ■ Convenient shopping at the Super Value close (60m)! “本日現在”の最新販売状況は【通話料無料】TEL:0800-603-0550 までお電話ください。■スーパーバリュー至近(60m)で買い物便利! |
| Construction housing performance with evaluation, Design house performance with evaluation, Vibration Control ・ Seismic isolation ・ Earthquake resistant, 2 along the line more accessible, System kitchen, All room storage, LDK15 tatami mats or more, Shaping land, Washbasin with shower, Face-to-face kitchen, Toilet 2 places, Bathroom 1 tsubo or more, 2-story, South balcony, Double-glazing, Underfloor Storage, All living room flooring, Built garage, Living stairs, City gas 建設住宅性能評価付、設計住宅性能評価付、制震・免震・耐震、2沿線以上利用可、システムキッチン、全居室収納、LDK15畳以上、整形地、シャワー付洗面台、対面式キッチン、トイレ2ヶ所、浴室1坪以上、2階建、南面バルコニー、複層ガラス、床下収納、全居室フローリング、ビルトガレージ、リビング階段、都市ガス |
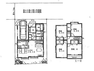
Features pickup 特徴ピックアップ | | Construction housing performance with evaluation / Design house performance with evaluation / Vibration Control ・ Seismic isolation ・ Earthquake resistant / 2 along the line more accessible / System kitchen / All room storage / LDK15 tatami mats or more / Shaping land / Washbasin with shower / Face-to-face kitchen / Toilet 2 places / Bathroom 1 tsubo or more / 2-story / South balcony / Double-glazing / Underfloor Storage / All living room flooring / Built garage / Living stairs / City gas 建設住宅性能評価付 /設計住宅性能評価付 /制震・免震・耐震 /2沿線以上利用可 /システムキッチン /全居室収納 /LDK15畳以上 /整形地 /シャワー付洗面台 /対面式キッチン /トイレ2ヶ所 /浴室1坪以上 /2階建 /南面バルコニー /複層ガラス /床下収納 /全居室フローリング /ビルトガレージ /リビング階段 /都市ガス | Price 価格 | | 36,800,000 yen 3680万円 | Floor plan 間取り | | 4LDK 4LDK | Units sold 販売戸数 | | 1 units 1戸 | Land area 土地面積 | | 86.22 sq m 86.22m2 | Building area 建物面積 | | 89.84 sq m 89.84m2 | Driveway burden-road 私道負担・道路 | | Nothing 無 | Completion date 完成時期(築年月) | | March 2014 2014年3月 | Address 住所 | | Fuchu, Tokyo Shinmachi 2 東京都府中市新町2 | Traffic 交通 | | JR Chuo Line "Kokubunji" walk 26 minutes Keio Line "Fuchu" 10 minutes Shinmachi cultural center before walking 3 minutes by bus JR Musashino Line "Kitafuchu" walk 28 minutes JR中央線「国分寺」歩26分 京王線「府中」バス10分新町文化センター前歩3分 JR武蔵野線「北府中」歩28分
| Related links 関連リンク | | [Related Sites of this company] 【この会社の関連サイト】 | Person in charge 担当者より | | [Regarding this property.] Only keep thinking the funds plan to meet your future design together the "Toho financial maintenance" because it is now of interest rate rise risk, Please pay attention! 【この物件について】お客様の将来設計に合わせた資金計画を一緒に考え続ける「東宝ファイナンシャルメンテナンス」を金利上昇リスクの今だからこそ、ご注目ください! | Contact お問い合せ先 | | TEL: 0800-603-0550 [Toll free] mobile phone ・ Also available from PHS Caller ID is not notified Please contact the "saw SUUMO (Sumo)" If it does not lead, If the real estate company TEL:0800-603-0550【通話料無料】携帯電話・PHSからもご利用いただけます 発信者番号は通知されません 「SUUMO(スーモ)を見た」と問い合わせください つながらない方、不動産会社の方は
| Land of the right form 土地の権利形態 | | Ownership 所有権 | Structure and method of construction 構造・工法 | | Wooden 2-story 木造2階建 | Overview and notices その他概要・特記事項 | | Facilities: Public Water Supply, This sewage, City gas, Building confirmation number: No. HPA-13-07664-1, Parking: car space 設備:公営水道、本下水、都市ガス、建築確認番号:第HPA-13-07664-1号、駐車場:カースペース | Company profile 会社概要 | | <Mediation> Governor of Tokyo (9) No. 042787 (Corporation) Tokyo Metropolitan Government Building Lots and Buildings Transaction Business Association (Corporation) metropolitan area real estate Fair Trade Council member THR housing distribution Group Co., Ltd., Toho House Kokubunji Yubinbango185-0021 Tokyo Kokubunji Minamicho 3-22-2 Tokio Marine & Nichido Building first floor ・ Second floor <仲介>東京都知事(9)第042787号(公社)東京都宅地建物取引業協会会員 (公社)首都圏不動産公正取引協議会加盟THR住宅流通グループ(株)東宝ハウス国分寺〒185-0021 東京都国分寺市南町3-22-2 東京海上日動ビル1階・2階 |
Floor plan間取り図  36,800,000 yen, 4LDK, Land area 86.22 sq m , Building area 89.84 sq m 4LDK + built-in garage
3680万円、4LDK、土地面積86.22m2、建物面積89.84m2 4LDK+ビルトインガレージ
Location
|