New Homes » Kanto » Tokyo » Higashimurayama
 
| | Tokyo Higashimurayama 東京都東村山市 |
| Seibu Shinjuku Line "Higashi-Murayama" walk 18 minutes 西武新宿線「東村山」歩18分 |
| (Seller direct sales !!) Heart full Town Higashimurayama IV (Higashimurayama Noguchi-cho 3-chome) Station 11 minutes imposing complete! Simultaneous price cut carrying out per! Chance now ~ It is a direct sales Property! (売主直売!!)ハートフルタウン東村山IV(東村山市野口町3丁目) 駅11分堂々完成!につき一斉値下げ断行!今がチャンス ~ 直売物件です! |
| ◆ Seller direct sales! It is a guide in our reservation system per whole building completed! Simultaneous price cuts decisive action! For every, Now's your chance direct sale properties! ◆ ○ Seibu Shinjuku Line " Higashimurayama "Station walk 18 minutes of good location " Seibuen "Station 7 minutes walk " Seibuyuenchi "Station walk 11 minutes ○ peripheral is good living environment in a quiet residential area ○ popularity of the second floor living 3LDK ・ There is a Western-style room on the first floor 4LDK ○ bonus repayment Mu Even 100% loan It is available for purchase at the 80,000 yen level. Please document request compared to the now rent + parking Badai ・ Because of local your tour do not hesitate busy season, Thank you accepted by phone. Kichijoji office Until 0120-15-8848 ◆売主直売!全棟完成につきご予約制でご案内中です! 一斉値下げ断行!につき、今がチャンス直売物件です!◆○西武新宿線 『 東村山 』駅徒歩18分の好立地 『 西武園 』駅徒歩7分 『 西武遊園地 』駅徒歩11分○周辺は閑静な住宅街で住環境良好です○人気の2階リビングの3LDK・1階に洋室がある4LDK○ボーナス返済無 100%ローンでも 8万円台で購入可能です。 今の家賃+駐車場代と比べて下さい資料請求・現地ご見学はお気軽に繁忙期のため、お電話にて受付をお願いします。吉祥寺営業所 0120-15-8848まで |
Features pickup 特徴ピックアップ | | Construction housing performance with evaluation / Design house performance with evaluation / Corresponding to the flat-35S / Pre-ground survey / Vibration Control ・ Seismic isolation ・ Earthquake resistant / Seismic fit / 2 along the line more accessible / Energy-saving water heaters / Super close / Summer resort / Facing south / System kitchen / Yang per good / All room storage / Flat to the station / Siemens south road / A quiet residential area / Around traffic fewer / Or more before road 6m / Corner lot / Starting station / Shaping land / Washbasin with shower / Face-to-face kitchen / Toilet 2 places / Bathroom 1 tsubo or more / Double-glazing / Warm water washing toilet seat / Underfloor Storage / The window in the bathroom / TV monitor interphone / Leafy residential area / Water filter / Three-story or more / City gas 建設住宅性能評価付 /設計住宅性能評価付 /フラット35Sに対応 /地盤調査済 /制震・免震・耐震 /耐震適合 /2沿線以上利用可 /省エネ給湯器 /スーパーが近い /避暑地 /南向き /システムキッチン /陽当り良好 /全居室収納 /駅まで平坦 /南側道路面す /閑静な住宅地 /周辺交通量少なめ /前道6m以上 /角地 /始発駅 /整形地 /シャワー付洗面台 /対面式キッチン /トイレ2ヶ所 /浴室1坪以上 /複層ガラス /温水洗浄便座 /床下収納 /浴室に窓 /TVモニタ付インターホン /緑豊かな住宅地 /浄水器 /3階建以上 /都市ガス | Event information イベント情報 | | (Please be sure to ask in advance) [We have completed, The Company You do not have to sell the Board, but on weekdays ・ Saturday and Sunday the actual building at any time, regardless Guests tour the. ~ Thank you for your reservation as soon as possible. ~ ] Because of the busy season, Thank you accepted by phone. Free dial 0120-15-8848 Property Map ・ Specification ・ We will send blueprint. The exact (including planned) that blueprint and are using please tell us when and housing equipment is hope the specification has been posted. Construction of a building ・ Earthquake-proof ・ durability ・ After-sales service, It is that you do not know and do not actually listen directly to the employees of Idasangyo. (Our attitude Ya, Please listen to the policy! ) It can be lasting relations after lived, From heart Why not try to buy from Kichijoji office, We look forward to. (事前に必ずお問い合わせください)【完成しております、当社では販売会をしておりませんが平日・土日問わずいつでも実際の建物 をご見学いただけます。 ~ お早めにご予約をお願いします。 ~ 】繁忙期のため、お電話にて受付をお願いします。フリーダイヤル 0120-15-8848物件の地図・仕様書・設計図お送りいたします。正確な設計図や使用している(予定を含む)住宅機器などが掲載している仕様書をご希望されるときはお申し付けください。建物の構造・耐震性・耐久性・アフターサービスは、実際に飯田産業の社員に直接聞かないとわからないことです。(当社の姿勢や、ポリシーをお聞きください!)住んだ後も末永いお付き合いができる、吉祥寺営業所から購入してみてはいかがでしょうかこころより、お待ちしております。 | Price 価格 | | 26,900,000 yen ~ 32,900,000 yen 2690万円 ~ 3290万円 | Floor plan 間取り | | 3LDK ~ 4LDK 3LDK ~ 4LDK | Units sold 販売戸数 | | 9 units 9戸 | Total units 総戸数 | | 15 units 15戸 | Land area 土地面積 | | 110.03 sq m ~ 118.05 sq m (measured) 110.03m2 ~ 118.05m2(実測) | Building area 建物面積 | | 81.15 sq m ~ 89.21 sq m (measured) 81.15m2 ~ 89.21m2(実測) | Driveway burden-road 私道負担・道路 | | Road width: 4m ~ 6m, Asphaltic pavement, Public road 道路幅:4m ~ 6m、アスファルト舗装、公道 | Completion date 完成時期(築年月) | | In early September 2013 2013年9月初旬 | Address 住所 | | Tokyo Higashimurayama Noguchi-cho 3-25-4 東京都東村山市野口町3-25-4他 | Traffic 交通 | | Seibu Shinjuku Line "Higashi-Murayama" walk 18 minutes Seibu Tamako Line "Seibuyuenchi" walk 11 minutes Seibu Seibu-en Line "Seibuen" walk 7 minutes 西武新宿線「東村山」歩18分 西武多摩湖線「西武遊園地」歩11分 西武西武園線「西武園」歩7分
| Related links 関連リンク | | [Related Sites of this company] 【この会社の関連サイト】 | Person in charge 担当者より | | Person in charge of real-estate and building Kurosaki Fumie Age: 20 Daigyokai Experience: 2 years from now, Residential a smart buy era! My name is Kurosaki of Idasangyo Kichijoji office. Idasangyo is the only direct sales specialty store. Our heart full Town is home to long-lasting and strong strong earthquake. 担当者宅建黒崎 史恵年齢:20代業界経験:2年これからは、住宅をかしこく買う時代です!飯田産業吉祥寺営業所の黒崎と申します。飯田産業唯一の直売専門店です。当社のハートフルタウンは地震に強い丈夫で長持ちする住宅です。 | Contact お問い合せ先 | | TEL: 0800-808-5143 [Toll free] mobile phone ・ Also available from PHS Caller ID is not notified Please contact the "saw SUUMO (Sumo)" If it does not lead, If the real estate company TEL:0800-808-5143【通話料無料】携帯電話・PHSからもご利用いただけます 発信者番号は通知されません 「SUUMO(スーモ)を見た」と問い合わせください つながらない方、不動産会社の方は
| Sale schedule 販売スケジュール | | ◆ Seller direct sales! Please visit possible per imposing complete! It is a direct sales Property! ◆ ○ Seibu Shinjuku Line " Higashimurayama "Station walk 18 minutes of good location " Seibuen "Station 7 minutes walk " Seibuyuenchi "Station walk 11 minutes ○ peripheral is the living environment better in a quiet residential area ○ immediately super near ・ There is also both convenience store It is very convenient. Why do not you live in all 15 buildings of the subdivision? ・ There is a Western-style room on the first floor 4LDK ○ bonus repayment Mu Even 100% loan It is available for purchase at the 80,000 yen level. Please document request compared to the now rent + parking Badai ・ Because of local your tour do not hesitate busy season, Thank you accepted by phone. Kichijoji office 0120-15-8848 until ◆売主直売! 堂々完成につきご見学可能! 直売物件です!◆○西武新宿線 『 東村山 』駅徒歩18分の好立地 『 西武園 』駅徒歩7分 『 西武遊園地 』駅徒歩11分○周辺は閑静な住宅街で住環境良好です○すぐ近くにスーパー・コンビニが両方もあって とっても便利です。全15棟の分譲地に住んでみませんか?○人気の2階リビングの3LDK・1階に洋室がある4LDK○ボーナス返済無 100%ローンでも 8万円台で購入可能です。 今の家賃+駐車場代と比べて下さい資料請求・現地ご見学はお気軽に繁忙期のため、お電話にて受付をお願いします。吉祥寺営業所 0120‐15‐8848迄 | Most price range 最多価格帯 | | 28 million yen (3 units) 2800万円台(3戸) | Building coverage, floor area ratio 建ぺい率・容積率 | | Kenpei rate: 40%, Volume ratio: 80% 建ペい率:40%、容積率:80% | Time residents 入居時期 | | Immediate available 即入居可 | Land of the right form 土地の権利形態 | | Ownership 所有権 | Structure and method of construction 構造・工法 | | Wooden three-story (panel construction) 木造3階建(パネル工法) | Construction 施工 | | Idasangyo Co., Ltd. (peace of mind and reliability of its design ・ Construction ・ Condominium sales 株式会社飯田産業(安心と信頼の自社設計・施工・分譲販売 | Use district 用途地域 | | One low-rise 1種低層 | Land category 地目 | | Residential land 宅地 | Other limitations その他制限事項 | | Residential land development construction regulation area, Height district 宅地造成工事規制区域、高度地区 | Overview and notices その他概要・特記事項 | | Contact: Kurosaki Fumie, Building confirmation number: HPA-13-03619-1 issue other 担当者:黒崎 史恵、建築確認番号:HPA-13-03619-1号他 | Company profile 会社概要 | | <Seller> Minister of Land, Infrastructure and Transport (8) No. 003306 (Ltd.) Idasangyo Kichijoji office Information Center Yubinbango180-0004 Musashino-shi, Tokyo Kichijojihon cho 1-13-9 Daiei Building 1F <売主>国土交通大臣(8)第003306号(株)飯田産業吉祥寺営業所インフォメーションセンター〒180-0004 東京都武蔵野市吉祥寺本町1-13-9大栄ビル1F |
Construction ・ Construction method ・ specification構造・工法・仕様  Nice house of strong Iida to earthquake
地震に強い飯田のいい家
Local photos, including front road前面道路含む現地写真  And sunlight, Family of future children blowing through the wind brings, Town local who said that it was good to live here (December 2013) Shooting
陽光と、ふきぬける風がもたらす家族の未来子どもたちが、ここに住んでよかったと言ってくれる街現地(2013年12月)撮影
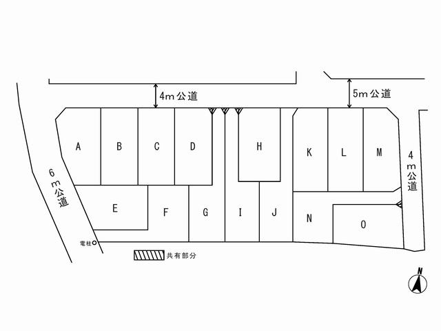
 The entire compartment Figure
全体区画図
Floor plan間取り図  (O Building), Price 31.5 million yen, 3LDK, Land area 110.04 sq m , Building area 85.06 sq m
(O号棟)、価格3150万円、3LDK、土地面積110.04m2、建物面積85.06m2
 (K Building), Price 30,900,000 yen, 4LDK, Land area 110.04 sq m , Building area 87.76 sq m
(K号棟)、価格3090万円、4LDK、土地面積110.04m2、建物面積87.76m2
 (E Building), Price 32,800,000 yen, 4LDK, Land area 110.04 sq m , Building area 85.28 sq m
(E号棟)、価格3280万円、4LDK、土地面積110.04m2、建物面積85.28m2
 (H Building), Price 32,500,000 yen, 4LDK, Land area 115.04 sq m , Building area 89.21 sq m
(H号棟)、価格3250万円、4LDK、土地面積115.04m2、建物面積89.21m2
 (G Building), Price 27,800,000 yen, 3LDK, Land area 118.05 sq m , Building area 85.7 sq m
(G号棟)、価格2780万円、3LDK、土地面積118.05m2、建物面積85.7m2
 (F Building), Price 28.8 million yen, 3LDK, Land area 113.04 sq m , Building area 84.46 sq m
(F号棟)、価格2880万円、3LDK、土地面積113.04m2、建物面積84.46m2
 (I Building), Price 26,900,000 yen, 3LDK, Land area 115.27 sq m , Building area 83.63 sq m
(I号棟)、価格2690万円、3LDK、土地面積115.27m2、建物面積83.63m2
Local photos, including front road前面道路含む現地写真  Local (12 May 2013) Shooting
現地(2013年12月)撮影
Local appearance photo現地外観写真  Local (12 May 2013) Shooting
現地(2013年12月)撮影
 Local (12 May 2013) Shooting
現地(2013年12月)撮影
 Local (12 May 2013) Shooting
現地(2013年12月)撮影
Livingリビング  Local (September 2013) Shooting
現地(2013年9月)撮影
 Indoor (September 2013) Shooting
室内(2013年9月)撮影
 Indoor (September 2013) Shooting
室内(2013年9月)撮影
Kitchenキッチン  Indoor (September 2013) Shooting
室内(2013年9月)撮影
Bathroom浴室  Indoor (September 2013) Shooting
室内(2013年9月)撮影
Wash basin, toilet洗面台・洗面所  Indoor (September 2013) Shooting
室内(2013年9月)撮影
Junior high school中学校  It higashimurayama stand Higashimurayama 174m until the fourth junior high school
東村山市立東村山第四中学校まで174m
Kindergarten ・ Nursery幼稚園・保育園  Higashimurayama 355m to stand third nursery
東村山市立第三保育園まで355m
Otherその他  Housing is the age to buy wisely! Idasangyo only direct sales specialty store Kichijoji office, we have the introduction of the Heart full Town. Heart full Town of the Company (the seller) is the house that long-lasting and strong strong earthquake.
住宅はかしこく買う時代です!飯田産業唯一の直売専門店吉祥寺営業所はハートフルタウンのご紹介をしております。当社(売主)のハートフルタウンは地震に強い丈夫で長持ちする住宅です。
 Thanks to Tokyo number one !!
おかげさまで東京都ナンバーワン!!
Construction ・ Construction method ・ specification構造・工法・仕様  Nice house of strong Iida to earthquake
地震に強い飯田のいい家
 Even without damage for the fourth consecutive times of seismic experiment!
連続4回の耐震実験でも損傷なし!
 Of the third-party organization in all properties the housing performance evaluation report, Acquisition!
全物件で第3者機関の住宅性能評価書を、取得!
Otherその他  Everyone is granted to buy a house
誰もが当たり前に家を買える
Location
|