2014January
29,950,000 yen, 3LDK, 61.14 sq m
New Homes » Kanto » Tokyo » Higashimurayama
 
| | Tokyo Higashimurayama 東京都東村山市 |
| Seibu Shinjuku Line "Deng Xiaoping" walk 7 minutes 西武新宿線「小平」歩7分 |
Price 価格 | | 29,950,000 yen 2995万円 | Floor plan 間取り | | 3LDK 3LDK | Units sold 販売戸数 | | 1 units 1戸 | Land area 土地面積 | | 76.52 sq m (registration) 76.52m2(登記) | Building area 建物面積 | | 61.14 sq m (registration) 61.14m2(登記) | Driveway burden-road 私道負担・道路 | | 10.92 sq m , South 4m width (contact the road width 5.4m) 10.92m2、南4m幅(接道幅5.4m) | Completion date 完成時期(築年月) | | December 2013 2013年12月 | Address 住所 | | Tokyo Higashimurayama Hagiyama cho 東京都東村山市萩山町1 | Traffic 交通 | | Seibu Shinjuku Line "Deng Xiaoping" walk 7 minutes Seibu Tamako Line "Hagiyama" walk 9 minutes 西武新宿線「小平」歩7分 西武多摩湖線「萩山」歩9分
| Person in charge 担当者より | | The person in charge Kawashima Mahikari 担当者川嶋 真光 | Contact お問い合せ先 | | Sumitomo Real Estate Sales Co., Ltd. Musashisakai business center TEL: 042-250-0711 Please inquire as "saw SUUMO (Sumo)" 住友不動産販売(株)武蔵境営業センターTEL:042-250-0711「SUUMO(スーモ)を見た」と問い合わせください | Building coverage, floor area ratio 建ぺい率・容積率 | | 40% ・ 80% 40%・80% | Time residents 入居時期 | | January 2014 2014年1月 | Land of the right form 土地の権利形態 | | Ownership 所有権 | Structure and method of construction 構造・工法 | | Wooden 2-story 木造2階建 | Use district 用途地域 | | One low-rise 1種低層 | Other limitations その他制限事項 | | / Terrain: flat /地勢:平坦 | Overview and notices その他概要・特記事項 | | Contact: Kawashima Mahikari, Parking: car space 担当者:川嶋 真光、駐車場:カースペース | Company profile 会社概要 | | <Mediation> Minister of Land, Infrastructure and Transport (11) Sumitomo Real Estate Sales Co., Ltd. Musashisakai business center Yubinbango180-0022 Musashino-shi, Tokyo Sakai 2-14-1 swing the sixth floor. No. 002077 <仲介>国土交通大臣(11)第002077号住友不動産販売(株)武蔵境営業センター〒180-0022 東京都武蔵野市境2-14-1 スイング6階 |
Local appearance photo現地外観写真  Building appearance.
建物外観。
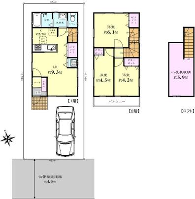
 Floor plan
間取り図
Location
|