|
|
Tokyo Higashimurayama
東京都東村山市
|
|
Seibu Tamako Line "Musashiyamato" walk 11 minutes
西武多摩湖線「武蔵大和」歩11分
|
|
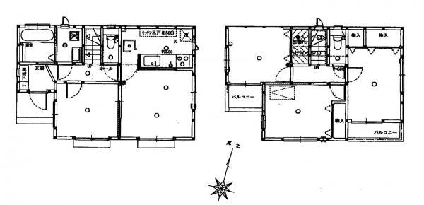
Parking space 2 cars. All rooms flooring 1F open space is Western-style room is bouncing conversations of your family if Awasere and living.
駐車スペース2台分。全室フローリング 1Fは洋間はリビングと併せればご家族の会話が弾む開放的な空間。
|
|
1 pyeong type of unit bus. Color TV monitor interphone. 15-step staircase is a gentle slope. Housing Performance Evaluation Report to be acquired properties.
1坪タイプのユニットバス。カラーTVモニターインターホン。階段は緩やかな傾斜の15段。 住宅性能評価書取得予定物件。
|
Features pickup 特徴ピックアップ | | Design house performance with evaluation / Corresponding to the flat-35S / Parking two Allowed / 2 along the line more accessible / System kitchen / All room storage / Washbasin with shower / Face-to-face kitchen / Toilet 2 places / Bathroom 1 tsubo or more / 2-story / South balcony / Underfloor Storage / Water filter / City gas / All rooms are two-sided lighting / Development subdivision in 設計住宅性能評価付 /フラット35Sに対応 /駐車2台可 /2沿線以上利用可 /システムキッチン /全居室収納 /シャワー付洗面台 /対面式キッチン /トイレ2ヶ所 /浴室1坪以上 /2階建 /南面バルコニー /床下収納 /浄水器 /都市ガス /全室2面採光 /開発分譲地内 |
Price 価格 | | 28.8 million yen 2880万円 |
Floor plan 間取り | | 4LDK 4LDK |
Units sold 販売戸数 | | 1 units 1戸 |
Land area 土地面積 | | 108.36 sq m (measured) 108.36m2(実測) |
Building area 建物面積 | | 82.8 sq m (measured) 82.8m2(実測) |
Driveway burden-road 私道負担・道路 | | Nothing, South 6m width 無、南6m幅 |
Completion date 完成時期(築年月) | | March 2014 2014年3月 |
Address 住所 | | Tokyo Higashimurayama Misumi-cho, 2 東京都東村山市美住町2 |
Traffic 交通 | | Seibu Tamako Line "Musashiyamato" walk 11 minutes Seibu Shinjuku Line "Higashi-Murayama" walk 20 minutes 西武多摩湖線「武蔵大和」歩11分 西武新宿線「東村山」歩20分
|
Person in charge 担当者より | | Person in charge of real-estate and building Masuda Yuichi Age: 50 Daigyokai Experience: 28 years customers will be happy to help the realization of hope. 担当者宅建増田 雄一年齢:50代業界経験:28年お客様の希望の実現をお手伝いさせて頂きます。 |
Contact お問い合せ先 | | TEL: 0800-603-0559 [Toll free] mobile phone ・ Also available from PHS Caller ID is not notified Please contact the "saw SUUMO (Sumo)" If it does not lead, If the real estate company TEL:0800-603-0559【通話料無料】携帯電話・PHSからもご利用いただけます 発信者番号は通知されません 「SUUMO(スーモ)を見た」と問い合わせください つながらない方、不動産会社の方は
|
Building coverage, floor area ratio 建ぺい率・容積率 | | 40% ・ 80% 40%・80% |
Time residents 入居時期 | | Consultation 相談 |
Land of the right form 土地の権利形態 | | Ownership 所有権 |
Structure and method of construction 構造・工法 | | Wooden 2-story 木造2階建 |
Use district 用途地域 | | One low-rise 1種低層 |
Overview and notices その他概要・特記事項 | | Contact: Masuda Yuichi, Facilities: Public Water Supply, This sewage, City gas, Building confirmation number: 07003-1, Parking: car space 担当者:増田 雄一、設備:公営水道、本下水、都市ガス、建築確認番号:07003-1、駐車場:カースペース |
Company profile 会社概要 | | <Mediation> Minister of Land, Infrastructure and Transport (3) No. 006,185 (one company) National Housing Industry Association (Corporation) metropolitan area real estate Fair Trade Council member Asahi Housing Corporation Tachikawa shop Yubinbango190-0012 Tokyo Tachikawa Akebonocho 2-9-1 Kikuya Kawaguchi building the fourth floor <仲介>国土交通大臣(3)第006185号(一社)全国住宅産業協会会員 (公社)首都圏不動産公正取引協議会加盟朝日住宅(株)立川店〒190-0012 東京都立川市曙町2-9-1 菊屋川口ビル4階 |