New Homes » Kanto » Tokyo » Higashimurayama


Tokyo Higashimurayama
Seibu Shinjuku Line "Deng Xiaoping" walk 3 minutes
Near a 3-minute walk from the train station, Cheaper price as compared to the surrounding property, It is clear a floor plan of the quire LDK15.6. Near from the station if possible, For those looking at the floor plan of 3LDK it is recommended.
○ bedrooms 2 room, Not feel narrowness 6 tatami or more such order. ○ installation has been housed in all rooms, Because of all rooms dihedral Shako, The room has become a bright design. ○ south side adjacent land passage, A lifetime per positive because it is a car space yard is reserved. ○ bicycle There are few cars put space. The surrounding area ○ There are a number of shopping center to support the day-to-day life. Good floor plan of ○ was considered housework flow line usability, We are living in the stairs you can see the back of your family at a glance. ○ immediately there is close to Tamako bike path because the living environment is also good. ◆ Free dial [0120-70-2055] Please feel free to contact us because it is.
Features pickup
Corresponding to the flat-35S / 2 along the line more accessible / Super close / It is close to the city / Bathroom Dryer / Yang per good / All room storage / Flat to the station / A quiet residential area / LDK15 tatami mats or more / Around traffic fewer / Shaping land / Washbasin with shower / Face-to-face kitchen / Toilet 2 places / Bathroom 1 tsubo or more / 2-story / 2 or more sides balcony / The window in the bathroom / Leafy residential area / Urban neighborhood / All living room flooring / Living stairs / City gas / A large gap between the neighboring house / Maintained sidewalk / Flat terrain / All rooms facing southeast
Price
37,800,000 yen
Floor plan
3LDK
Units sold
1 units
Land area
100.1 sq m (30.28 tsubo) (Registration)
Building area
76.95 sq m (23.27 tsubo) (Registration)
Driveway burden-road
Nothing, East 4m width (contact the road width 7.3m)
Completion date
September 2013
Address
Tokyo Higashimurayama Hagiyama cho
Traffic
Seibu Shinjuku Line "Deng Xiaoping" walk 3 minutes
Seibu Haijima Line "Hagiyama" walk 11 minutes
Seibu Tamako Line "Ome Kaido" walk 19 minutes
Person in charge
Rep Shimano Yuichi Age: 30 Daigyokai Experience: We promise that you accurately provide the services that are needed from the 8-year customer. Latest listing of course, finance ・ insurance ・ Architecture ・ design ・ Tax ・ Legal, etc., We respond in a "one-stop" to all the needs related to the dwelling.
Contact
TEL: 0800-603-1283 [Toll free] mobile phone ・ Also available from PHS
Caller ID is not notified
Please contact the "saw SUUMO (Sumo)"
If it does not lead, If the real estate company
Building coverage, floor area ratio
40% ・ 80%
Time residents
1 month after the contract
Land of the right form
Ownership
Structure and method of construction
Wooden 2-story
Use district
One low-rise
Overview and notices
Contact: Shimano Yuichi, Facilities: Public Water Supply, This sewage, City gas, Building confirmation number: H25SHC109686, Parking: No
Company profile
<Mediation> Governor of Tokyo (8) No. 044879 (Corporation) Tokyo Metropolitan Government Building Lots and Buildings Transaction Business Association (Corporation) metropolitan area real estate Fair Trade Council member Ye station Tanashi Store Co., Ltd. Create Seibu Yubinbango188-0004 Tokyo Nishitokyo Nishihara 1-1-2


Local appearance photo

Local appearance photo. 3 Building (2013 December 25 shooting).
3 Building (2013 December 25 shooting).

Compartment figure

Compartment figure. 37,800,000 yen, 3LDK, Land area 100.1 sq m , Since it is a building area of ​​76.95 sq m remaining two buildings, Please contact us as soon as possible.
37,800,000 yen, 3LDK, Land area 100.1 sq m , Since it is a building area of ​​76.95 sq m remaining two buildings, Please contact us as soon as possible.

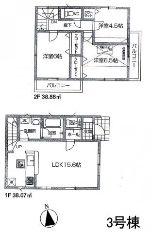
Floor plan

Floor plan. 37,800,000 yen, 3LDK, Land area 100.1 sq m , Building area 76.95 sq m 3 Building.
37,800,000 yen, 3LDK, Land area 100.1 sq m , Building area 76.95 sq m 3 Building.

Living

Living. 15.6 Pledge.
15.6 Pledge.

Bathroom
Bathroom

Kitchen

Kitchen. Since it is an open formula, Felt familiar family.
Since it is an open formula, Felt familiar family.

Non-living room

Non-living room. 6.5 Pledge.
6.5 Pledge.

Wash basin, toilet
Wash basin, toilet

Toilet

Toilet. 1 ・ 2F are both with bidet.
1 ・ 2F are both with bidet.

Local photos, including front road

Local photos, including front road. Width 4m.
Width 4m.

Other Environmental Photo

Other Environmental Photo. 240m to Kodaira Station (South Exit)
240m to Kodaira Station (South Exit)

Other

Other. Car yard.
Car yard.

Non-living room

Non-living room. 6 Pledge.
6 Pledge.

Supermarket

Supermarket. Until SEIYU 280m
Until SEIYU 280m

Other

Other. The south side of the sun per condition.
The south side of the sun per condition.

Other. South balcony.
South balcony.

Other. East balcony.
East balcony.



Location