2014March
39,500,000 yen, 3LDK, 86.11 sq m
New Homes » Kanto » Tokyo » Higashiyamato
 
| | Tokyo Higashiyamato 東京都東大和市 |
| Seibu Haijima Line "Higashiyamato" walk 16 minutes 西武拝島線「東大和市」歩16分 |
Price 価格 | | 39,500,000 yen 3950万円 | Floor plan 間取り | | 3LDK 3LDK | Units sold 販売戸数 | | 1 units 1戸 | Land area 土地面積 | | 110.33 sq m (measured) 110.33m2(実測) | Building area 建物面積 | | 86.11 sq m (measured) 86.11m2(実測) | Driveway burden-road 私道負担・道路 | | Nothing 無 | Completion date 完成時期(築年月) | | March 2014 2014年3月 | Address 住所 | | Tokyo Higashiyamato center 1 東京都東大和市中央1 | Traffic 交通 | | Seibu Haijima Line "Higashiyamato" walk 16 minutes 西武拝島線「東大和市」歩16分
| Contact お問い合せ先 | | TEL: 0800-805-6253 [Toll free] mobile phone ・ Also available from PHS Caller ID is not notified Please contact the "saw SUUMO (Sumo)" If it does not lead, If the real estate company TEL:0800-805-6253【通話料無料】携帯電話・PHSからもご利用いただけます 発信者番号は通知されません 「SUUMO(スーモ)を見た」と問い合わせください つながらない方、不動産会社の方は
| Building coverage, floor area ratio 建ぺい率・容積率 | | 40% ・ 80% 40%・80% | Time residents 入居時期 | | Consultation 相談 | Land of the right form 土地の権利形態 | | Ownership 所有権 | Structure and method of construction 構造・工法 | | Wooden 2-story 木造2階建 | Use district 用途地域 | | One low-rise 1種低層 | Overview and notices その他概要・特記事項 | | Facilities: Public Water Supply, This sewage, City gas, Building confirmation number: No. 13-1627 設備:公営水道、本下水、都市ガス、建築確認番号:13-1627号 | Company profile 会社概要 | | <Mediation> Minister of Land, Infrastructure and Transport (3) The 006,183 No. housing Information Center Musashimurayama store Seongnam Construction (Ltd.) Yubinbango208-0003 Tokyo Musashimurayama center 1-40-2 <仲介>国土交通大臣(3)第006183号住宅情報館 武蔵村山店城南建設(株)〒208-0003 東京都武蔵村山市中央1-40-2 |
Other localその他現地  Local Photos
現地写真
 Local Photos
現地写真
Local photos, including front road前面道路含む現地写真  Local Photos
現地写真
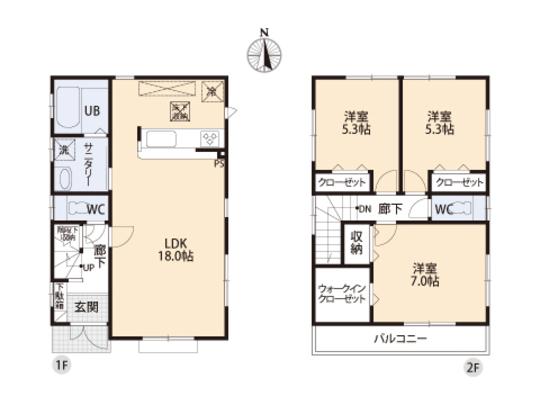
Floor plan間取り図  39,500,000 yen, 3LDK, Land area 110.33 sq m , Building area 86.11 sq m floor plan
3950万円、3LDK、土地面積110.33m2、建物面積86.11m2 間取り図
Local photos, including front road前面道路含む現地写真  Frontal road
前面道路
Other localその他現地  Local Photos
現地写真
Location
|