New Homes » Kanto » Tokyo » Kita-ku
 
| | Kita-ku, Tokyo 東京都北区 |
| JR Utsunomiya Line "Ogu" walk 5 minutes JR宇都宮線「尾久」歩5分 |
| Station near, Convenient life, Flat 35 Available. 駅近、生活便利、フラット35利用可。 |
| Station near, Convenient life, Flat 35 Available. 駅近、生活便利、フラット35利用可。 |
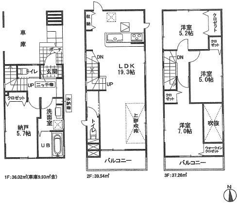
Price 価格 | | 42,800,000 yen 4280万円 | Floor plan 間取り | | 4LDK 4LDK | Units sold 販売戸数 | | 1 units 1戸 | Total units 総戸数 | | 1 units 1戸 | Land area 土地面積 | | 74.09 sq m (registration) 74.09m2(登記) | Building area 建物面積 | | 112.82 sq m (measured) 112.82m2(実測) | Driveway burden-road 私道負担・道路 | | Nothing, North 6m width 無、北6m幅 | Completion date 完成時期(築年月) | | April 2013 2013年4月 | Address 住所 | | Kita-ku, Tokyo Showacho 2 東京都北区昭和町2 | Traffic 交通 | | JR Utsunomiya Line "Ogu" walk 5 minutes JR Takasaki Line "Ogu" walk 5 minutes JR Keihin Tohoku Line "Kami Nakazato" walk 15 minutes JR宇都宮線「尾久」歩5分 JR高崎線「尾久」歩5分 JR京浜東北線「上中里」歩15分 | Person in charge 担当者より | | Rep Tashiro Masaya do my best and work hard! Thank you! 担当者田代 雅也一生懸命がんばります!よろしくお願い致します! | Contact お問い合せ先 | | TEL: 0800-603-0564 [Toll free] mobile phone ・ Also available from PHS Caller ID is not notified Please contact the "saw SUUMO (Sumo)" If it does not lead, If the real estate company TEL:0800-603-0564【通話料無料】携帯電話・PHSからもご利用いただけます 発信者番号は通知されません 「SUUMO(スーモ)を見た」と問い合わせください つながらない方、不動産会社の方は
| Building coverage, floor area ratio 建ぺい率・容積率 | | 60% ・ 300% 60%・300% | Time residents 入居時期 | | Immediate available 即入居可 | Land of the right form 土地の権利形態 | | Ownership 所有権 | Structure and method of construction 構造・工法 | | Wooden three-story 木造3階建 | Use district 用途地域 | | Semi-industrial 準工業 | Overview and notices その他概要・特記事項 | | Contact: Tashiro Masaya, Facilities: Public Water Supply, This sewage, City gas, Building confirmation number: 12UDI2S Ken 01994, Parking: car space 担当者:田代 雅也、設備:公営水道、本下水、都市ガス、建築確認番号:12UDI2S建01994、駐車場:カースペース | Company profile 会社概要 | | <Mediation> Minister of Land, Infrastructure and Transport (3) No. 006,185 (one company) National Housing Industry Association (Corporation) metropolitan area real estate Fair Trade Council member Asahi Housing Corporation Ikebukuro Yubinbango170-0013 Toshima-ku, Tokyo Ikebukuro 1-21-11 Oak Ikebukuro building 7th floor <仲介>国土交通大臣(3)第006185号(一社)全国住宅産業協会会員 (公社)首都圏不動産公正取引協議会加盟朝日住宅(株)池袋店〒170-0013 東京都豊島区東池袋1-21-11 オーク池袋ビル7階 |
 Living
リビング
 Local appearance photo
現地外観写真
Floor plan間取り図  42,800,000 yen, 4LDK, Land area 74.09 sq m , Building area 112.82 sq m
4280万円、4LDK、土地面積74.09m2、建物面積112.82m2
 Living
リビング
 Bathroom
浴室
 Kitchen
キッチン
 Non-living room
リビング以外の居室
 Wash basin, toilet
洗面台・洗面所
 Toilet
トイレ
 Local photos, including front road
前面道路含む現地写真
 Balcony
バルコニー
Location
|