New Homes » Kanto » Tokyo » Kita-ku
 
| | Kita-ku, Tokyo 東京都北区 |
| JR Yamanote Line "Tabata" walk 6 minutes JR山手線「田端」歩6分 |
| ◆ ◆ ◆ Kita-ku Tabata 1-chome LDK18 Pledge of newly built single-family houses ◆ ◆ ◆ Spacious LDK18 Pledge and the roof balcony in Kita-ku Tabata is with new construction condominiums is now announced. ◆◆◆北区田端1丁目 LDK18帖の新築戸建住宅◆◆◆北区田端に広々LDK18帖とルーフバルコニーがついた新築分譲住宅が発表になりました。 |
| Building 3LDK + P1 cars. Becoming made with life easy volume of solid storage and large roof balcony. Shopping street where there is the most vibrant in the Tabata in the surrounding area. Is the Tokyo Metropolitan Komagome Hospital and Sudo location park also blessed with nearby convenience and living environment in the vicinity of "Tabata Ginza shopping district.". Our company is the property to recommend with confidence, Please contact us. 建物は3LDK+P1台。広いルーフバルコニーと充実収納の生活しやすいボリュームのある造りとなっております。周辺には田端で最も活気がある商店街。「田端銀座商店街」の近くで都立駒込病院や須藤公園も近く利便性と住環境に恵まれた場所です。弊社が自信を持ってお勧めする物件です、ぜひお問い合わせください。 |
Features pickup 特徴ピックアップ | | 2 along the line more accessible / LDK18 tatami mats or more / It is close to the city / System kitchen / Bathroom Dryer / All room storage / A quiet residential area / Shaping land / Face-to-face kitchen / Toilet 2 places / The window in the bathroom / All living room flooring / Dish washing dryer / Walk-in closet / Three-story or more / roof balcony / Flat terrain / Floor heating 2沿線以上利用可 /LDK18畳以上 /市街地が近い /システムキッチン /浴室乾燥機 /全居室収納 /閑静な住宅地 /整形地 /対面式キッチン /トイレ2ヶ所 /浴室に窓 /全居室フローリング /食器洗乾燥機 /ウォークインクロゼット /3階建以上 /ルーフバルコニー /平坦地 /床暖房 | Price 価格 | | 56,800,000 yen ~ 58,800,000 yen 5680万円 ~ 5880万円 | Floor plan 間取り | | 3LDK 3LDK | Units sold 販売戸数 | | 2 units 2戸 | Total units 総戸数 | | 2 units 2戸 | Land area 土地面積 | | 54.32 sq m (measured) 54.32m2(実測) | Building area 建物面積 | | 106.81 sq m ~ 106.93 sq m (measured) 106.81m2 ~ 106.93m2(実測) | Driveway burden-road 私道負担・道路 | | Asphaltic pavement アスファルト舗装 | Completion date 完成時期(築年月) | | Mid-April, 2014 2014年4月中旬予定 | Address 住所 | | Kita-ku, Tokyo Tabata 1 東京都北区田端1 | Traffic 交通 | | JR Yamanote Line "Tabata" walk 6 minutes JR Yamanote Line "Nishinippori" walk 9 minutes Nippori ・ Toneri liner "Nishinippori" walk 10 minutes JR山手線「田端」歩6分 JR山手線「西日暮里」歩9分 日暮里・舎人ライナー「西日暮里」歩10分
| Person in charge 担当者より | | Person in charge of real-estate and building FP Oda Tomorrow Age: 20 Daigyokai experience: the purchase of the highest and is being said real estate for the second year in a lifetime. We will continue to devote every day to get used to the human resources that can smile with satisfaction the purchase! 担当者宅建FP小田 明日年齢:20代業界経験:2年一生で一番高いと言われている不動産の購入。 その購入を満足して笑顔にできるような人財と なれるよう日々精進していきます! | Contact お問い合せ先 | | TEL: 0800-603-7095 [Toll free] mobile phone ・ Also available from PHS Caller ID is not notified Please contact the "saw SUUMO (Sumo)" If it does not lead, If the real estate company TEL:0800-603-7095【通話料無料】携帯電話・PHSからもご利用いただけます 発信者番号は通知されません 「SUUMO(スーモ)を見た」と問い合わせください つながらない方、不動産会社の方は
| Building coverage, floor area ratio 建ぺい率・容積率 | | Building coverage: 80% / 60%, Volume ratio: 300% / 300% 建ぺい率:80%/60%、容積率:300%/300% | Time residents 入居時期 | | April 2014 late schedule 2014年4月下旬予定 | Land of the right form 土地の権利形態 | | Ownership 所有権 | Construction 施工 | | Yoshioka environment Development Co., Ltd. 吉岡環境開発株式会社 | Use district 用途地域 | | Residential, One dwelling 近隣商業、1種住居 | Land category 地目 | | Residential land 宅地 | Other limitations その他制限事項 | | Regulations have by the Landscape Act, Quasi-fire zones 景観法による規制有、準防火地域 | Overview and notices その他概要・特記事項 | | Contact: Oda tomorrow, Building confirmation number: No. 13UDI2T Ken 01661, The 13UDI2T Ken No. 01662 担当者:小田 明日、建築確認番号:第13UDI2T建01661号、第13UDI2T建01662号 | Company profile 会社概要 | | <Mediation> Governor of Tokyo (2) No. 086581 (Ltd.) ad cast Komagome branch Yubinbango113-0021, Bunkyo-ku, Tokyo Honkomagome 6-15-8 Erupisubiru fifth floor <仲介>東京都知事(2)第086581号(株)アドキャスト駒込支店〒113-0021 東京都文京区本駒込6-15-8 エルピスビル5階 |
Rendering (appearance)完成予想図(外観)  Appearance image Perth
外観イメージパース
Local appearance photo現地外観写真  Local land photo
現地土地写真
Local photos, including front road前面道路含む現地写真  Local land photos, including front road
前面道路含む現地土地写真
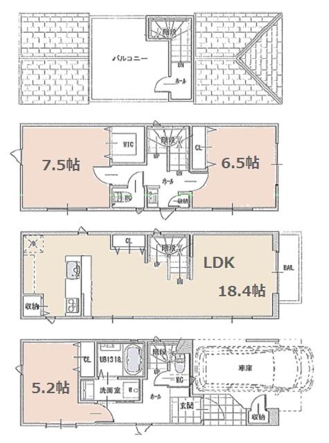
Floor plan間取り図  (B Building), Price 56,800,000 yen, 3LDK, Land area 54.32 sq m , Building area 106.93 sq m
(B号棟)、価格5680万円、3LDK、土地面積54.32m2、建物面積106.93m2
Same specifications photos (living)同仕様写真(リビング)  Same specifications photos (LDK)
同仕様写真(LDK)
Local photos, including front road前面道路含む現地写真  Local land photos, including front road
前面道路含む現地土地写真
Station駅  Tabata Station 480m nearest station to Tabata Station
田端駅まで480m 最寄駅の田端駅
Same specifications photos (Other introspection)同仕様写真(その他内観)  Same specifications photo (bathroom)
同仕様写真(浴室)
Other localその他現地  Honchi in the land photo
本地内土地写真
 Honchi in the land photo
本地内土地写真
 Honchi in the land photo
本地内土地写真
Location
|