New Homes » Kanto » Tokyo » Kita-ku
 
| | Kita-ku, Tokyo 東京都北区 |
| JR Yamanote Line "Tabata" walk 7 minutes JR山手線「田端」歩7分 |
| [Information meetings being accepted] According to your demand, Your local property also will be announced! First, Please feel free to contact us → 0800-603-1731 【案内会受付中】ご要望に合わせて、お近くの物件もご案内させて頂きます!まずは、お気軽にお問い合わせ下さい→0800-603-1731 |
| ◆ Spacious about 20 quires of LDK! ◆ Sunny south-facing public road surface ◆ Equipment of friendly enhancement to wife. ====================== Local guidance meeting in the reception! 0800-603-173110:00 ~ 19:00 started (Wednesday off), Kita-ku,, Please leave if to our things Johoku. ====================== ↓↓ property details, Please see the photo below ↓↓ ◆広々とした約20帖のLDK!◆日当たりのいい南向き公道面◆奥様に優しい充実の設備。======================現地案内会受付中!0800-603-173110:00 ~ 19:00(水曜休み)北区をはじめ、城北のことなら弊社へお任せ下さい。======================↓↓物件詳細は、下の写真をご覧ください↓↓ |
Features pickup 特徴ピックアップ | | Measures to conserve energy / Corresponding to the flat-35S / Vibration Control ・ Seismic isolation ・ Earthquake resistant / 2 along the line more accessible / LDK20 tatami mats or more / Energy-saving water heaters / System kitchen / Bathroom Dryer / Yang per good / All room storage / Or more before road 6m / Face-to-face kitchen / 3 face lighting / Toilet 2 places / 2 or more sides balcony / South balcony / Warm water washing toilet seat / The window in the bathroom / Southwestward / Dish washing dryer / Walk-in closet / Water filter / Three-story or more / Living stairs / City gas / roof balcony / Floor heating 省エネルギー対策 /フラット35Sに対応 /制震・免震・耐震 /2沿線以上利用可 /LDK20畳以上 /省エネ給湯器 /システムキッチン /浴室乾燥機 /陽当り良好 /全居室収納 /前道6m以上 /対面式キッチン /3面採光 /トイレ2ヶ所 /2面以上バルコニー /南面バルコニー /温水洗浄便座 /浴室に窓 /南西向き /食器洗乾燥機 /ウォークインクロゼット /浄水器 /3階建以上 /リビング階段 /都市ガス /ルーフバルコニー /床暖房 | Price 価格 | | 59,800,000 yen ~ 63,800,000 yen 5980万円 ~ 6380万円 | Floor plan 間取り | | 4LDK 4LDK | Units sold 販売戸数 | | 2 units 2戸 | Total units 総戸数 | | 2 units 2戸 | Land area 土地面積 | | 75 sq m ~ 109.6 sq m 75m2 ~ 109.6m2 | Building area 建物面積 | | 114.47 sq m ~ 128.14 sq m 114.47m2 ~ 128.14m2 | Driveway burden-road 私道負担・道路 | | Road width: 11m 道路幅:11m | Completion date 完成時期(築年月) | | 2014 end of April schedule 2014年4月末予定 | Address 住所 | | Kita-ku, Tokyo Tabata 6 東京都北区田端6 | Traffic 交通 | | JR Yamanote Line "Tabata" walk 7 minutes JR Yamanote Line "Komagome" walk 9 minutes JR Keihin Tohoku Line "Kami Nakazato" walk 16 minutes JR山手線「田端」歩7分 JR山手線「駒込」歩9分 JR京浜東北線「上中里」歩16分 | Related links 関連リンク | | [Related Sites of this company] 【この会社の関連サイト】 | Person in charge 担当者より | | Person in charge of real-estate and building FP Sugo Kiyofumi Age: 40s 担当者宅建FP菅生 清文年齢:40代 | Contact お問い合せ先 | | TEL: 0800-603-1731 [Toll free] mobile phone ・ Also available from PHS Caller ID is not notified Please contact the "saw SUUMO (Sumo)" If it does not lead, If the real estate company TEL:0800-603-1731【通話料無料】携帯電話・PHSからもご利用いただけます 発信者番号は通知されません 「SUUMO(スーモ)を見た」と問い合わせください つながらない方、不動産会社の方は
| Building coverage, floor area ratio 建ぺい率・容積率 | | Kenpei rate: 80%, Volume ratio: 300% 建ペい率:80%、容積率:300% | Time residents 入居時期 | | 2014 end of April schedule 2014年4月末予定 | Land of the right form 土地の権利形態 | | Ownership 所有権 | Structure and method of construction 構造・工法 | | Wooden three-story 木造3階建 | Use district 用途地域 | | Residential 近隣商業 | Land category 地目 | | Residential land 宅地 | Other limitations その他制限事項 | | Height district, Quasi-fire zones, Irregular land 高度地区、準防火地域、不整形地 | Overview and notices その他概要・特記事項 | | Contact: Sugo Kiyofumi, Building confirmation number: No. 13UDI2T Ken 01636 other 担当者:菅生 清文、建築確認番号:第13UDI2T建01636号他 | Company profile 会社概要 | | <Mediation> Governor of Tokyo (6) No. 062333 (Corporation) Tokyo Metropolitan Government Building Lots and Buildings Transaction Business Association (Corporation) metropolitan area real estate Fair Trade Council member (Ltd.) House Say Lars prince shop Yubinbango114-0002 Prince Kita-ku, Tokyo 1-17-1 <仲介>東京都知事(6)第062333号(公社)東京都宅地建物取引業協会会員 (公社)首都圏不動産公正取引協議会加盟(株)ハウスセイラーズ王子店〒114-0002 東京都北区王子1-17-1 |
Rendering (appearance)完成予想図(外観)  Sunny south-facing public road surface
日当たりのいい南向き公道面
Same specifications photo (kitchen)同仕様写真(キッチン)  There is no water also operate waste, Breeze design of the kitchen.
水も動作もムダがない、スイスイ設計のキッチン。
Same specifications photo (bathroom)同仕様写真(浴室) ![Same specifications photo (bathroom). Much warmth in the thermal insulation structure [Thermos bathtub]](/images/tokyo/kita/6999440007.jpg) Much warmth in the thermal insulation structure [Thermos bathtub]
断熱構造でずっとあたたか 【魔法びん浴槽】
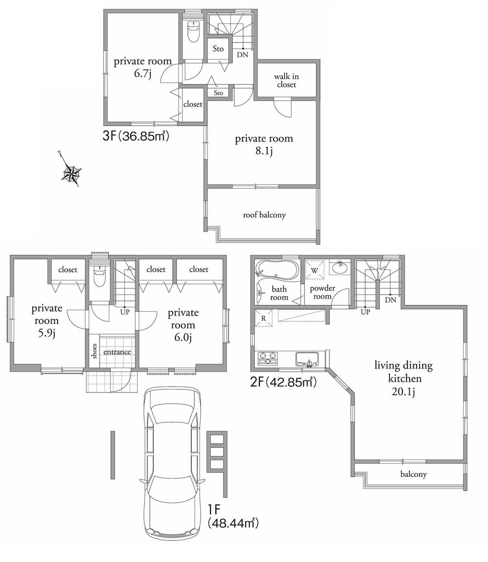
Floor plan間取り図  (A Building), Price 63,800,000 yen, 4LDK, Land area 75 sq m , Building area 128.14 sq m
(A号棟)、価格6380万円、4LDK、土地面積75m2、建物面積128.14m2
Otherその他  Ultra-damping housing
超制震住宅
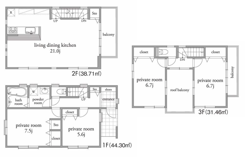
Floor plan間取り図  (B Building), Price 59,800,000 yen, 4LDK, Land area 109.6 sq m , Building area 114.47 sq m
(B号棟)、価格5980万円、4LDK、土地面積109.6m2、建物面積114.47m2
Otherその他  A Building compartment view
A号棟区画図
 B Building compartment view
B号棟区画図
 Seismic tape
制震テープ
 Spacious about 20 quires of LDK!
広々とした約20帖のLDK!
Location
|