New Homes » Kanto » Tokyo » Kita-ku
 
| | Kita-ku, Tokyo 東京都北区 |
| JR Saikyo Line "Jujo" walk 15 minutes JR埼京線「十条」歩15分 |
| ■ ■ ■ Newly built single-family houses of Kita-ku Kamijujo 5-chome ■ ■ ■ Shaping land, 3LDK ・ Living 17 quires more ・ Parking space ・ It has become spacious and the floor plan with a roof balcony, There is also attic storage ■■■北区上十条5丁目の新築戸建住宅■■■整形地、3LDK・リビング17帖以上・駐車スペース・ルーフバルコニー付広々とした間取りとなっており、屋根裏収納もございます |
| ■ It has become a space where there is a kitchen and atrium There is also a feeling of opening of the face-to-face. ■ Educational environment such as the 290m and the elementary school and nursery school to the third elementary school prince of the near-field also has been enhanced. ■ Since also been firmly 4m ensure front road, Also easily you can access to the parking. If you have any questions about the property, Guidance to Honchi also please feel free to contact us, including. ■対面式のキッチンや吹き抜けもあり開放感がある空間となっております。■近場の王子第三小学校まで290mと小学校や保育園など教育環境も充実しております。■前面道路もしっかりと4m確保されていますので、駐車へのアクセスも楽に行えます。物件についてご不明な点などございましたら、本地へのご案内も含めてご気軽にお問い合わせくださいませ。 |
Features pickup 特徴ピックアップ | | 2 along the line more accessible / Bathroom Dryer / A quiet residential area / LDK15 tatami mats or more / Shaping land / Face-to-face kitchen / Toilet 2 places / Bathroom 1 tsubo or more / Atrium / TV monitor interphone / Dish washing dryer / Three-story or more / City gas 2沿線以上利用可 /浴室乾燥機 /閑静な住宅地 /LDK15畳以上 /整形地 /対面式キッチン /トイレ2ヶ所 /浴室1坪以上 /吹抜け /TVモニタ付インターホン /食器洗乾燥機 /3階建以上 /都市ガス | Price 価格 | | 41,800,000 yen 4180万円 | Floor plan 間取り | | 3LDK 3LDK | Units sold 販売戸数 | | 2 units 2戸 | Total units 総戸数 | | 2 units 2戸 | Land area 土地面積 | | 52.79 sq m ~ 53.35 sq m (measured) 52.79m2 ~ 53.35m2(実測) | Building area 建物面積 | | 84.64 sq m ~ 85.45 sq m (measured) 84.64m2 ~ 85.45m2(実測) | Completion date 完成時期(築年月) | | June 2014 in late schedule 2014年6月下旬予定 | Address 住所 | | Kita-ku, Tokyo Kamijujo 5-46-4 東京都北区上十条5-46-4 | Traffic 交通 | | JR Saikyo Line "Jujo" walk 15 minutes JR Keihin Tohoku Line "Akabane" walk 19 minutes JR Keihin Tohoku Line "Higashijujo" walk 19 minutes JR埼京線「十条」歩15分 JR京浜東北線「赤羽」歩19分JR京浜東北線「東十条」歩19分 | Related links 関連リンク | | [Related Sites of this company] 【この会社の関連サイト】 | Person in charge 担当者より | | Rep FP Fujisaki Kenta Age: 20 Daigyokai Experience: 1 year to enter this industry, It has passed one year in the early ones. It was variously learn about real estate. Be able to properly advise customers, We will also continue to study the future. 担当者FP藤崎 健太年齢:20代業界経験:1年この業界に入り、早いもので1年経ちました。不動産についていろいろ勉強しました。お客様にきちんとアドバイスできるよう、これからも勉強を続けていきます。 | Contact お問い合せ先 | | TEL: 0800-603-7095 [Toll free] mobile phone ・ Also available from PHS Caller ID is not notified Please contact the "saw SUUMO (Sumo)" If it does not lead, If the real estate company TEL:0800-603-7095【通話料無料】携帯電話・PHSからもご利用いただけます 発信者番号は通知されません 「SUUMO(スーモ)を見た」と問い合わせください つながらない方、不動産会社の方は
| Building coverage, floor area ratio 建ぺい率・容積率 | | Building coverage: 60%, Volume ratio: 200% 建ぺい率:60%、容積率:200% | Time residents 入居時期 | | 2014 end of June schedule 2014年6月末予定 | Land of the right form 土地の権利形態 | | Ownership 所有権 | Use district 用途地域 | | One middle and high 1種中高 | Overview and notices その他概要・特記事項 | | Contact: Fujisaki Kenta, Building confirmation number: first BNV 確済 13-1689, The BNV 確済 13-1690 担当者:藤崎 健太、建築確認番号:第BNV確済13-1689、第BNV確済13-1690 | Company profile 会社概要 | | <Mediation> Governor of Tokyo (2) No. 086581 (Ltd.) ad cast Komagome branch Yubinbango113-0021, Bunkyo-ku, Tokyo Honkomagome 6-15-8 Erupisubiru fifth floor <仲介>東京都知事(2)第086581号(株)アドキャスト駒込支店〒113-0021 東京都文京区本駒込6-15-8 エルピスビル5階 |
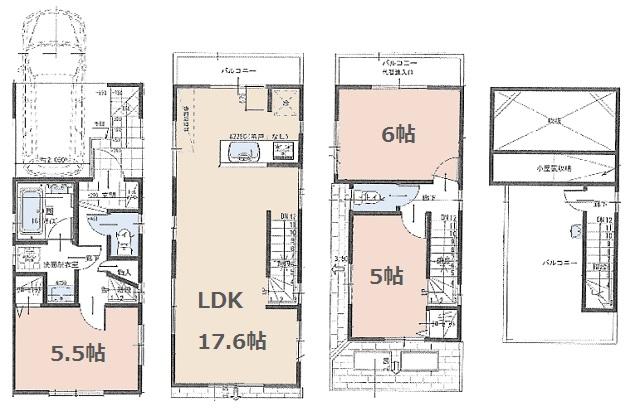
Floor plan間取り図  (A section), Price 41,800,000 yen, 3LDK, Land area 52.79 sq m , Building area 84.64 sq m
(A区画)、価格4180万円、3LDK、土地面積52.79m2、建物面積84.64m2
 (B Building), Price 41,800,000 yen, 3DK, Land area 53.35 sq m , Building area 84.64 sq m
(B号棟)、価格4180万円、3DK、土地面積53.35m2、建物面積84.64m2
Location
|