New Homes » Kanto » Tokyo » Kiyose
 
| | Tokyo Kiyose 東京都清瀬市 |
| Seibu Ikebukuro Line "Kiyose" walk 15 minutes 西武池袋線「清瀬」歩15分 |
| ● "Kiyose" Since we have this price ● building completed in a 15-minute walk to the station, Flooring at any time can be your preview book ● 1 floor LDK, Solid wood used for spandrel ●「清瀬」駅まで徒歩15分でこの価格●建物完成しておりますので、いつでもご内覧予約可能です●1階LDKの床材、腰壁には無垢材使用 |
| Year Available, Immediate Available, System kitchen, Or more before road 6m, Face-to-face kitchen, Toilet 2 places, Bathroom 1 tsubo or more, 2-story, The window in the bathroom, All living room flooring, Water filter, City gas 年内入居可、即入居可、システムキッチン、前道6m以上、対面式キッチン、トイレ2ヶ所、浴室1坪以上、2階建、浴室に窓、全居室フローリング、浄水器、都市ガス |
Features pickup 特徴ピックアップ | | Year Available / Immediate Available / System kitchen / Or more before road 6m / Face-to-face kitchen / Toilet 2 places / Bathroom 1 tsubo or more / 2-story / The window in the bathroom / All living room flooring / Water filter / City gas 年内入居可 /即入居可 /システムキッチン /前道6m以上 /対面式キッチン /トイレ2ヶ所 /浴室1坪以上 /2階建 /浴室に窓 /全居室フローリング /浄水器 /都市ガス | Price 価格 | | 25,800,000 yen 2580万円 | Floor plan 間取り | | 3LDK 3LDK | Units sold 販売戸数 | | 1 units 1戸 | Total units 総戸数 | | 1 units 1戸 | Land area 土地面積 | | 68.36 sq m (registration) 68.36m2(登記) | Building area 建物面積 | | 77.76 sq m (registration) 77.76m2(登記) | Driveway burden-road 私道負担・道路 | | Nothing, East 6m width, West 4m width 無、東6m幅、西4m幅 | Completion date 完成時期(築年月) | | May 2013 2013年5月 | Address 住所 | | Tokyo Kiyose Kamikiyoto 2 東京都清瀬市上清戸2 | Traffic 交通 | | Seibu Ikebukuro Line "Kiyose" walk 15 minutes JR Musashino Line "Higashitokorozawa" walk 30 minutes Seibu Ikebukuro Line "Akitsu" walk 32 minutes 西武池袋線「清瀬」歩15分 JR武蔵野線「東所沢」歩30分西武池袋線「秋津」歩32分
| Related links 関連リンク | | [Related Sites of this company] 【この会社の関連サイト】 | Person in charge 担当者より | | Person in charge of real-estate and building Murakami Tatsuya Age: 30 Daigyokai experience: also 10 younger child, Now to another three-year-old. Looking at the figure you are running around at home every day, I felt it was really good to buy a house. The company, So also it has established a children's corner, Please leave in peace! 担当者宅建村上 達也年齢:30代業界経験:10年下の子も、もう3歳になりました。毎日自宅で駆け回っている姿を見ていると、住宅を購入して本当に良かったなと感じます。弊社には、キッズコーナーも設けておりますので、安心してお任せ下さい! | Contact お問い合せ先 | | TEL: 0800-805-6313 [Toll free] mobile phone ・ Also available from PHS Caller ID is not notified Please contact the "saw SUUMO (Sumo)" If it does not lead, If the real estate company TEL:0800-805-6313【通話料無料】携帯電話・PHSからもご利用いただけます 発信者番号は通知されません 「SUUMO(スーモ)を見た」と問い合わせください つながらない方、不動産会社の方は
| Building coverage, floor area ratio 建ぺい率・容積率 | | 60% ・ 200% 60%・200% | Time residents 入居時期 | | Immediate available 即入居可 | Land of the right form 土地の権利形態 | | Ownership 所有権 | Structure and method of construction 構造・工法 | | Wooden 2-story (framing method) 木造2階建(軸組工法) | Use district 用途地域 | | One middle and high 1種中高 | Other limitations その他制限事項 | | Quasi-fire zones 準防火地域 | Overview and notices その他概要・特記事項 | | Contact: Murakami Tatsuya, Facilities: Public Water Supply, This sewage, City gas, Building confirmation number: No. No.1213060194, Parking: car space 担当者:村上 達也、設備:公営水道、本下水、都市ガス、建築確認番号:No.1213060194号、駐車場:カースペース | Company profile 会社概要 | | <Mediation> Governor of Tokyo (1) No. 095616 (Ltd.) house Navi dot-com Yubinbango204-0021 Tokyo Kiyose Motomachi 1-8-34 <仲介>東京都知事(1)第095616号(株)家ナビドットコム〒204-0021 東京都清瀬市元町1-8-34 |
Local appearance photo現地外観写真  Local (11 May 2013) Shooting
現地(2013年11月)撮影
Local photos, including front road前面道路含む現地写真  Local (11 May 2013) Shooting
現地(2013年11月)撮影
Livingリビング  Indoor (11 May 2013) Shooting
室内(2013年11月)撮影
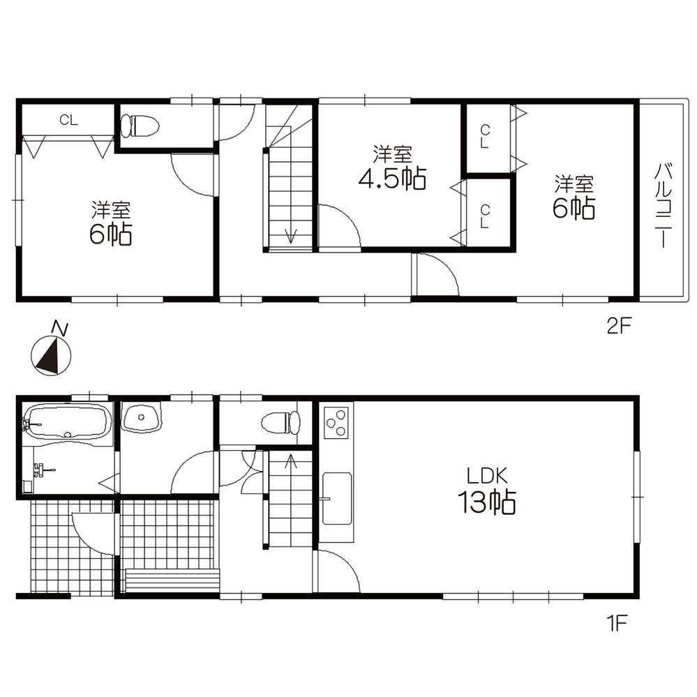
Floor plan間取り図  25,800,000 yen, 3LDK, Land area 68.36 sq m , Building area 77.76 sq m
2580万円、3LDK、土地面積68.36m2、建物面積77.76m2
Local appearance photo現地外観写真  Local (11 May 2013) Shooting
現地(2013年11月)撮影
Bathroom浴室  Indoor (11 May 2013) Shooting
室内(2013年11月)撮影
Kitchenキッチン  Indoor (11 May 2013) Shooting
室内(2013年11月)撮影
Entrance玄関  Local (11 May 2013) Shooting
現地(2013年11月)撮影
Wash basin, toilet洗面台・洗面所  Indoor (11 May 2013) Shooting
室内(2013年11月)撮影
Receipt収納  Indoor (11 May 2013) Shooting
室内(2013年11月)撮影
Toiletトイレ  Indoor (11 May 2013) Shooting
室内(2013年11月)撮影
Local photos, including front road前面道路含む現地写真  Local (11 May 2013) Shooting
現地(2013年11月)撮影
Balconyバルコニー  Local (11 May 2013) Shooting
現地(2013年11月)撮影
Primary school小学校  Kiyose Municipal Kiyose to elementary school 967m
清瀬市立清瀬小学校まで967m
Other introspectionその他内観  Indoor (11 May 2013) Shooting
室内(2013年11月)撮影
 Other
その他
Kitchenキッチン  Indoor (11 May 2013) Shooting
室内(2013年11月)撮影
Entrance玄関  Local (11 May 2013) Shooting
現地(2013年11月)撮影
Junior high school中学校  Kiyose Municipal Kiyose until junior high school 762m
清瀬市立清瀬中学校まで762m
Other introspectionその他内観  Indoor (11 May 2013) Shooting
室内(2013年11月)撮影
 Other
その他
Location
|