New Homes » Kanto » Tokyo » Kiyose
 
| | Tokyo Kiyose 東京都清瀬市 |
| Seibu Ikebukuro Line "Akitsu" walk 16 minutes 西武池袋線「秋津」歩16分 |
| Attached to the southeast corner lot sunny About 40 square meters easy-to-use floor plan that Japanese-style room in the newly built condominiums living room are adjacent with a solar panel is located on the site of the margin of. Face-to-face kitchen with popular counter 東南角地に付日当たり良好 約40坪の余裕の敷地に建つ太陽光パネル付の新築分譲住宅リビングに和室が隣接した使いやすい間取りです。 人気のカウンター付対面キッチン |
| ■ Home energy associated with the solar power system ・ Is in use of the management system will need the Internet environment (wired line). Also the equipment and the introduction needed for the Internet environment, Expenses related to the use will be buyer-like burden. ■ Parking two possible Please confirm in the field for the type of vehicle. ■太陽光発電システムに付随するホームエネルギー・マネジメントシステムの利用にあたってはインターネット環境(有線回線)が必要となります。またインターネット環境に必要となる機器及び導入、利用に係る費用は買主様の負担となります。■駐車2台可能 車種については現地でご確認お願いします。 |
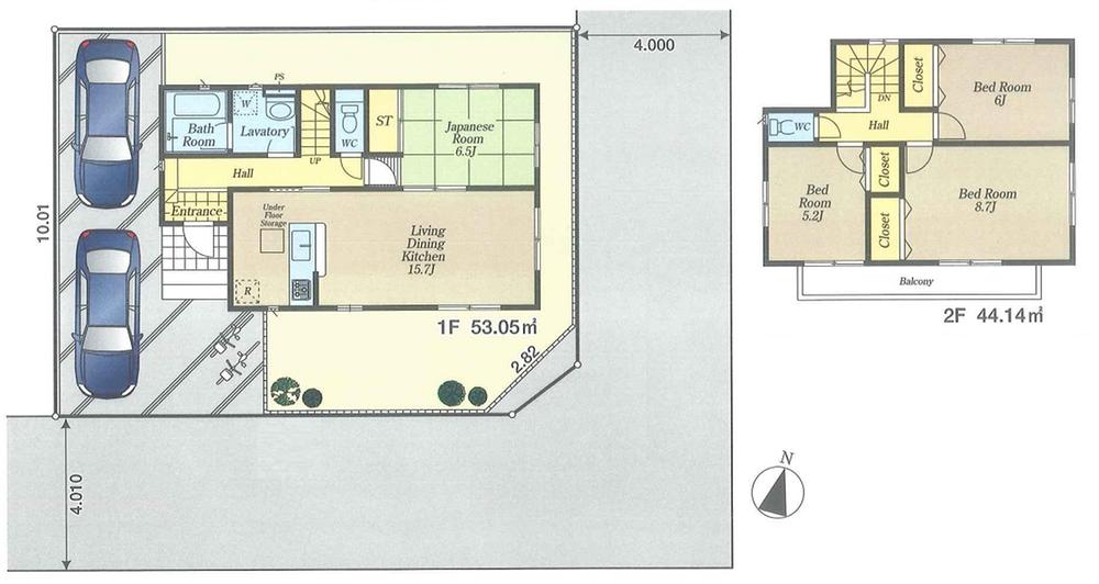
Features pickup 特徴ピックアップ | | Solar power system / Parking two Allowed / Facing south / System kitchen / Bathroom Dryer / Yang per good / All room storage / Siemens south road / A quiet residential area / LDK15 tatami mats or more / Corner lot / Japanese-style room / Washbasin with shower / Face-to-face kitchen / Toilet 2 places / 2-story / South balcony / Warm water washing toilet seat / Underfloor Storage / TV monitor interphone / Ventilation good / Water filter / City gas 太陽光発電システム /駐車2台可 /南向き /システムキッチン /浴室乾燥機 /陽当り良好 /全居室収納 /南側道路面す /閑静な住宅地 /LDK15畳以上 /角地 /和室 /シャワー付洗面台 /対面式キッチン /トイレ2ヶ所 /2階建 /南面バルコニー /温水洗浄便座 /床下収納 /TVモニタ付インターホン /通風良好 /浄水器 /都市ガス | Price 価格 | | 37,800,000 yen 3780万円 | Floor plan 間取り | | 4LDK 4LDK | Units sold 販売戸数 | | 1 units 1戸 | Land area 土地面積 | | 134.3 sq m 134.3m2 | Building area 建物面積 | | 97.19 sq m 97.19m2 | Driveway burden-road 私道負担・道路 | | 27.84 sq m , South 4m width, East 4m width 27.84m2、南4m幅、東4m幅 | Completion date 完成時期(築年月) | | November 2013 2013年11月 | Address 住所 | | Tokyo Kiyose Noshio 4 東京都清瀬市野塩4 | Traffic 交通 | | Seibu Ikebukuro Line "Akitsu" walk 16 minutes Seibu Ikebukuro Line "Kiyose" walk 21 minutes 西武池袋線「秋津」歩16分 西武池袋線「清瀬」歩21分
| Contact お問い合せ先 | | TEL: 0120-778772 [Toll free] Please contact the "saw SUUMO (Sumo)" TEL:0120-778772【通話料無料】「SUUMO(スーモ)を見た」と問い合わせください | Time residents 入居時期 | | Consultation 相談 | Land of the right form 土地の権利形態 | | Ownership 所有権 | Structure and method of construction 構造・工法 | | Wooden 2-story 木造2階建 | Overview and notices その他概要・特記事項 | | Facilities: Public Water Supply, This sewage, City gas, Building confirmation number: No. HSHC112791, Parking: car space 設備:公営水道、本下水、都市ガス、建築確認番号:第HSHC112791号、駐車場:カースペース | Company profile 会社概要 | | <Mediation> Saitama Governor (7) No. 013630 (Corporation) All Japan Real Estate Association (Corporation) metropolitan area real estate Fair Trade Council member Co., Ltd. Yamaguchi planning design headquarters Yubinbango359-1113 Tokorozawa Prefecture Kita-cho, 9-5 <仲介>埼玉県知事(7)第013630号(公社)全日本不動産協会会員 (公社)首都圏不動産公正取引協議会加盟(株)山口企画設計本社〒359-1113 埼玉県所沢市喜多町9-5 |
Floor plan間取り図  37,800,000 yen, 4LDK, Land area 134.3 sq m , Building area 97.19 sq m floor plan
3780万円、4LDK、土地面積134.3m2、建物面積97.19m2 間取り図
Local photos, including front road前面道路含む現地写真  Local under construction (October 24, 2013) Shooting
建築中の現地(2013年10月24日)撮影
Other localその他現地  Local under construction (October 24, 2013) Shooting
建築中の現地(2013年10月24日)撮影
Local photos, including front road前面道路含む現地写真  Local under construction (October 24, 2013) Shooting
建築中の現地(2013年10月24日)撮影
Other localその他現地  Local under construction (October 24, 2013) Shooting
建築中の現地(2013年10月24日)撮影
Location
|