|
|
Tokyo Kodaira
東京都小平市
|
|
Seibu Shinjuku Line "Hanakoganei" walk 12 minutes
西武新宿線「花小金井」歩12分
|
|
Facing south, System kitchen, Bathroom Dryer, Yang per good, All room storage, Flat to the station, Siemens south road, A quiet residential area, Shaping land, garden, Washbasin with shower, Barrier-free, Bathroom 1 tsubo or more, 2-story,
南向き、システムキッチン、浴室乾燥機、陽当り良好、全居室収納、駅まで平坦、南側道路面す、閑静な住宅地、整形地、庭、シャワー付洗面台、バリアフリー、浴室1坪以上、2階建、
|
|
Good residential series Good day per south road We will show you the differences between the ready-built house.
こだわりの住宅シリーズ 南道路につき日当たり良好 建売住宅との違いをお見せいたします。
|
Features pickup 特徴ピックアップ | | Facing south / System kitchen / Bathroom Dryer / Yang per good / All room storage / Flat to the station / Siemens south road / A quiet residential area / Shaping land / garden / Washbasin with shower / Barrier-free / Bathroom 1 tsubo or more / 2-story / Warm water washing toilet seat / The window in the bathroom / TV monitor interphone / Leafy residential area / Ventilation good / All living room flooring / Dish washing dryer / Water filter / All rooms are two-sided lighting / roof balcony / Flat terrain / Floor heating 南向き /システムキッチン /浴室乾燥機 /陽当り良好 /全居室収納 /駅まで平坦 /南側道路面す /閑静な住宅地 /整形地 /庭 /シャワー付洗面台 /バリアフリー /浴室1坪以上 /2階建 /温水洗浄便座 /浴室に窓 /TVモニタ付インターホン /緑豊かな住宅地 /通風良好 /全居室フローリング /食器洗乾燥機 /浄水器 /全室2面採光 /ルーフバルコニー /平坦地 /床暖房 |
Price 価格 | | 33,800,000 yen 3380万円 |
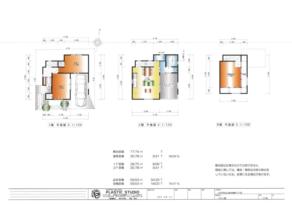
Floor plan 間取り | | 2LDK + S (storeroom) 2LDK+S(納戸) |
Units sold 販売戸数 | | 1 units 1戸 |
Total units 総戸数 | | 1 units 1戸 |
Land area 土地面積 | | 77.73 sq m (measured) 77.73m2(実測) |
Building area 建物面積 | | 59.53 sq m (measured) 59.53m2(実測) |
Driveway burden-road 私道負担・道路 | | 17.43 sq m , South 4m width (contact the road width 8.7m) 17.43m2、南4m幅(接道幅8.7m) |
Completion date 完成時期(築年月) | | December 2013 2013年12月 |
Address 住所 | | Tokyo Kodaira Hanakoganeiminami cho 3 東京都小平市花小金井南町3 |
Traffic 交通 | | Seibu Shinjuku Line "Hanakoganei" walk 12 minutes 西武新宿線「花小金井」歩12分
|
Contact お問い合せ先 | | (Yes) Japan ・ Coordinator Head Office TEL: 0800-603-8424 [Toll free] mobile phone ・ Also available from PHS Caller ID is not notified Please contact the "saw SUUMO (Sumo)" If it does not lead, If the real estate company (有)ジャパン・コーディネーター本店TEL:0800-603-8424【通話料無料】携帯電話・PHSからもご利用いただけます 発信者番号は通知されません 「SUUMO(スーモ)を見た」と問い合わせください つながらない方、不動産会社の方は
|
Building coverage, floor area ratio 建ぺい率・容積率 | | 40% ・ 80% 40%・80% |
Time residents 入居時期 | | Consultation 相談 |
Land of the right form 土地の権利形態 | | Ownership 所有権 |
Structure and method of construction 構造・工法 | | Wooden 2-story 木造2階建 |
Use district 用途地域 | | One low-rise 1種低層 |
Overview and notices その他概要・特記事項 | | Facilities: Public Water Supply, This sewage, City gas, Building confirmation number: h25, Parking: Garage 設備:公営水道、本下水、都市ガス、建築確認番号:h25、駐車場:車庫 |
Company profile 会社概要 | | <Seller> Governor of Tokyo (2) No. 081082 (with) Japan ・ Coordinator head office Yubinbango188-0001 Tokyo Nishitokyo Yato-cho 3-27-24 <売主>東京都知事(2)第081082号(有)ジャパン・コーディネーター本店〒188-0001 東京都西東京市谷戸町3-27-24 |