New Homes » Kanto » Tokyo » Kodaira
 
| | Tokyo Kodaira 東京都小平市 |
| Seibu Tamako Line "Hitotsubashigakuen" walk 16 minutes 西武多摩湖線「一橋学園」歩16分 |
| Seller direct sales! Heart full Town Hitotsubashigakuen (Kodaira Megurita Town) ~ All two buildings ~ It is finally the final 1 building! ! 売主直売!ハートフルタウン一橋学園(小平回田町) ~ 全2棟 ~ いよいよ最終1棟です!! |
| ◇ final 1 building Very popular Ahead of us! ◇ ◎ "Musashi Koganei" from the bus stop near the station until you go easy ◎ because it faces the sidewalk of the road children worry ◎ children happy garden Home ◎ corner lot per release feeling! ! ◎ because the elementary and junior high schools are close to children to school worry ◎ bonus repayment Mu, Every month at 100% loan 90,000 yen of payment Now the rent, Please try compared to the parking Badai document request ・ Because of local your tour do not hesitate busy season, Contact us by phone is not accepted. Although very sorry to trouble, [To document request] [Tour reservation] Please contact us from. ◇最終1棟 大好評 お早目に!◇◎近くのバス停から『武蔵小金井』駅まで簡単に行けます◎歩道のある道路に面しているのでお子様も安心◎子供もうれしい庭付き一戸建て◎角地につき解放感が!!◎小中学校が近いのでお子様の通学も安心◎ボーナス返済無、100%ローンでも毎月9万円台のお支払 今の家賃、駐車場代と比べてみてください資料請求・現地ご見学はお気軽に繁忙期のため、お電話にてのお問い合わせは受付しておりません。大変お手数ですが、【資料請求する】【見学予約する】からお問い合わせ下さい。 |
Features pickup 特徴ピックアップ | | Construction housing performance with evaluation / Design house performance with evaluation / Measures to conserve energy / Pre-ground survey / Vibration Control ・ Seismic isolation ・ Earthquake resistant / 2 along the line more accessible / Energy-saving water heaters / Facing south / System kitchen / Yang per good / All room storage / Siemens south road / A quiet residential area / LDK15 tatami mats or more / Corner lot / Japanese-style room / Shaping land / Washbasin with shower / Face-to-face kitchen / Bathroom 1 tsubo or more / 2-story / South balcony / Zenshitsuminami direction / Warm water washing toilet seat / Nantei / Leafy residential area / Water filter / City gas 建設住宅性能評価付 /設計住宅性能評価付 /省エネルギー対策 /地盤調査済 /制震・免震・耐震 /2沿線以上利用可 /省エネ給湯器 /南向き /システムキッチン /陽当り良好 /全居室収納 /南側道路面す /閑静な住宅地 /LDK15畳以上 /角地 /和室 /整形地 /シャワー付洗面台 /対面式キッチン /浴室1坪以上 /2階建 /南面バルコニー /全室南向き /温水洗浄便座 /南庭 /緑豊かな住宅地 /浄水器 /都市ガス | Event information イベント情報 | | (Please be sure to ask in advance) [The shop, Property Location ・ Floor plan ・ We have published all the compartment view (including the road with). ] Document request ・ Because of local your tour do not hesitate busy season, Contact us by phone is not accepted. [Document request] [Tour reservation] Please contact us. Our sales listing is, You can also see in the building. Complete listing is of course, You can also see your freely in the property under construction. Marantz rather, I thought firm like seeing a structural framework can not be seen easily in the post-completion. Your tour at any time is possible. If you wish to site visits, Please contact us in advance. Specification ・ We will send blueprint. The exact (including planned) that blueprint and are using please tell us when and housing equipment is hope the specification has been posted. Local sales Association does not conduct. (事前に必ずお問い合わせください)【当店では、物件所在地・間取り図・区画図(道路付けを含む)を全て公開しております。】資料請求・現地ご見学はお気軽に繁忙期のため、電話でのお問い合わせは受付しておりません。【資料請求】【見学予約】からお問い合わせください。当社の販売物件は、建築中でもご覧いただけます。完成物件はもちろん、建築中の物件でもご自由にご覧いただけます。むしろ当社としましては、完成後ではなかなか見ることが出来ないしっかりとした構造躯体をご覧いただきたいと思っております。いつでもご見学は可能です。現地見学をご希望される場合は、事前にご連絡ください。仕様書・設計図お送りいたします。正確な設計図や使用している(予定を含む)住宅機器などが掲載している仕様書をご希望されるときはお申し付けください。現地販売会は行っていません。 | Price 価格 | | 34,800,000 yen 3480万円 | Floor plan 間取り | | 3LDK 3LDK | Units sold 販売戸数 | | 1 units 1戸 | Total units 総戸数 | | 2 units 2戸 | Land area 土地面積 | | 95.65 sq m 95.65m2 | Building area 建物面積 | | 75.96 sq m 75.96m2 | Driveway burden-road 私道負担・道路 | | Road width: 8.2m, Asphaltic pavement 道路幅:8.2m、アスファルト舗装 | Completion date 完成時期(築年月) | | 2013 end of November 2013年11月末 | Address 住所 | | Tokyo Kodaira Megurita cho 150-15 東京都小平市回田町150-15 | Traffic 交通 | | Seibu Tamako Line "Hitotsubashigakuen" walk 16 minutes JR Chuo Line "Musashi Koganei" bus 13 minutes times Ayumi Tamachi 3 minutes 西武多摩湖線「一橋学園」歩16分 JR中央線「武蔵小金井」バス13分回田町歩3分
| Related links 関連リンク | | [Related Sites of this company] 【この会社の関連サイト】 | Person in charge 担当者より | | Rep Jiro Nagai 担当者永井次郎 | Contact お問い合せ先 | | (Ltd.) Idasangyo head office third Sales Department TEL: 0800-805-3549 [Toll free] mobile phone ・ Also available from PHS Caller ID is not notified Please contact the "saw SUUMO (Sumo)" If it does not lead, If the real estate company (株)飯田産業本店第三営業部TEL:0800-805-3549【通話料無料】携帯電話・PHSからもご利用いただけます 発信者番号は通知されません 「SUUMO(スーモ)を見た」と問い合わせください つながらない方、不動産会社の方は
| Sale schedule 販売スケジュール | | ◇ final 1 building Very popular Ahead of us! ◇ ◎ "Musashi Koganei" from the bus stop near the station until you go easy ◎ because it faces the sidewalk of the road children worry ◎ children happy garden Home ◎ corner lot per release feeling! ! ◎ because the elementary and junior high schools are close to children to school worry ◎ bonus repayment Mu, Every month at 100% loan 90,000 yen of payment Now the rent, Please try compared to the parking Badai document request ・ Because of local your tour do not hesitate busy season, Contact us by phone is not accepted. Although very sorry to trouble, [To document request] [Tour reservation] Please contact us from. ◇最終1棟 大好評 お早目に!◇◎近くのバス停から『武蔵小金井』駅まで簡単に行けます◎歩道のある道路に面しているのでお子様も安心◎子供もうれしい庭付き一戸建て◎角地につき解放感が!!◎小中学校が近いのでお子様の通学も安心◎ボーナス返済無、100%ローンでも毎月9万円台のお支払 今の家賃、駐車場代と比べてみてください資料請求・現地ご見学はお気軽に繁忙期のため、お電話にてのお問い合わせは受付しておりません。大変お手数ですが、【資料請求する】【見学予約する】からお問い合わせ下さい。 | Building coverage, floor area ratio 建ぺい率・容積率 | | Kenpei rate: 40%, Volume ratio: 80% 建ペい率:40%、容積率:80% | Time residents 入居時期 | | 2 months after the contract 契約後2ヶ月 | Land of the right form 土地の権利形態 | | Ownership 所有権 | Structure and method of construction 構造・工法 | | Wooden 2-story (framing method) 木造2階建(軸組工法) | Construction 施工 | | CO., LTD Idasangyo 株式会社 飯田産業 | Use district 用途地域 | | One low-rise 1種低層 | Land category 地目 | | Residential land 宅地 | Overview and notices その他概要・特記事項 | | The person in charge: Jiro Nagai, Building confirmation number: No. HPA-13-04807-1 other 担当者:永井次郎、建築確認番号:第HPA-13-04807-1号他 | Company profile 会社概要 | | <Seller> Minister of Land, Infrastructure and Transport (8) No. 003306 (Corporation) Tokyo Metropolitan Government Building Lots and Buildings Transaction Business Association (Corporation) metropolitan area real estate Fair Trade Council member (Ltd.) Idasangyo head office third sales department Yubinbango180-0022 Musashino-shi, Tokyo Sakai 2-2-2 <売主>国土交通大臣(8)第003306号(公社)東京都宅地建物取引業協会会員 (公社)首都圏不動産公正取引協議会加盟(株)飯田産業本店第三営業部〒180-0022 東京都武蔵野市境2-2-2 |
Local appearance photo現地外観写真  Rendering Perth
完成予想パース
Local photos, including front road前面道路含む現地写真  November shooting
11月撮影
Livingリビング  Example of construction (in fact there is no furniture)
施工例(実際は家具はありません)
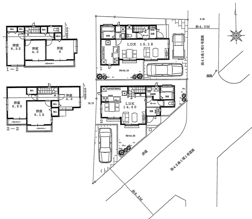
Floor plan間取り図  (1 Building), Price 34,800,000 yen, 3LDK, Land area 95.65 sq m , Building area 75.96 sq m
(1号棟)、価格3480万円、3LDK、土地面積95.65m2、建物面積75.96m2
Livingリビング  Example of construction (in fact there is no furniture)
施工例(実際は家具はありません)
Bathroom浴室  Spacious 1 tsubo bus. Do slowly relaxed with children.
ゆったり1坪バス。お子様と一緒にゆっくりくつろいで下さい。
Kitchenキッチン  Example of construction
施工例
Construction ・ Construction method ・ specification構造・工法・仕様  And susceptible to external wall the influence of moisture from the outdoors, We are using the Pollet styrene form "strong high-performance molded heat insulating material of the water" on the first floor of the floor.
屋外からの湿気の影響を受けやすい外壁と、1階の床に”水に強い高性能の成型断熱材”ポレスチレンフォームを使用しています。
Other Equipmentその他設備  Equipped with water purification function shower faucet to the system kitchen of all-slide type. Functional large sink of convex shape. There is a wide washable comfortably even accumulated washing.
オールスライドタイプのシステムキッチンに浄水機能付きシャワー水栓を完備。凸型形状の機能的な大型シンク。洗い物がたまっても楽に洗える広さがあります。
Primary school小学校  390m until Suzuki elementary school
鈴木小学校まで390m
 The entire compartment Figure
全体区画図
Construction ・ Construction method ・ specification構造・工法・仕様  T Lock II with about twice the strength of the "hole down hardware (HD20)", which is to have a very high performance in the general pillar fixing hardware.
一般的な柱固定金物で非常に高い性能を持つとされる「ホールダウン金物(HD20)」の約2倍の強度を持つTロックII。
Other Equipmentその他設備  Bathroom of 1 pyeong type, Space for relaxation heal the fatigue of the day.
1坪タイプのバスルームは、一日の疲れを癒してくれるくつろぎの空間。
Junior high school中学校  1300m to the third junior high school
第三中学校まで1300m
Construction ・ Construction method ・ specification構造・工法・仕様  We have a variety of ideas to prevent the deterioration of such decay of the structural frame, etc.. The basic packing to create a space between the foundation and the wall, Ensure proper ventilation.
構造躯体等の腐朽などの劣化を防ぐ様々な工夫をしています。基礎パッキンにより基礎と壁の間に空間を作り、通気性を確保しています。
Other Equipmentその他設備  Idasangyo original interior joinery is, 4 dealing with colors.
飯田産業オリジナル内装建具は、4色扱っています。
Supermarketスーパー  Until Inageya 380m
いなげやまで380m
Construction ・ Construction method ・ specification構造・工法・仕様  IDS method of housing, SI (skeleton that made it possible to change the floor plan along with the family structure ・ Infill) residential.
IDS工法の住宅は、家族構成に伴い間取りの変更を可能にしたSI(スケルトン・インフィル)住宅です。
Other Equipmentその他設備  Design of entrance door There are multiple.
玄関ドアのデザインは複数あります。
Kindergarten ・ Nursery幼稚園・保育園  Kihei 430m to nursery school
喜平保育園まで430m
Construction ・ Construction method ・ specification構造・工法・仕様  Our own construction properties has acquired the highest grade for the earthquake in the housing performance evaluation. (Except for some)
当社自社施工物件は住宅性能評価で耐震について最高等級を取得しています。(一部を除く)
Otherその他  Aiming to head office harmony of the third sales department is a member of the seller direct sales department in charge of the house and the environment, Always it offers a safe and secure condominiums from the user point of view.
本店第三営業部の売主直売担当部署のメンバーです住まいと環境の調和を目指し、常にユーザー視点から安全で安心な分譲住宅をご提供しています。
Construction ・ Construction method ・ specification構造・工法・仕様 ![Construction ・ Construction method ・ specification. Strong Idasangyo own method to earthquake [I.D.S-V type method] Adoption](/images/tokyo/kodaira/500d730004.jpg) Strong Idasangyo own method to earthquake [I.D.S-V type method] Adoption
地震に強い飯田産業独自の工法[I.D.S-V型工法]採用
 By the Housing Performance Indication System, 6 we have to get the highest grade of the item!
住宅性能表示制度により、6項目の最高等級を取得しております!
Location
|