New Homes » Kanto » Tokyo » Kodaira


Tokyo Kodaira
Seibu Kokubunji Line "Takanodai" walk 11 minutes
Are easy outer wall removal from storage at the lift down wall with kitchen is in is using the over Bell power board to Asahi Kasei. Fire-safety ・ Fire resistance ・ Excellent sound insulation!
☆ 2 station 2 line Available ☆ Shaping land ☆ LDK is almost square and easy to use. Contact us feel free to
Features pickup
Immediate Available / 2 along the line more accessible / System kitchen / Bathroom Dryer / All room storage / LDK15 tatami mats or more / Japanese-style room / Shaping land / Face-to-face kitchen / Barrier-free / Toilet 2 places / Bathroom 1 tsubo or more / 2-story / South balcony / Double-glazing / Zenshitsuminami direction / Underfloor Storage / The window in the bathroom / TV monitor interphone / Water filter / City gas / roof balcony
Price
33,800,000 yen
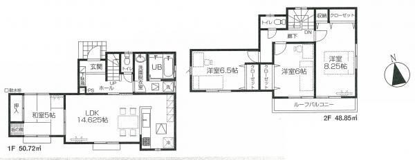
Floor plan
4LDK
Units sold
1 units
Total units
2 units
Land area
105.64 sq m (registration)
Building area
99.57 sq m (registration)
Driveway burden-road
Nothing, West 8m width
Completion date
November 2013
Address
Tokyo Kodaira Josuihon cho 2
Traffic
Seibu Kokubunji Line "Takanodai" walk 11 minutes
JR Chuo Line "Kokubunji" walk 31 minutes
Related links
[Related Sites of this company]
Person in charge
Person in charge of real-estate and building Konno Koichi Age: 30 Daigyokai experience: in order to help with the same eyes as the five-year customer, We have to take care of Kominyukeshon with customers.
Contact
TEL: 0800-603-0559 [Toll free] mobile phone ・ Also available from PHS
Caller ID is not notified
Please contact the "saw SUUMO (Sumo)"
If it does not lead, If the real estate company
Building coverage, floor area ratio
60% ・ 200%
Time residents
Immediate available
Land of the right form
Ownership
Structure and method of construction
Wooden 2-story
Use district
Two mid-high
Overview and notices
Contact: Konno Koichi, Facilities: Public Water Supply, This sewage, City gas, Parking: car space
Company profile
<Mediation> Minister of Land, Infrastructure and Transport (3) No. 006,185 (one company) National Housing Industry Association (Corporation) metropolitan area real estate Fair Trade Council member Asahi Housing Corporation Tachikawa shop Yubinbango190-0012 Tokyo Tachikawa Akebonocho 2-9-1 Kikuya Kawaguchi building the fourth floor


Local appearance photo
Local appearance photo

Local appearance photo
Local appearance photo

Floor plan

Floor plan. 33,800,000 yen, 4LDK, Land area 105.64 sq m , Building area 99.57 sq m
33,800,000 yen, 4LDK, Land area 105.64 sq m , Building area 99.57 sq m



Location