2013October
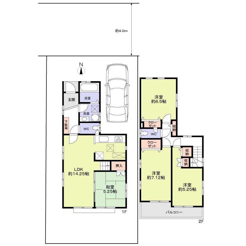
31,900,000 yen, 4LDK, 93.42 sq m
New Homes » Kanto » Tokyo » Kodaira

| | Tokyo Kodaira 東京都小平市 |
| Seibu Haijima Line "Higashiyamato" walk 9 minutes 西武拝島線「東大和市」歩9分 |
Features pickup 特徴ピックアップ | | Bathroom Dryer / Washbasin with shower / 2-story / Underfloor Storage / TV monitor interphone 浴室乾燥機 /シャワー付洗面台 /2階建 /床下収納 /TVモニタ付インターホン | Price 価格 | | 31,900,000 yen 3190万円 | Floor plan 間取り | | 4LDK 4LDK | Units sold 販売戸数 | | 1 units 1戸 | Total units 総戸数 | | 2 units 2戸 | Land area 土地面積 | | 97.14 sq m 97.14m2 | Building area 建物面積 | | 93.42 sq m 93.42m2 | Driveway burden-road 私道負担・道路 | | Nothing, North 4m width 無、北4m幅 | Completion date 完成時期(築年月) | | October 2013 2013年10月 | Address 住所 | | Tokyo Kodaira Nakajima-cho 東京都小平市中島町 | Traffic 交通 | | Seibu Haijima Line "Higashiyamato" walk 9 minutes 西武拝島線「東大和市」歩9分
| Contact お問い合せ先 | | Sumitomo Forestry Home Service Co., Ltd. Fuchu store TEL: 0800-603-0295 [Toll free] mobile phone ・ Also available from PHS Caller ID is not notified Please contact the "saw SUUMO (Sumo)" If it does not lead, If the real estate company 住友林業ホームサービス(株)府中店TEL:0800-603-0295【通話料無料】携帯電話・PHSからもご利用いただけます 発信者番号は通知されません 「SUUMO(スーモ)を見た」と問い合わせください つながらない方、不動産会社の方は
| Building coverage, floor area ratio 建ぺい率・容積率 | | Fifty percent ・ Hundred percent 50%・100% | Time residents 入居時期 | | Consultation 相談 | Land of the right form 土地の権利形態 | | Ownership 所有権 | Structure and method of construction 構造・工法 | | Wooden 2-story 木造2階建 | Use district 用途地域 | | One middle and high 1種中高 | Overview and notices その他概要・特記事項 | | Facilities: Public Water Supply, This sewage, City gas, Building confirmation number: No. H25SHC108172, Parking: car space 設備:公営水道、本下水、都市ガス、建築確認番号:第H25SHC108172号、駐車場:カースペース | Company profile 会社概要 | | <Mediation> Minister of Land, Infrastructure and Transport (14) Article 000220 No. Sumitomo Forestry Home Service Co., Ltd. Fuchu store Yubinbango183-0055 Tokyo Metropolitan Fuchu Fuchu-cho 1-1-5 Fuchu Takagi building the third floor <仲介>国土交通大臣(14)第000220号住友林業ホームサービス(株)府中店〒183-0055 東京都府中市府中町1-1-5 府中高木ビル3階 |
Floor plan間取り図  31,900,000 yen, 4LDK, Land area 97.14 sq m , Building area 93.42 sq m
3190万円、4LDK、土地面積97.14m2、建物面積93.42m2
Location
|