New Homes » Kanto » Tokyo » Kodaira
 
| | Tokyo Kodaira 東京都小平市 |
| Seibu Tamako Line "Hitotsubashigakuen" walk 14 minutes 西武多摩湖線「一橋学園」歩14分 |
| To === mind and body, Happy life Estate Hakuba === southwest 6m × 6m good car space two Allowed per yang per corner lot (by car)! Seismic Grade 3 acquisition. ===こころとカラダに、うれしい暮らし エステート白馬===南西6m×6m角地につき陽当たり良好カースペース2台可(車種による)!耐震等級3取得。 |
| Design house performance with evaluation, Corresponding to the flat-35S, Parking two Allowed, 2 along the line more accessible, Facing south, Bathroom Dryer, Yang per good, All room storage, Siemens south road, LDK15 tatami mats or more, Or more before road 6m, Corner lotese-style room, Washbasin with shower, Face-to-face kitchen, Toilet 2 places, 2-story, South balcony, Zenshitsuminami direction, Warm water washing toilet seat, Underfloor Storage, TV monitor interphone, City gas 設計住宅性能評価付、フラット35Sに対応、駐車2台可、2沿線以上利用可、南向き、浴室乾燥機、陽当り良好、全居室収納、南側道路面す、LDK15畳以上、前道6m以上、角地、和室、シャワー付洗面台、対面式キッチン、トイレ2ヶ所、2階建、南面バルコニー、全室南向き、温水洗浄便座、床下収納、TVモニタ付インターホン、都市ガス |
Features pickup 特徴ピックアップ | | Design house performance with evaluation / Corresponding to the flat-35S / Parking two Allowed / 2 along the line more accessible / Facing south / Bathroom Dryer / Yang per good / All room storage / Siemens south road / LDK15 tatami mats or more / Or more before road 6m / Corner lot / Japanese-style room / Washbasin with shower / Face-to-face kitchen / Toilet 2 places / 2-story / South balcony / Zenshitsuminami direction / Warm water washing toilet seat / Underfloor Storage / TV monitor interphone / City gas 設計住宅性能評価付 /フラット35Sに対応 /駐車2台可 /2沿線以上利用可 /南向き /浴室乾燥機 /陽当り良好 /全居室収納 /南側道路面す /LDK15畳以上 /前道6m以上 /角地 /和室 /シャワー付洗面台 /対面式キッチン /トイレ2ヶ所 /2階建 /南面バルコニー /全室南向き /温水洗浄便座 /床下収納 /TVモニタ付インターホン /都市ガス | Price 価格 | | 44,300,000 yen 4430万円 | Floor plan 間取り | | 4LDK 4LDK | Units sold 販売戸数 | | 1 units 1戸 | Land area 土地面積 | | 109.77 sq m (registration) 109.77m2(登記) | Building area 建物面積 | | 87.57 sq m (registration) 87.57m2(登記) | Driveway burden-road 私道負担・道路 | | Nothing, West 6m width, South 6m width 無、西6m幅、南6m幅 | Completion date 完成時期(築年月) | | March 2014 2014年3月 | Address 住所 | | Tokyo Kodaira Gakuenhigashi cho 東京都小平市学園東町 | Traffic 交通 | | Seibu Tamako Line "Hitotsubashigakuen" walk 14 minutes Seibu Shinjuku Line "Deng Xiaoping" walk 14 minutes JR Musashino Line "Shinkodaira" walk 31 minutes 西武多摩湖線「一橋学園」歩14分 西武新宿線「小平」歩14分 JR武蔵野線「新小平」歩31分
| Related links 関連リンク | | [Related Sites of this company] 【この会社の関連サイト】 | Person in charge 担当者より | | Person in charge of real-estate and building Hase Eisei Age: 30 Daigyokai experience: modern circumstances surrounding the 8-year real estate, We asked a variety of needs. We also changing times ・ According to the information society, We always continue to pursue the needs of our customers. here you go, Thank you. 担当者宅建長谷 英成年齢:30代業界経験:8年不動産を取り巻く現代の状況は、さまざまなニーズが求められています。私たちも時代の変化・情報化社会にあわせて、常にお客様のニーズを追及していきます。どうぞ、よろしくお願い申し上げます。 | Contact お問い合せ先 | | TEL: 0120-846898 [Toll free] Please contact the "saw SUUMO (Sumo)" TEL:0120-846898【通話料無料】「SUUMO(スーモ)を見た」と問い合わせください | Building coverage, floor area ratio 建ぺい率・容積率 | | 40% ・ 80% 40%・80% | Time residents 入居時期 | | 1 month after the contract 契約後1ヶ月 | Land of the right form 土地の権利形態 | | Ownership 所有権 | Structure and method of construction 構造・工法 | | Wooden 2-story 木造2階建 | Use district 用途地域 | | One low-rise 1種低層 | Overview and notices その他概要・特記事項 | | Contact: Hase Eisei, Facilities: Public Water Supply, This sewage, City gas, Building confirmation number: No. H25SHC118428, Parking: car space 担当者:長谷 英成、設備:公営水道、本下水、都市ガス、建築確認番号:第H25SHC118428号、駐車場:カースペース | Company profile 会社概要 | | <Mediation> Minister of Land, Infrastructure and Transport (4) No. 005817 (Corporation) All Japan Real Estate Association (Corporation) metropolitan area real estate Fair Trade Council member (Ltd.) Estate Hakuba Kokubunji store Yubinbango185-0012 Tokyo Kokubunji Honcho 4-19-10 Big Glad Kokubunji second floor <仲介>国土交通大臣(4)第005817号(公社)全日本不動産協会会員 (公社)首都圏不動産公正取引協議会加盟(株)エステート白馬国分寺店〒185-0012 東京都国分寺市本町4-19-10 ビッググラッド国分寺2階 |
 Local photos, including front road
前面道路含む現地写真
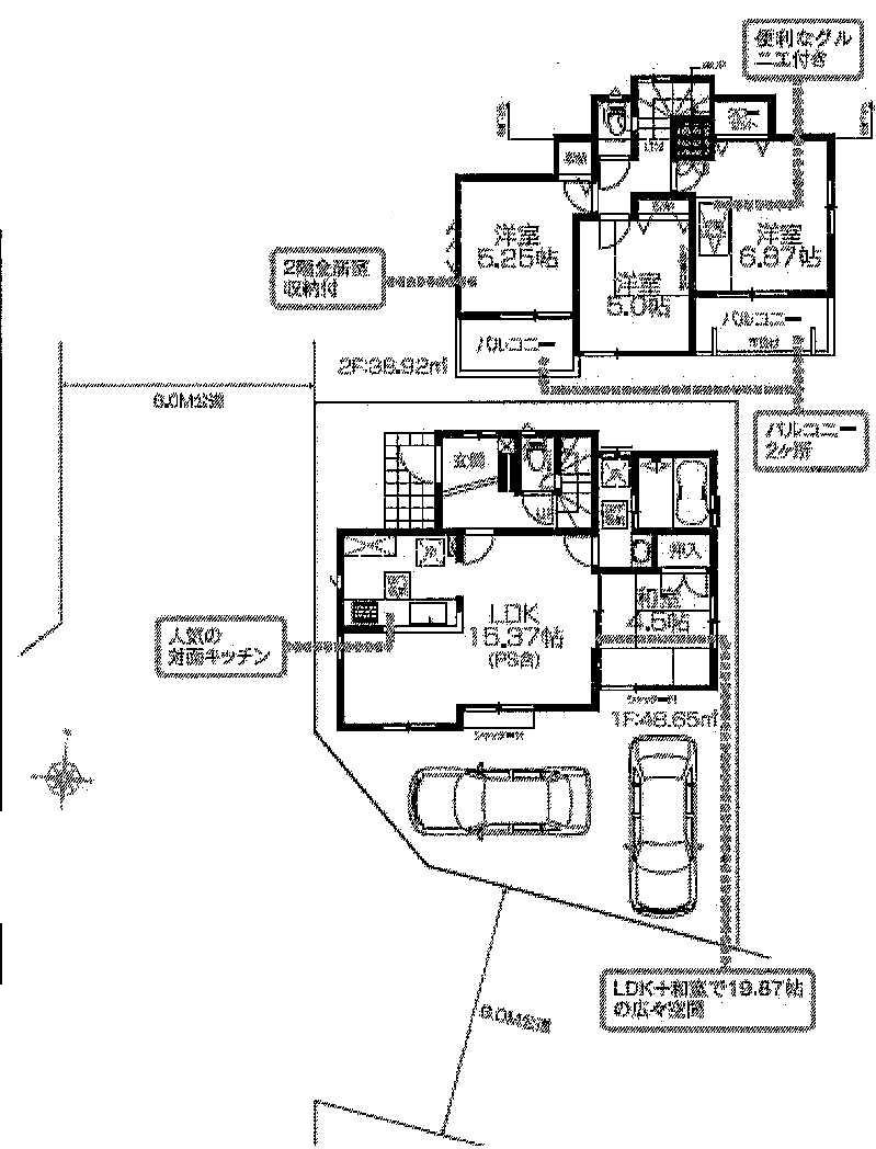
Floor plan間取り図  44,300,000 yen, 4LDK, Land area 109.77 sq m , Building area 87.57 sq m
4430万円、4LDK、土地面積109.77m2、建物面積87.57m2
 Local appearance photo
現地外観写真
 Local appearance photo
現地外観写真
 Local photos, including front road
前面道路含む現地写真
Supermarketスーパー  733m until Inageya Xiaoping Megurita shop
いなげや小平回田店まで733m
 Other
その他
 Local photos, including front road
前面道路含む現地写真
Junior high school中学校  Kodaira stand Xiaoping 1199m to the first junior high school
小平市立小平第一中学校まで1199m
Otherその他  South side adjacent land park
南側隣地公園
 Local photos, including front road
前面道路含む現地写真
Primary school小学校  Kodaira Municipal Gakuenhigashi to elementary school 773m
小平市立学園東小学校まで773m
Otherその他  South side adjacent land park
南側隣地公園
Kindergarten ・ Nursery幼稚園・保育園  Namiki to kindergarten 840m
なみき幼稚園まで840m
Otherその他  South side adjacent land park
南側隣地公園
Kindergarten ・ Nursery幼稚園・保育園  Yutaka 720m to nursery school
ゆたか保育園まで720m
Location
|