|
|
Tokyo Kodaira
東京都小平市
|
|
Seibu Shinjuku Line "Hanakoganei" walk 16 minutes
西武新宿線「花小金井」歩16分
|
|
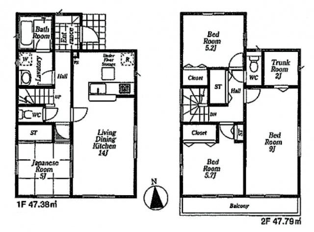
First floor of the Japanese-style room 5 pledge to pledge LDK14 to spend most of the day-to-day, It is spacious living space with 19 Pledge When you open. Also fascinated manner the main bedroom 9 Pledge of second floor, Storage rich wo - It is with Quinn closet.
日常の大半を過ごす1階部分はLDK14帖に和室5帖、開放すると19帖で広々した住空間です。2階部分の主寝室9帖も魅了的で、収納豊富なウォ-クインクローゼット付きです。
|
|
◎ after completion will be formed in all six buildings there is a sense of unity. ◎ not far from the station well close, Shopping facilities and bus service has been enhanced due to its proximity from Koganei highway along. ◎ considering housework flow line, It is a good floor plan easy to use. ◎ Since the completion is scheduled end of February complete listing of the same specification Ya, Also available upon presentation. "Information is here." ■ Kodaira Municipal Eleventh Elementary School: 8 minutes walk ■ Kodaira stand Xiaoping sixth Junior High School: walk 23 minutes ■ Inageya (super): 15-minute walk ■ SEIYU (super): 13 mins
◎完成後は統一感がある全6棟が形成されます。◎駅からも程良く近く、小金井街道沿いから近いため買物施設やバス便が充実しています。◎家事動線を考慮した、使い勝手のいい間取りです。◎完成が2月末予定ですので同仕様の完成物件や、プレゼンテーションも承ります。《インフォメーションはこちら》■小平市立第十一小学校:徒歩8分■小平市立小平第六中学校:徒歩23分■いなげや(スーパー):徒歩15分■SEIYU(スーパー):徒歩13分
|
Features pickup 特徴ピックアップ | | Corresponding to the flat-35S / Super close / It is close to the city / Bathroom Dryer / Yang per good / A quiet residential area / Around traffic fewer / Japanese-style room / Face-to-face kitchen / Bathroom 1 tsubo or more / 2-story / 2 or more sides balcony / Nantei / The window in the bathroom / Walk-in closet / City gas / A large gap between the neighboring house / Maintained sidewalk / All rooms southwestward フラット35Sに対応 /スーパーが近い /市街地が近い /浴室乾燥機 /陽当り良好 /閑静な住宅地 /周辺交通量少なめ /和室 /対面式キッチン /浴室1坪以上 /2階建 /2面以上バルコニー /南庭 /浴室に窓 /ウォークインクロゼット /都市ガス /隣家との間隔が大きい /整備された歩道 /全室南西向き |
Price 価格 | | 39,800,000 yen 3980万円 |
Floor plan 間取り | | 4LDK 4LDK |
Units sold 販売戸数 | | 1 units 1戸 |
Total units 総戸数 | | 6 units 6戸 |
Land area 土地面積 | | 119.48 sq m (36.14 tsubo) (measured) 119.48m2(36.14坪)(実測) |
Building area 建物面積 | | 95.17 sq m (28.78 tsubo) (Registration) 95.17m2(28.78坪)(登記) |
Driveway burden-road 私道負担・道路 | | Share equity 28.26 sq m × (3 / 42), East 4m width (contact the road width 2.1m) 共有持分28.26m2×(3/42)、東4m幅(接道幅2.1m) |
Completion date 完成時期(築年月) | | February 2014 2014年2月 |
Address 住所 | | Tokyo Kodaira Hanakoganei 3 東京都小平市花小金井3 |
Traffic 交通 | | Seibu Shinjuku Line "Hanakoganei" walk 16 minutes Seibu Shinjuku Line "Deng Xiaoping" walk 32 minutes Seibu Shinjuku Line "Tanashi" walk 37 minutes 西武新宿線「花小金井」歩16分 西武新宿線「小平」歩32分 西武新宿線「田無」歩37分
|
Person in charge 担当者より | | Rep Shimano Yuichi Age: 30 Daigyokai Experience: We promise that you accurately provide the services that are needed from the 8-year customer. Latest listing of course, finance ・ insurance ・ Architecture ・ design ・ Tax ・ Legal, etc., We respond in a "one-stop" to all the needs related to the dwelling. 担当者島野 祐一年齢:30代業界経験:8年お客様から必要とされるサービスを的確にご提供する事をお約束します。最新の物件情報はもちろん、ファイナンス・保険・建築・設計・税務・法務等、住まいに係わるあらゆるニーズに「ワンストップ」でお応えします。 |
Contact お問い合せ先 | | TEL: 0800-603-1283 [Toll free] mobile phone ・ Also available from PHS Caller ID is not notified Please contact the "saw SUUMO (Sumo)" If it does not lead, If the real estate company TEL:0800-603-1283【通話料無料】携帯電話・PHSからもご利用いただけます 発信者番号は通知されません 「SUUMO(スーモ)を見た」と問い合わせください つながらない方、不動産会社の方は
|
Building coverage, floor area ratio 建ぺい率・容積率 | | 40% ・ 80% 40%・80% |
Time residents 入居時期 | | February 2014 schedule 2014年2月予定 |
Land of the right form 土地の権利形態 | | Ownership 所有権 |
Structure and method of construction 構造・工法 | | Wooden 2-story 木造2階建 |
Use district 用途地域 | | One low-rise 1種低層 |
Overview and notices その他概要・特記事項 | | Contact: Shimano Yuichi, Facilities: Public Water Supply, This sewage, City gas, Building confirmation number: H25SHC117204, Parking: No 担当者:島野 祐一、設備:公営水道、本下水、都市ガス、建築確認番号:H25SHC117204、駐車場:無 |
Company profile 会社概要 | | <Mediation> Governor of Tokyo (8) No. 044879 (Corporation) Tokyo Metropolitan Government Building Lots and Buildings Transaction Business Association (Corporation) metropolitan area real estate Fair Trade Council member Ye station Tanashi Store Co., Ltd. Create Seibu Yubinbango188-0004 Tokyo Nishitokyo Nishihara 1-1-2 <仲介>東京都知事(8)第044879号(公社)東京都宅地建物取引業協会会員 (公社)首都圏不動産公正取引協議会加盟イエステーション田無店(株)クリエイト西武〒188-0004 東京都西東京市西原町1-1-2 |