New Homes » Kanto » Tokyo » Kokubunji


Tokyo Kokubunji
JR Chuo Line "Kokubunji" walk 12 minutes
There is also closet 4.5 Pledge in the daily life and very useful dishwasher, Please feel free to contact us we also with warm floor heating in cold winter is with a water purifier ☆
LDK14.0 Pledge loft 6 Pledge Yes
Features pickup
System kitchen / Siemens south road / Face-to-face kitchen / Barrier-free / 2-story / South balcony / loft / The window in the bathroom / Atrium / TV monitor interphone / All living room flooring / Dish washing dryer / Water filter / City gas / Storeroom / Floor heating
Price
42,800,000 yen
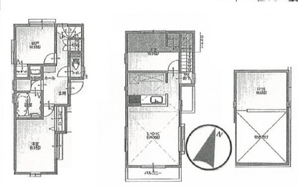
Floor plan
2LDK + S (storeroom)
Units sold
1 units
Total units
2 units
Land area
91.65 sq m (registration)
Building area
73.28 sq m (registration)
Driveway burden-road
Share equity 4.51 sq m × (1 / 2), South 3.4m width
Completion date
January 2014
Address
Tokyo Kokubunji East yuan-cho 1
Traffic
JR Chuo Line "Kokubunji" walk 12 minutes
Related links
[Related Sites of this company]
Person in charge
The person in charge Fujiwara Masahide Age: work hard and my best to be according to the request of the 30's customers!
Contact
TEL: 0800-603-0559 [Toll free] mobile phone ・ Also available from PHS
Caller ID is not notified
Please contact the "saw SUUMO (Sumo)"
If it does not lead, If the real estate company
Building coverage, floor area ratio
Fifty percent ・ 80%
Time residents
Consultation
Land of the right form
Ownership
Structure and method of construction
Wooden 2-story
Use district
One low-rise
Other limitations
Set-back: already
Overview and notices
Contact: Fujiwara Masahide, Facilities: Public Water Supply, This sewage, City gas, Building confirmation number: 114966, Parking: car space
Company profile
<Mediation> Minister of Land, Infrastructure and Transport (3) No. 006,185 (one company) National Housing Industry Association (Corporation) metropolitan area real estate Fair Trade Council member Asahi Housing Corporation Tachikawa shop Yubinbango190-0012 Tokyo Tachikawa Akebonocho 2-9-1 Kikuya Kawaguchi building the fourth floor


Floor plan

Floor plan. 42,800,000 yen, 2LDK+S, Land area 91.65 sq m , Building area 73.28 sq m
42,800,000 yen, 2LDK+S, Land area 91.65 sq m , Building area 73.28 sq m



Location