|
|
Tokyo Komae City
東京都狛江市
|
|
Odakyu line "Seijogakuen before" walk 22 minutes
小田急線「成城学園前」歩22分
|
|
◇ Odakyu line "Kitami" "Komae" 2 Station Available station! ! ◇ also safe for families with small children with a barrier-free design ☆
◇小田急線『喜多見』『狛江』駅の2駅利用可!!◇バリアフリー設計で小さいお子様がいるご家庭も安心☆
|
|
◆ room ・ The bathrooms are a step no barrier-free design! Small children worry ☆ ◆ System kitchen with a barrier-free low-top, You can enjoy your food in your family! ◆ Odakyu line "Kitami" Station 8-minute walk, "Komae" station a 10-minute walk! ◆ Elementary School 5-minute walk, Also safe school for children in junior high school 7-minute walk ☆ For more information ○ is [Document request] Please feel free to contact us more! ☆ ... ‥ - * - ‥ ■ Keio Line ・ Center line ・ To the property if the Company's Odakyu line! ■ HP only of information and non-public property is also a large number! ■ You can access from the Related Links ☆ "Customer dream to its previous ..." ‥ - * - ‥ ... ☆
◆居室・浴室は段差のないバリアフリー設計!小さなお子様も安心☆◆システムキッチンもバリアフリーロートップ式で、ご家族でお料理を楽しめます!◆小田急線『喜多見』駅徒歩8分、『狛江』駅徒歩10分!◆小学校徒歩5分、中学校徒歩7分でお子様の通学も安心☆○詳しくは【資料請求】よりお気軽にお問い合わせください!☆…‥―*―‥ ■京王線・中央線・小田急線の物件なら当社へ! ■HPのみの情報や未公開物件も多数! ■関連リンクよりアクセスできます☆ 『お客様の夢のその先へ…』 ‥―*―‥…☆
|
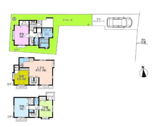
Features pickup 特徴ピックアップ | | System kitchen / Bathroom Dryer / Yang per good / All room storage / A quiet residential area / Or more before road 6m / Japanese-style room / Washbasin with shower / Barrier-free / Toilet 2 places / Zenshitsuminami direction / Warm water washing toilet seat / The window in the bathroom / TV monitor interphone / Three-story or more / Living stairs / City gas システムキッチン /浴室乾燥機 /陽当り良好 /全居室収納 /閑静な住宅地 /前道6m以上 /和室 /シャワー付洗面台 /バリアフリー /トイレ2ヶ所 /全室南向き /温水洗浄便座 /浴室に窓 /TVモニタ付インターホン /3階建以上 /リビング階段 /都市ガス |
Price 価格 | | 42,800,000 yen 4280万円 |
Floor plan 間取り | | 4LDK 4LDK |
Units sold 販売戸数 | | 1 units 1戸 |
Land area 土地面積 | | 79.65 sq m (registration) 79.65m2(登記) |
Building area 建物面積 | | 82.56 sq m (registration) 82.56m2(登記) |
Driveway burden-road 私道負担・道路 | | Nothing, East 6m width 無、東6m幅 |
Completion date 完成時期(築年月) | | October 2013 2013年10月 |
Address 住所 | | Tokyo Komae City Iwadominami 1 東京都狛江市岩戸南1 |
Traffic 交通 | | Odakyu line "Seijogakuen before" walk 22 minutes Odakyu line "Kitami" walk 8 minutes Odakyu line "Komae" walk 10 minutes 小田急線「成城学園前」歩22分 小田急線「喜多見」歩8分 小田急線「狛江」歩10分
|
Related links 関連リンク | | [Related Sites of this company] 【この会社の関連サイト】 |
Person in charge 担当者より | | Rep Kanazawa Ryo summer age: the 20's bright shop and a children's space. Please be needed in your family by all means! Pick you up at the proud smile ☆ We will help you with your happiness! 担当者金澤 涼夏年齢:20代明るい店内にはキッズスペースもあります。ぜひご家族でいらしてください!自慢の笑顔でお迎えします☆みなさんの幸せのお手伝いをさせていただきます! |
Contact お問い合せ先 | | TEL: 0800-603-8577 [Toll free] mobile phone ・ Also available from PHS Caller ID is not notified Please contact the "saw SUUMO (Sumo)" If it does not lead, If the real estate company TEL:0800-603-8577【通話料無料】携帯電話・PHSからもご利用いただけます 発信者番号は通知されません 「SUUMO(スーモ)を見た」と問い合わせください つながらない方、不動産会社の方は
|
Building coverage, floor area ratio 建ぺい率・容積率 | | 60% ・ 200% 60%・200% |
Time residents 入居時期 | | Consultation 相談 |
Land of the right form 土地の権利形態 | | Ownership 所有権 |
Structure and method of construction 構造・工法 | | Wooden three-story 木造3階建 |
Use district 用途地域 | | One dwelling 1種住居 |
Other limitations その他制限事項 | | Height district, Height district 高度地区、高度地区 |
Overview and notices その他概要・特記事項 | | Contact: Kanazawa Cool summer, Facilities: Public Water Supply, This sewage, City gas, Building confirmation number: No., Parking: car space 担当者:金澤 涼夏、設備:公営水道、本下水、都市ガス、建築確認番号:第、駐車場:カースペース |
Company profile 会社概要 | | <Mediation> Governor of Tokyo (2) No. 089073 (Ltd.) Dream House Yubinbango182-0002 Chofu, Tokyo Sengawa cho 3-9-22 <仲介>東京都知事(2)第089073号(株)ドリームハウス〒182-0002 東京都調布市仙川町3-9-22 |