2013November
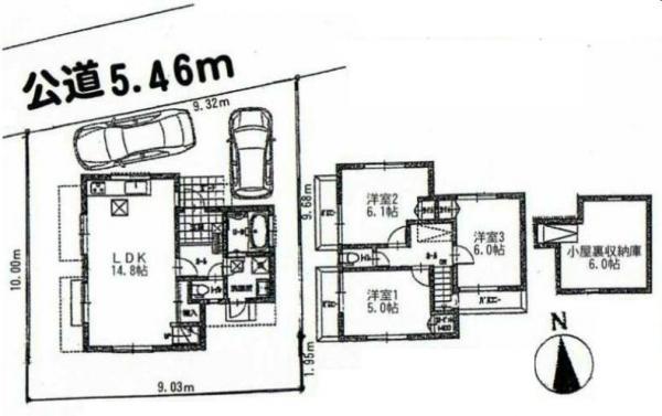
42,800,000 yen, 3LDK, 79.14 sq m
New Homes » Kanto » Tokyo » Komae City
 
| | Tokyo Komae City 東京都狛江市 |
| Odakyu line "Komae" walk 14 minutes 小田急線「狛江」歩14分 |
| Day good Ground guarantee 10 years Solid foundation engineering 日当り良好 地盤保証10年 ベタ基礎工法 |
| Living environment is good newly built detached. Please feel free to contact us. 住環境良好な新築戸建てです。お気軽にお問い合わせ下さい。 |
Features pickup 特徴ピックアップ | | Bathroom Dryer / Yang per good / A quiet residential area 浴室乾燥機 /陽当り良好 /閑静な住宅地 | Price 価格 | | 42,800,000 yen 4280万円 | Floor plan 間取り | | 3LDK 3LDK | Units sold 販売戸数 | | 1 units 1戸 | Total units 総戸数 | | 1 units 1戸 | Land area 土地面積 | | 98.95 sq m (registration) 98.95m2(登記) | Building area 建物面積 | | 79.14 sq m (registration) 79.14m2(登記) | Driveway burden-road 私道負担・道路 | | Nothing, Northwest 5.4m width 無、北西5.4m幅 | Completion date 完成時期(築年月) | | November 2013 2013年11月 | Address 住所 | | Tokyo Komae City Komai cho 2 東京都狛江市駒井町2 | Traffic 交通 | | Odakyu line "Komae" walk 14 minutes Odakyu line "Izumi Tamagawa" walk 17 minutes 小田急線「狛江」歩14分 小田急線「和泉多摩川」歩17分
| Related links 関連リンク | | [Related Sites of this company] 【この会社の関連サイト】 | Contact お問い合せ先 | | TEL: 0800-603-0560 [Toll free] mobile phone ・ Also available from PHS Caller ID is not notified Please contact the "saw SUUMO (Sumo)" If it does not lead, If the real estate company TEL:0800-603-0560【通話料無料】携帯電話・PHSからもご利用いただけます 発信者番号は通知されません 「SUUMO(スーモ)を見た」と問い合わせください つながらない方、不動産会社の方は
| Building coverage, floor area ratio 建ぺい率・容積率 | | 40% ・ 80% 40%・80% | Time residents 入居時期 | | Consultation 相談 | Land of the right form 土地の権利形態 | | Ownership 所有権 | Structure and method of construction 構造・工法 | | Wooden 2-story 木造2階建 | Use district 用途地域 | | One low-rise 1種低層 | Overview and notices その他概要・特記事項 | | Facilities: Public Water Supply, City gas, Building confirmation number: 25 Taken Kenichi Kendai 0150 No., Parking: car space 設備:公営水道、都市ガス、建築確認番号:25多建建一建第0150号、駐車場:カースペース | Company profile 会社概要 | | <Mediation> Minister of Land, Infrastructure and Transport (3) No. 006,185 (one company) National Housing Industry Association (Corporation) metropolitan area real estate Fair Trade Council member Asahi housing (stock) new downtown shop 160-0023 Tokyo Nishi-Shinjuku, Shinjuku-ku, 1-19-6 Shinjuku Yamate building 7th floor <仲介>国土交通大臣(3)第006185号(一社)全国住宅産業協会会員 (公社)首都圏不動産公正取引協議会加盟朝日住宅(株)新都心店〒160-0023 東京都新宿区西新宿1-19-6 山手新宿ビル7階 |
 Local appearance photo
現地外観写真
 Local appearance photo
現地外観写真
Floor plan間取り図  42,800,000 yen, 3LDK, Land area 98.95 sq m , Building area 79.14 sq m
4280万円、3LDK、土地面積98.95m2、建物面積79.14m2
 Local appearance photo
現地外観写真
Location
|