New Homes » Kanto » Tokyo » National City
 
| | Tokyo National City 東京都国立市 |
| JR Nambu Line "Yagawa" walk 8 minutes JR南武線「矢川」歩8分 |
| To === mind and body, Happy life Vibration Control Housing Estate Hakuba === seismic control panel. 20 years building, 10-year ground, Facilities of a five-year warranty, An additional 24 hours a day, 365 days a year Home Assistant services with. ===こころとカラダに、うれしい暮らし エステート白馬===制震パネルの制震住宅。建物20年、地盤10年、設備5年の保証、さらに24時間365日ホームアシスタントサービス付き。 |
| Measures to conserve energy, Corresponding to the flat-35S, Pre-ground survey, Vibration Control ・ Seismic isolation ・ Earthquake resistant, 2 along the line more accessible, Energy-saving water heaters, System kitchen, Bathroom Dryer, All room storage, Flat to the station, A quiet residential area, Around traffic fewer, Shaping land, Washbasin with shower, Face-to-face kitchen, Barrier-free, Toilet 2 places, Bathroom 1 tsubo or more, 2-story, South balcony, Double-glazing, Zenshitsuminami direction, Otobasu, Warm water washing toilet seat, Nantei, Underfloor Storage, The window in the bathroom, TV monitor interphone, Leafy residential area, All living room flooring, Dish washing dryer, City gas, Flat terrain, Floor heating 省エネルギー対策、フラット35Sに対応、地盤調査済、制震・免震・耐震、2沿線以上利用可、省エネ給湯器、システムキッチン、浴室乾燥機、全居室収納、駅まで平坦、閑静な住宅地、周辺交通量少なめ、整形地、シャワー付洗面台、対面式キッチン、バリアフリー、トイレ2ヶ所、浴室1坪以上、2階建、南面バルコニー、複層ガラス、全室南向き、オートバス、温水洗浄便座、南庭、床下収納、浴室に窓、TVモニタ付インターホン、緑豊かな住宅地、全居室フローリング、食器洗乾燥機、都市ガス、平坦地、床暖房 |
Features pickup 特徴ピックアップ | | Measures to conserve energy / Corresponding to the flat-35S / Pre-ground survey / Vibration Control ・ Seismic isolation ・ Earthquake resistant / 2 along the line more accessible / Energy-saving water heaters / System kitchen / Bathroom Dryer / All room storage / Flat to the station / A quiet residential area / Around traffic fewer / Shaping land / Washbasin with shower / Face-to-face kitchen / Barrier-free / Toilet 2 places / Bathroom 1 tsubo or more / 2-story / South balcony / Double-glazing / Zenshitsuminami direction / Otobasu / Warm water washing toilet seat / Nantei / Underfloor Storage / The window in the bathroom / TV monitor interphone / Leafy residential area / All living room flooring / Dish washing dryer / City gas / Flat terrain / Floor heating 省エネルギー対策 /フラット35Sに対応 /地盤調査済 /制震・免震・耐震 /2沿線以上利用可 /省エネ給湯器 /システムキッチン /浴室乾燥機 /全居室収納 /駅まで平坦 /閑静な住宅地 /周辺交通量少なめ /整形地 /シャワー付洗面台 /対面式キッチン /バリアフリー /トイレ2ヶ所 /浴室1坪以上 /2階建 /南面バルコニー /複層ガラス /全室南向き /オートバス /温水洗浄便座 /南庭 /床下収納 /浴室に窓 /TVモニタ付インターホン /緑豊かな住宅地 /全居室フローリング /食器洗乾燥機 /都市ガス /平坦地 /床暖房 | Price 価格 | | 38,800,000 yen 3880万円 | Floor plan 間取り | | 3LDK 3LDK | Units sold 販売戸数 | | 1 units 1戸 | Total units 総戸数 | | 1 units 1戸 | Land area 土地面積 | | 100.01 sq m (measured) 100.01m2(実測) | Building area 建物面積 | | 79.07 sq m (measured) 79.07m2(実測) | Driveway burden-road 私道負担・道路 | | 66.8 sq m , West 5m width 66.8m2、西5m幅 | Completion date 完成時期(築年月) | | April 2014 2014年4月 | Address 住所 | | Tokyo National City Aoyagi 1 東京都国立市青柳1 | Traffic 交通 | | JR Nambu Line "Yagawa" walk 8 minutes JR Nambu Line "Nishi Kunitachi" walk 17 minutes Tama Monorail "Shibasaki gymnasium" walk 27 minutes JR南武線「矢川」歩8分 JR南武線「西国立」歩17分 多摩都市モノレール「柴崎体育館」歩27分
| Related links 関連リンク | | [Related Sites of this company] 【この会社の関連サイト】 | Person in charge 担当者より | | Person in charge of real-estate and building FP Oba Yasumichi Age: 40 Daigyokai Experience: 16 years living a real estate purchase project to create a foundation, Help from a financial planner's point of view. Asset building, finance, Risk management, etc. Please let me total support. 担当者宅建FP大庭 泰道年齢:40代業界経験:16年生活の基盤をつくる不動産購入プロジェクトを、ファイナンシャルプランナーの視点からお手伝いします。資産形成、ファイナンス、リスクマネジメント等トータルサポートさせて頂きます。 | Contact お問い合せ先 | | TEL: 0120-846898 [Toll free] Please contact the "saw SUUMO (Sumo)" TEL:0120-846898【通話料無料】「SUUMO(スーモ)を見た」と問い合わせください | Building coverage, floor area ratio 建ぺい率・容積率 | | 40% ・ 80% 40%・80% | Time residents 入居時期 | | April 2014 schedule 2014年4月予定 | Land of the right form 土地の権利形態 | | Ownership 所有権 | Structure and method of construction 構造・工法 | | Wooden 2-story (framing method) 木造2階建(軸組工法) | Use district 用途地域 | | One low-rise 1種低層 | Overview and notices その他概要・特記事項 | | Contact: Oba Yasumichi, Facilities: Public Water Supply, This sewage, City gas, Building confirmation number: No. 13UDI3T Ken 02407, Parking: car space 担当者:大庭 泰道、設備:公営水道、本下水、都市ガス、建築確認番号:第13UDI3T建02407号、駐車場:カースペース | Company profile 会社概要 | | <Mediation> Minister of Land, Infrastructure and Transport (4) No. 005817 (Corporation) All Japan Real Estate Association (Corporation) metropolitan area real estate Fair Trade Council member (Ltd.) Estate Hakuba Kokubunji store Yubinbango185-0012 Tokyo Kokubunji Honcho 4-19-10 Big Glad Kokubunji second floor <仲介>国土交通大臣(4)第005817号(公社)全日本不動産協会会員 (公社)首都圏不動産公正取引協議会加盟(株)エステート白馬国分寺店〒185-0012 東京都国分寺市本町4-19-10 ビッググラッド国分寺2階 |
Local appearance photo現地外観写真  Beautiful shaping land, Green is a rich living environment.
きれいな整形地、緑豊かな住環境です。
Local photos, including front road前面道路含む現地写真  The entire surface of the road is the road width 5m, It is open.
全面道路は幅員5mあり、開放的です。
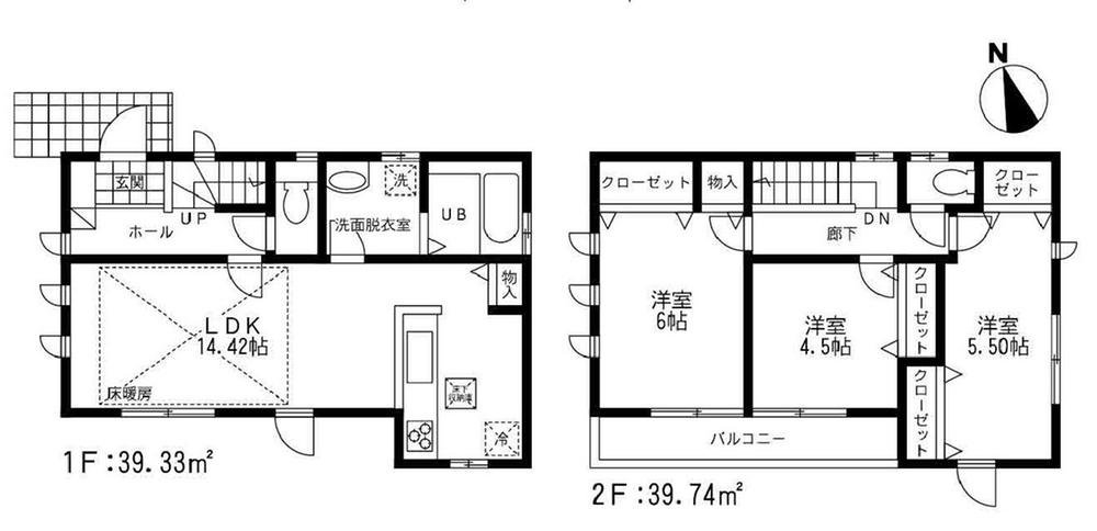
Floor plan間取り図  38,800,000 yen, 3LDK, Land area 100.01 sq m , Building area 79.07 sq m
3880万円、3LDK、土地面積100.01m2、建物面積79.07m2
 Local appearance photo
現地外観写真
 Local photos, including front road
前面道路含む現地写真
Supermarketスーパー  Seiyu Aoyagi 701m to shop
西友青柳店まで701m
 Local appearance photo
現地外観写真
 Inageya National Yagawa until Station shop 671m
いなげや国立矢川駅前店まで671m
 Local appearance photo
現地外観写真
 Daimarupikokku 820m to National Sakura dori
大丸ピーコック国立さくら通り店まで820m
Home centerホームセンター  Keiyo Deitsu National Aoyagi 568m to shop
ケーヨーデイツー国立青柳店まで568m
Junior high school中学校  711m to Tachikawa Municipal Tachikawa third junior high school
立川市立立川第三中学校まで711m
Primary school小学校  189m to National City National sixth elementary school
国立市立国立第六小学校まで189m
Park公園  Yagawa to green space 627m
矢川緑地まで627m
Location
|