New Homes » Kanto » Tokyo » Machida
 
| | Machida, Tokyo 東京都町田市 |
| JR Yokohama Line "Hashimoto" bus 4 minutes "Tama Art University Minami" walk 8 minutes JR横浜線「橋本」バス4分「多摩美術大学南」歩8分 |
| ~ Big sky and the city "Leafeon Machida Koyama months hill" of all 196 sections of the top of a hill surrounded by forest Phase 3 4 Next ・ 5 Next ~ To the city of peace that the sky and the hills and the road leads to the "forest", "new city block birth"! ~ 大きな空と森に囲まれた丘の上の全196区画の街「リーフィア町田小山ヶ丘」第3期4次・5次 ~ 空と丘と道が「森」とつながるやすらぎの街に「新街区誕生」! |
| ~ January 11 (Saturday) following the third phase 4 ・ 5 Next Model Home Grand Opening ~ ■ Wider streets, such as a walk in the woods. ・ Tokyo's largest landscape agreement approval Complex to protect the beautiful landscape ■ Security is wrapped in a peace of mind of the city. ・ Town security ・ Home security ■ There are also sky no wire telephone pole. ・ Power, as well rainwater ・ sewage ・ gas ・ water supply ・ And communications All the infrastructure of the city facilities are underground. ■ Adjacent to the land sale is a large-scale shopping center. ・ Such as supermarkets and discount shops entering "MrMax" is adjacent. ~ 1月11日(土)第3期4次・5次 モデルホームグランドオープン ~ ■森の中を散策するような街並みが広がります。 ・美しい景観を守る都内最大規模の景観協定認可団地■セキュリティが街を安心で包みます。 ・タウンセキュリティ ・ホームセキュリティ■電柱も電線もない空があります。 ・電力はもとより雨水・汚水・ガス・給水・通信といった 都市設備のインフラをすべて地中化しています。■大規模ショッピングセンターが分譲地に隣接。 ・スーパーマーケットやディスカウントショップなどが入る「MrMax」が隣接。 |
Local guide map 現地案内図 | | Local guide map 現地案内図 | Features pickup 特徴ピックアップ | | Design house performance with evaluation / Measures to conserve energy / Corresponding to the flat-35S / Pre-ground survey / Year Available / Parking two Allowed / 2 along the line more accessible / LDK20 tatami mats or more / Energy-saving water heaters / See the mountain / Super close / Facing south / System kitchen / Bathroom Dryer / Yang per good / All room storage / Siemens south road / Or more before road 6m / Corner lot / Japanese-style room / Starting station / Shaping land / Mist sauna / garden / Washbasin with shower / Face-to-face kitchen / Security enhancement / Wide balcony / 3 face lighting / Barrier-free / Toilet 2 places / Bathroom 1 tsubo or more / 2-story / South balcony / Double-glazing / Zenshitsuminami direction / Warm water washing toilet seat / Nantei / Underfloor Storage / The window in the bathroom / TV monitor interphone / Leafy residential area / Mu front building / Ventilation good / Good view / Dish washing dryer / Walk-in closet / Or more ceiling height 2.5m / Water filter / City gas / Storeroom / All rooms are two-sided lighting / Located on a hill / roof balcony / Floor heating / Development subdivision in / terrace 設計住宅性能評価付 /省エネルギー対策 /フラット35Sに対応 /地盤調査済 /年内入居可 /駐車2台可 /2沿線以上利用可 /LDK20畳以上 /省エネ給湯器 /山が見える /スーパーが近い /南向き /システムキッチン /浴室乾燥機 /陽当り良好 /全居室収納 /南側道路面す /前道6m以上 /角地 /和室 /始発駅 /整形地 /ミストサウナ /庭 /シャワー付洗面台 /対面式キッチン /セキュリティ充実 /ワイドバルコニー /3面採光 /バリアフリー /トイレ2ヶ所 /浴室1坪以上 /2階建 /南面バルコニー /複層ガラス /全室南向き /温水洗浄便座 /南庭 /床下収納 /浴室に窓 /TVモニタ付インターホン /緑豊かな住宅地 /前面棟無 /通風良好 /眺望良好 /食器洗乾燥機 /ウォークインクロゼット /天井高2.5m以上 /浄水器 /都市ガス /納戸 /全室2面採光 /高台に立地 /ルーフバルコニー /床暖房 /開発分譲地内 /テラス | Event information イベント情報 | | Model house schedule / During the public time / 10:00 ~ 17: 001, May 11 (Saturday) following the third phase 4 ・ 5 Next Model Home Grand Opening ※ Since Saturday and Sunday is expected congestion, When your visit is, If you give in advance to make a reservation free dial, Guidance is smooth. モデルハウス日程/公開中時間/10:00 ~ 17:001月11日(土)第3期4次・5次 モデルホームグランドオープン※土日は混雑が予想されますので、ご来場の際は、事前にフリーダイアルでご予約をいただけますと、ご案内がスムーズです。 | Property name 物件名 | | Odakyu Real Estate Co., Ltd. Leafeon Machida Koyama months hill Phase 3 4 Next ・ 5 Next / Notice advertising 小田急不動産 リーフィア町田小山ヶ丘第3期4次・5次/予告広告 | Price 価格 | | 47 million yen ~ 54 million yen (planned) 4700万円 ~ 5400万円台(予定) | Floor plan 間取り | | 4LDK ・ 4LDK + S (storeroom) 4LDK・4LDK+S(納戸) | Units sold 販売戸数 | | Undecided 未定 | Total units 総戸数 | | 196 units 196戸 | Land area 土地面積 | | 150.77 sq m ~ 183.57 sq m (45.60 tsubo ~ 55.52 tsubo) (Registration) 150.77m2 ~ 183.57m2(45.60坪 ~ 55.52坪)(登記) | Building area 建物面積 | | 108.62 sq m ~ 121.78 sq m (32.85 tsubo ~ 36.83 tsubo) (Registration) 108.62m2 ~ 121.78m2(32.85坪 ~ 36.83坪)(登記) | Driveway burden-road 私道負担・道路 | | Road width: about 5.0m ~ About 11.0m (public road), Driveway burden: No 道路幅員:約5.0m ~ 約11.0m(公道)、私道負担:無 | Completion date 完成時期(築年月) | | January 2014 late schedule 2014年1月下旬予定 | Address 住所 | | Tokyo Machida Koyama months hill 6-1 No. 146 東京都町田市小山ヶ丘6-1番146他(地番) | Traffic 交通 | | JR Yokohama Line "Hashimoto" bus 4 minutes "Tama Art University Minami" walk 8 minutes JR Yokohama Line "Hashimoto" walk 23 minutes Keio Sagamihara Line "Hashimoto" walk 25 minutes JR横浜線「橋本」バス4分「多摩美術大学南」歩8分 JR横浜線「橋本」歩23分 京王相模原線「橋本」歩25分
| Related links 関連リンク | | [Related Sites of this company] 【この会社の関連サイト】 | Contact お問い合せ先 | | "Leafeon Machida Koyama months hill" Information Center TEL: 0120-092-565 [Toll free] (mobile phone ・ Also available from PHS. ) Please contact the "saw SUUMO (Sumo)" 「リーフィア町田小山ヶ丘」インフォメーションセンターTEL:0120-092-565【通話料無料】(携帯電話・PHSからもご利用いただけます。)「SUUMO(スーモ)を見た」と問い合わせください | Sale schedule 販売スケジュール | | Sales start 2014 in late January sales scheduled to start from the end of January 1月下旬より販売開始2014年1月下旬販売開始予定 | Most price range 最多価格帯 | | 48 million yen (scheduled) (4 units) 4800万円台(予定)(4戸) | Expenses 諸費用 | | Other expenses: Town security and administrative expenses: 12000 yen / Year (since March 2014 yen 12350) その他諸費用:タウンセキュリティ管理費:12000円/年(2014年3月以降は12350円) | Building coverage, floor area ratio 建ぺい率・容積率 | | Building coverage: 60%, Volume ratio: 200% 建ぺい率:60%、容積率:200% | Time residents 入居時期 | | March 2014 in late schedule 2014年3月下旬予定 | Land of the right form 土地の権利形態 | | Ownership 所有権 | Structure and method of construction 構造・工法 | | Wooden (2 × 4 construction method) 木造(2×4工法) | Construction 施工 | | (Ltd.) Odakyu housing (building), (Ltd.) Odakyu land Flora (outside structure ・ Planting) (株)小田急ハウジング(建物)、(株)小田急ランドフローラ(外構・植栽) | Use district 用途地域 | | Two dwellings 2種住居 | Land category 地目 | | Residential land 宅地 | Other limitations その他制限事項 | | Quasi-fire zones, Site area minimum Yes, The second kind altitude district, Koyama months Okanishi district district plan, Leafeon Machida Koyama months hill landscape agreement 準防火地域、敷地面積最低限度有、第二種高度地区、小山ヶ丘西地区地区計画、リーフィア町田小山ヶ丘景観協定 | Overview and notices その他概要・特記事項 | | Building confirmation number: No. 199 (December 2012 dated 18) Other, Property amenities: Public Water Supply, Public sewage, City gas, Tokyo Electric Power Co. 建築確認番号:第199号(平成24年12月18日付)他、施設設備:公営水道、公共下水、都市ガス、東京電力 | Company profile 会社概要 | | <Seller> Minister of Land, Infrastructure and Transport (12) No. 001168 (during the update procedure) (one company) Real Estate Association (one company) Property distribution management Association Odakyu Real Estate Co., Ltd. (stock) Yubinbango151-0061 Shibuya-ku, Tokyo Hatsudai 1-47 <売主>国土交通大臣(12)第001168号(更新手続中)(一社)不動産協会会員 (一社)不動産流通経営協会会員小田急不動産(株)〒151-0061 東京都渋谷区初台1-47-1 小田急西新宿ビル |
Local appearance photo現地外観写真  Spread a bright sky, On a hill that has been framed in green forest. Aim is "Leafeon Machida Koyama months hill", Story of life as a "forest" is the beginning of the 196 family.
明るい空が広がる、森の緑にふちどられた丘の上。「リーフィア町田小山ヶ丘」が目指す、196家族の「森」と暮らしの物語が始まります。
 ■ The third phase secondary streets photo quickly and healthily grow up children, You have me always watching this town. Aim is "Leafeon Machida Koyama months hill", Story of life as a "forest" is the beginning of the 196 family. (August 2013 shooting)
■第3期2次街並み写真すくすく育つ子供達を、いつもこの街が見守ってくれています。「リーフィア町田小山ヶ丘」が目指す、196家族の「森」と暮らしの物語が始まります。(2013年8月撮影)
Otherその他  ■ Local sale already the city average photo forest and ties, Snuggle in the park, Encounter in nature is life and the people and the city while enjoying the view of the hill, Each other each other to grow. People and the city and happy encounter that connects the natural is here. (September 2012 shooting)
■現地分譲済み街並写真森とつながり、公園に寄り添い、高台の眺望を楽しみながら人と街と自然が生活の中で出会い、お互いが成長しあう。人と街と自然を結ぶうれしい出会いがここにあります。(2012年9月撮影)
![Other. [Open outside the structure] A feeling of opening "open outside the structure" plan, It will produce a bright and carefree cityscape. <Subdivision already dwelling unit (August 2012 shooting)>](/images/tokyo/machida/2d09110163.jpg) [Open outside the structure] A feeling of opening "open outside the structure" plan, It will produce a bright and carefree cityscape. <Subdivision already dwelling unit (August 2012 shooting)>
【オープン外構】開放感のある「オープン外構」計画は、明るくのびやかな街並みを演出します。<分譲済み住戸(2012年8月撮影)>
![Other. [Komorebi park] In the heart of the city "Komorebi park" is, Us to deepen the exchange of children and live people. <Local cityscape photo (August 2012 shooting)>](/images/tokyo/machida/2d09110164.jpg) [Komorebi park] In the heart of the city "Komorebi park" is, Us to deepen the exchange of children and live people. <Local cityscape photo (August 2012 shooting)>
【こもれび公園】街の中心にある「こもれび公園」は、子ども達や暮らす人々の交流を深めてくれます。<現地街並み写真(2012年8月撮影)>
Sale already cityscape photo分譲済街並み写真 ![Sale already cityscape photo. [Lead roof] Tiled roof of red brown asymmetrical, Accentuate the personality of one house one House. (July 2012 shooting)](/images/tokyo/machida/2d09110171.jpg) [Lead roof] Tiled roof of red brown asymmetrical, Accentuate the personality of one house one House. (July 2012 shooting)
【招き屋根】左右非対称の赤茶色の瓦屋根は、一邸一邸の個性を際立たせます。(2012年7月撮影)
Livingリビング  ■ Living dining bright a blow-living ・ Dining, Family will be the favorite gathering place in nature. Sale already dwelling unit (August 2013) Shooting
■リビングダイニング明るい吹抜のあるリビング・ダイニングは、家族が自然に集まるお気に入りの場所になります。分譲済住戸(2013年8月)撮影
Kitchenキッチン  ■ dining ・ kitchen While looking at the face of the family has adopted the open-minded counter kitchen with household chores can be. Between dishes also impetus conversation in the dining and kitchen. Sale already dwelling unit (August 2013) Shooting
■ダイニング・キッチン 家族の顔を見ながら家事が出来る開放的なカウンターキッチンを採用しました。お料理の間もダイニングとキッチンで会話が弾みます。 分譲済住戸(2013年8月)撮影
Livingリビング  ■ Study Corner Even while in the kitchen and living room have a housework, As children of the study is Mimamoreru, It has established a study corner dining. Sale already dwelling unit (August 2013 shooting)
■スタディコーナー キッチンやリビングで家事をしている間でも、子ども達の勉強が見守れるように、ダイニングにスタディコーナーを設けました。 分譲済住戸(2013年8月撮影)
Non-living roomリビング以外の居室  ■ Master bedroom The main bedroom, which provided about 2.2 tatami mats of a walk-in closet, Bright and clean and can spend facing the large roof balcony. Sale already dwelling unit (August 2013 shooting)
■主寝室 約2.2畳のウォークインクローゼットを設けた主寝室は、大型のルーフバルコニーに面して明るくすっきりとお過ごしいただけます。 分譲済住戸(2013年8月撮影)
Receipt収納  ■ Walk-in closet Space is of large capacity that can accommodate the rich clothing to smart. In taking out and clean up it is easy to store, The main bedroom is Katazuki and refreshing. Sale already dwelling unit (August 2013) Shooting
■ウォークインクロゼット 豊富な衣類をスマートに収納できる大容量のスペースです。取出しや片づけがしやすい収納で、主寝室がスッキリと片付きます。 分譲済住戸(2013年8月)撮影
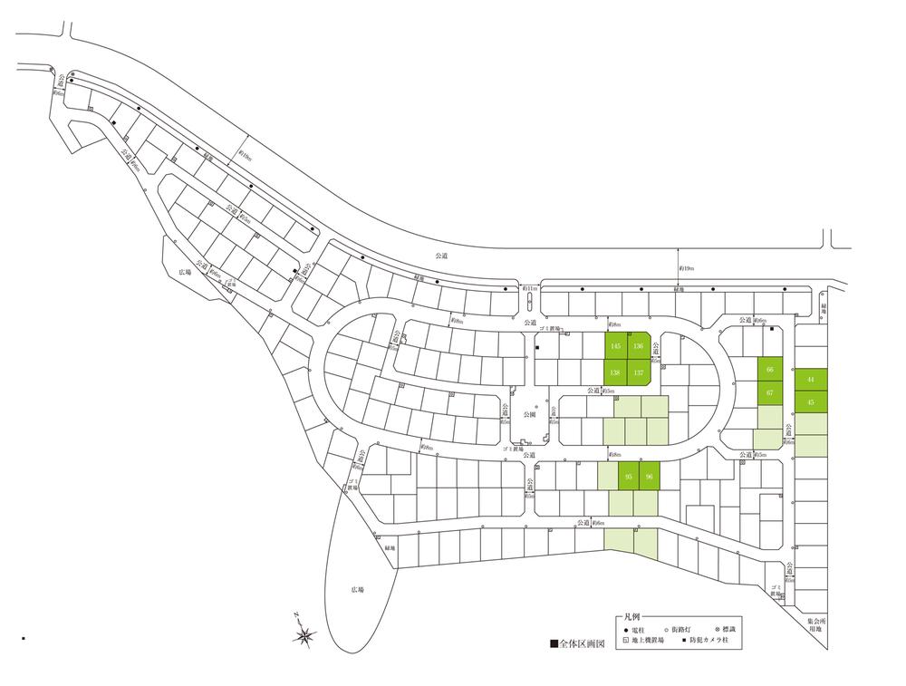
The entire compartment Figure全体区画図  The entire compartment Figure
【全体区画図】
Floor plan間取り図  (46 Building), Price TBD , 4LDK+S, Land area 183.44 sq m , Building area 119.74 sq m
(46号棟)、価格 未定 、4LDK+S、土地面積183.44m2、建物面積119.74m2
 (125 Building), Price TBD , 4LDK+S, Land area 151.97 sq m , Building area 113.71 sq m
(125号棟)、価格 未定 、4LDK+S、土地面積151.97m2、建物面積113.71m2
 (126 Building), Price TBD , 4LDK+S, Land area 151.89 sq m , Building area 117.39 sq m
(126号棟)、価格 未定 、4LDK+S、土地面積151.89m2、建物面積117.39m2
 (132 Building), Price TBD , 4LDK+S, Land area 151.7 sq m , Building area 118.93 sq m
(132号棟)、価格 未定 、4LDK+S、土地面積151.7m2、建物面積118.93m2
Shopping centreショッピングセンター  MrMax Machida Tamasakai 300m (4-minute walk) from the shopping center every day of shopping, Is convenient MrMax immediately to your next. Assortment features aimed at a wide range of customer base to babies senior.
MrMax町田多摩境ショッピングセンターまで300m (徒歩4分)毎日のショッピングは、すぐお隣りにあるMrMaxが便利です。赤ちゃんからシニアまで幅広い客層に向けた品揃えが特長。
 1720m until the ion Hashimoto shop directly in the (20-minute walk) Hashimoto Station North and the deck. And products rich ion, About 30 specialty stores, General shopping center restaurant is on.
イオン橋本店まで1720m (徒歩20分)橋本駅北口とデッキで直結。商品豊富なイオンと、約30の専門店、飲食店が入っている総合ショッピングセンター。
 Cain home until Machida Tamasakai shop 2710m (32 minutes walk) Mega DIY super counting the nationwide 179 stores.
カインズホーム町田多摩境店まで2710m (徒歩32分)全国179店舗を数えるメガDIYスーパー。
Other Equipmentその他設備  The stove, Adopt a hyper-glass coat the top plate. Oil dirt also easy to wipe off, Easy to clean. Multi-function button is also attached.
コンロには、ハイパーガラスコートトッププレートを採用。油汚れなども拭き取りやすく、お手入れが簡単です。多機能ボタンも付いています。
 Less burden on the body so as not to be heated, You can relax both physically and mentally.
高温にならないため体への負担が少なく、心身ともにリラックスできます。
 Water direct connection type of tankless toilet instead of flowing water that pooled in the tank. And looks are clean, Nagase will also soon be flowed water.
タンクに貯めた水を流すのではなく水道直結タイプのタンクレストイレ。見た目もスッキリしていて、水を流してもすぐにまた流せます。
Local guide map現地案内図 ![Local guide map. [Local guide map] Immediately next door is the shopping center "MrMAX", There is also the familiar fashionable restaurants and bakery, It will be accompanied by a color to daily life.](/images/tokyo/machida/2d09110161.jpg) [Local guide map] Immediately next door is the shopping center "MrMAX", There is also the familiar fashionable restaurants and bakery, It will be accompanied by a color to daily life.
【現地案内図】すぐお隣がショッピングセンター「MrMAX」、おしゃれなレストランやベーカリーも身近にあり、毎日の暮らしに彩りを添えてくれます。
Power generation ・ Hot water equipment発電・温水設備  Adopt a high-efficiency gas with hot water heating bath water heater. The heat source machine eco Jaws with improved water heater thermal efficiency, It suppresses the release of unwanted heat, Also reduce emissions of CO2
高効率ガス温水暖房付ふろ給湯器を採用。給湯熱効率を向上させた熱源機エコジョーズにより、不要な熱の放出を抑えるとともに、CO2の排出量も削減します
Other Equipmentその他設備  There are outlet opened the hand switch for the lighting of the corridor. It was considered so also do not have to disconnect the outlet bend over every time cleaning.
廊下の照明用の手元スイッチを開けるとコンセントがあります。掃除の度にかがんでコンセントを抜き差ししなくてもすむように配慮しました。
 Installing electric vehicle charging dedicated outlet that does not emit CO2. Also we have established separate cleaner for the outlet to use in the car of cleaning.
CO2を排出しない電気自動車専用充電コンセントを設置。車内の清掃に使う掃除機用コンセントも別に設置しています。
Shopping centreショッピングセンター  If until Ario Hashimoto shop 2360m (28 minutes walk) a little stretch the legs, "Ario Hashimoto", "Costco", "Cain Home", etc., Large-scale commercial facilities have been familiar dotted.
アリオ橋本店まで2360m (徒歩28分)ちょっと足をのばせば、「アリオ橋本」、「コストコ」、「カインズホーム」など、大型商業施設が身近に点在しています。
Park公園  Mitsudake eyes Mt. Nishi up to 150m (2 minutes walk) Tama Hills rich natural overflowing park is located in the familiar.
三ツ目山西公園まで150m (徒歩2分)多摩丘陵の豊かな自然にあふれる公園が身近にあります。
 550m up to three tree first mountain park (5 minutes walk)
三ツ目山公園まで550m (徒歩5分)
 1020m up to three tree eyes Square (11 minutes walk)
三ツ目広場まで1020m (徒歩11分)
 Metropolitan Osanai to back park 1510m (17 minutes walk) multipurpose open space and barbecue Square park, There is such Dokkuran. One of the attractions is also beautiful cherry trees.
都立小山内裏公園まで1510m (徒歩17分)園内には多目的広場やバーベキュー広場、ドックランなどがあります。美しい桜並木も見所の一つ。
Primary school小学校  Koyama months hill to elementary school 770m (8 minutes walk) a 10-minute walk from the elementary school. Is fully equipped happy living environment in child-rearing family.
小山ヶ丘小学校まで770m (徒歩8分)小学校まで徒歩10分。子育てファミリーにうれしい住環境が整っています。
Location
|