New Homes » Kanto » Tokyo » Machida
 
| | Machida, Tokyo 東京都町田市 |
| Odakyu line "Machida" bus 9 minutes Hinata village walk 2 minutes 小田急線「町田」バス9分ひなた村歩2分 |
| Machida Station, Fulfilling city's commercial facility can use 2 lines of JR Yokohama line and Odakyu line in the express station 町田駅は、急行停車駅でJR横浜線と小田急線の2路線が使え商業施設の充実した街 |
| Two whole building car space The latest enhancement equipment specifications [kitchen] Artificial marble sink, Dish dryer, Soft clothing storage, Current plate smart hood exhaust fan [bathroom] Mist shower, 16 inches TV, Warm bath, Drying heating function ventilator etc. 全棟カースペース2台 最新の充実設備仕様 【キッチン】人造大理石シンク、食洗乾燥機、ソフトクロージング収納、整流板スマートフード換気扇 【浴室】ミストシャワー、16インチTV、保温浴槽、乾燥暖房機能換気扇 etc. |
Seller comments 売主コメント | | 4 Building 4号棟 | Features pickup 特徴ピックアップ | | Corresponding to the flat-35S / Parking two Allowed / 2 along the line more accessible / Facing south / System kitchen / Bathroom Dryer / Yang per good / All room storage / Siemens south road / LDK15 tatami mats or more / Or more before road 6m / Shaping land / Mist sauna / Washbasin with shower / Face-to-face kitchen / Security enhancement / Toilet 2 places / Bathroom 1 tsubo or more / 2-story / Double-glazing / Warm water washing toilet seat / TV with bathroom / Underfloor Storage / The window in the bathroom / TV monitor interphone / Built garage / Dish washing dryer / Water filter / Attic storage フラット35Sに対応 /駐車2台可 /2沿線以上利用可 /南向き /システムキッチン /浴室乾燥機 /陽当り良好 /全居室収納 /南側道路面す /LDK15畳以上 /前道6m以上 /整形地 /ミストサウナ /シャワー付洗面台 /対面式キッチン /セキュリティ充実 /トイレ2ヶ所 /浴室1坪以上 /2階建 /複層ガラス /温水洗浄便座 /TV付浴室 /床下収納 /浴室に窓 /TVモニタ付インターホン /ビルトガレージ /食器洗乾燥機 /浄水器 /屋根裏収納 | Event information イベント情報 | | ~ ~ A variety of equipment ・ Standard specification ~ ~ ・ roof Hiroshi tiled ・ outer wall Soft ricin finish + Ikamu original ripple finish ・ System kitchen Soft-close storage Dishwasher All-in-one water purification plug (shower faucet) Floor sliding door Smart hood exhaust fan ・ Wide vanity Three-sided mirror (with storage) Single lever shower faucet ・ Unit bus (the next-generation energy-saving standards) Heating function with dryer Mist sauna standard Artificial marble of warm bath (high insulation specification) Bathroom 16 inches TV Karratto floor ・ Entrance, Fingerprint lock ・ Intercom with color monitor (with recording function) ・ Attic storage of effective space about 2 mat ensure ・ Joinery door, Receipt Interior high door specification ・ Each floor toilet Bidet Warm Rhett ・ lighting equipment Living: Down Light 4 lights (with dimming function) ・ Aluminum sash All room part pair glass All opening screen door standard First floor of the shutter and the surface lattice standard ・ Ground survey, Ground improvement and construction according to the state ・ Construction Reinforced concrete mat foundation Basic packing method Glulam 3.5 cun angle (continuous columns 4 cun angle) etc ... ※ The above standard specifications are subject to change without prior notice. Please note. ~ ~ 多彩な設備・標準仕様 ~ ~ ・屋根 洋瓦葺き・外壁 ソフトリシン仕上げ+イーカムオリジナルリップル仕上げ・システムキッチン ソフトクローズ収納 食洗機 オールインワン浄水栓(シャワー水栓) フロアスライドドア スマートフード換気扇・ワイド洗面化粧台 三面鏡(収納付き) シングルレバーシャワー水栓・ユニットバス(次世代省エネ基準) 暖房機能付乾燥機 ミストサウナ標準 人造大理石の保温浴槽(高断熱仕様) 浴室16インチテレビ カッラット床・玄関、指紋認証施錠・カラーモニター付インターホン(録画機能付き)・有効スペース約2畳確保の小屋裏収納・建具 扉、収納 インテリアハイドア仕様・各階トイレ ウォシュレット ウォームレット・照明器具 リビング:ダウンライト4灯(調光機能付き)・アルミサッシ 全居室部ペアガラス 全開口部網戸標準 1階部分シャッター及び面格子標準・地盤調査、状態に応じ地盤改良施工・構造 鉄筋コンクリート造りベタ基礎 基礎パッキン工法 集成材3.5寸角(通し柱4寸角)etc…※上記標準仕様は予告なく変更する場合があります。予めご了承ください。 | Property name 物件名 | | Garbo City Machida Honmachida 10th ガルボシティー町田市本町田10期 | Price 価格 | | 32,500,000 yen ~ 33,800,000 yen 3250万円 ~ 3380万円 | Floor plan 間取り | | 3LDK + S (storeroom) ・ 4LDK 3LDK+S(納戸)・4LDK | Units sold 販売戸数 | | 3 units 3戸 | Total units 総戸数 | | 5 units 5戸 | Land area 土地面積 | | 120.1 sq m (36.33 tsubo) (measured) 120.1m2(36.33坪)(実測) | Building area 建物面積 | | 94.4 sq m ・ 95.22 sq m (28.55 tsubo ・ 28.80 tsubo) (measured) 94.4m2・95.22m2(28.55坪・28.80坪)(実測) | Driveway burden-road 私道負担・道路 | | 16m width asphalt paving 16m幅アスファルト舗装 | Completion date 完成時期(築年月) | | 2013 early December 2013年12月上旬 | Address 住所 | | Machida, Tokyo Honmachida 東京都町田市本町田 | Traffic 交通 | | Odakyu line "Machida" bus 9 minutes Hinata village walk 2 minutes JR Yokohama Line "Machida" bus 9 minutes Hinata village walk 2 minutes 小田急線「町田」バス9分ひなた村歩2分 JR横浜線「町田」バス9分ひなた村歩2分
| Related links 関連リンク | | [Related Sites of this company] 【この会社の関連サイト】 | Person in charge 担当者より | | [Regarding this property.] Hinata village park Ya, kindergarten, Is also a rich living environment optimal green is in nursery school and child-rearing. 【この物件について】ひなた村の公園や、幼稚園、保育園と子育てには最適な緑も豊かな住環境です。 | Contact お問い合せ先 | | TEL: 0800-603-1295 [Toll free] mobile phone ・ Also available from PHS Caller ID is not notified Please contact the "saw SUUMO (Sumo)" If it does not lead, If the real estate company TEL:0800-603-1295【通話料無料】携帯電話・PHSからもご利用いただけます 発信者番号は通知されません 「SUUMO(スーモ)を見た」と問い合わせください つながらない方、不動産会社の方は
| Most price range 最多価格帯 | | 32 million yen (2 units) 3200万円台(2戸) | Building coverage, floor area ratio 建ぺい率・容積率 | | Kenpei rate: 40%, Volume ratio: 80% 建ペい率:40%、容積率:80% | Time residents 入居時期 | | Consultation 相談 | Land of the right form 土地の権利形態 | | Ownership 所有権 | Structure and method of construction 構造・工法 | | Wooden 2-story (framing method) 木造2階建(軸組工法) | Construction 施工 | | Ltd. Ikamu 株式会社イーカム | Use district 用途地域 | | One low-rise 1種低層 | Land category 地目 | | Residential land 宅地 | Overview and notices その他概要・特記事項 | | Building confirmation number: No. H25 confirmation architecture KBI00358 other 建築確認番号:第H25確認建築KBI00358号他 | Company profile 会社概要 | | <Seller> Kanagawa Governor (2) No. 024804 (the company), Kanagawa Prefecture Building Lots and Buildings Transaction Business Association (Corporation) metropolitan area real estate Fair Trade Council member (Ltd.) Ikamu Yubinbango252-0143 Sagamihara City, Kanagawa Prefecture Midori-ku Hashimoto 3-11-8 <売主>神奈川県知事(2)第024804号(社)神奈川県宅地建物取引業協会会員 (公社)首都圏不動産公正取引協議会加盟(株)イーカム〒252-0143 神奈川県相模原市緑区橋本3-11-8 |
Station駅  JR Yokohama Line Machida Station
JR横浜線町田駅
 Roof Hiroshi tiled Outer wall soft ricin finish + Ikamu original ripple
屋根洋瓦葺 外壁ソフトリシン仕上げ+イーカムオリジナルリップル
The entire compartment Figure全体区画図  section, layout drawing
区画、配置図
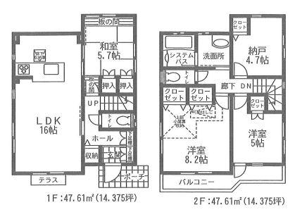
Floor plan間取り図  (Building 2), Price 32,800,000 yen, 3LDK+S, Land area 120.1 sq m , Building area 95.22 sq m
(2号棟)、価格3280万円、3LDK+S、土地面積120.1m2、建物面積95.22m2
 (3 Building), Price 32,500,000 yen, 4LDK, Land area 120.1 sq m , Building area 94.4 sq m
(3号棟)、価格3250万円、4LDK、土地面積120.1m2、建物面積94.4m2
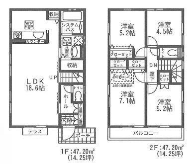
 (4 Building), Price 33,800,000 yen, 3LDK+S, Land area 120.1 sq m , Building area 94.4 sq m
(4号棟)、価格3380万円、3LDK+S、土地面積120.1m2、建物面積94.4m2
Shopping centreショッピングセンター  2700m until Machida Tokyu Twins
町田東急ツインズまで2700m
Hospital病院  1260m until Machida Municipal Hospital
町田市民病院まで1260m
Kindergarten ・ Nursery幼稚園・保育園  1230m up the mountain lily kindergarten
山ゆり幼稚園まで1230m
Primary school小学校  300m until Machida third elementary school
町田第三小学校まで300m
Park公園  400m to the sun park
ひなた公園まで400m
Kitchenキッチン  Artificial marble sink, Dish dryer, Soft-close storage, Smart hood exhaust fan
人造大理石シンク、食洗乾燥機、ソフトクローズ収納、スマートフード換気扇
Bathroom浴室  Mist sauna, 16 inches TV, Warm bath, Drying heating function ventilator
ミストサウナ、16インチTV、保温浴槽、乾燥暖房機能換気扇
Livingリビング  Face-to-face kitchen, door, Joinery Interior high door specification
対面キッチン、扉、建具インテリアハイドア仕様
Receipt収納  Ceiling height shoe closet
天井高シューズクロゼット
Non-living roomリビング以外の居室  door, Joinery Interior high door specification
扉、建具インテリアハイドア仕様
Local photos, including front road前面道路含む現地写真  All five compartment, Two car space
全5区画、カースペース2台
Exhibition hall / Showroom展示場/ショウルーム  Ikamu Hashimoto showrooms
イーカム橋本ショールーム
Kindergarten ・ Nursery幼稚園・保育園  Saffron 700m to kindergarten
さふらん幼稚園まで700m
Station駅  2700m to Machida Station
町田駅まで2700m
Location
|