New Homes » Kanto » Tokyo » Machida
 
| | Machida, Tokyo 東京都町田市 |
| Odakyu line "Machida" bus 22 Bunsakurakyo walk 7 minutes 小田急線「町田」バス22分桜橋 歩7分 |
| Near Super ・ Three wayside Available ・ City gas ・ Front road 6m Parking two Allowed, 2 along the line more accessible, Super close, It is close to the city, System kitchen, Yang per good, All room storage, A quiet residential area, スーパー近い・三沿線利用可・都市ガス・前面道路6m 駐車2台可、2沿線以上利用可、スーパーが近い、市街地が近い、システムキッチン、陽当り良好、全居室収納、閑静な住宅地、 |
| Nearby park, etc. It is a quiet residential area. Site area of about 50 square meters have car space in the spacious house also 2 ~ 3 units can be. Zushi Elementary School 1300m Oyamada junior high school 1100m Super Sanwa Koyamada shop 1100m Sakuradai nursery 1100m Hikone orthopedic clinic 1500m Parking two Allowed, 2 along the line more accessible, Super close, It is close to the city, System kitchen, Yang per good, All room storage, A quiet residential area, LDK15 tatami mats or more, Or more before road 6mese-style room, Washbasin with shower, Face-to-face kitchen, Barrier-free, Toilet 2 places, Bathroom 1 tsubo or more, 2-story, Double-glazing, Warm water washing toilet seat, Underfloor Storage, The window in the bathroom, TV monitor interphone, City gas 近隣に公園等あり閑静な住宅街です。敷地面積約50坪あり広々した住宅でカースペースも2 ~ 3台可能。 図師小学校1300m 小山田中学校1100m スーパー三和小山田店1100m 桜台保育園1100m 彦根整形外科クリニック1500m 駐車2台可、2沿線以上利用可、スーパーが近い、市街地が近い、システムキッチン、陽当り良好、全居室収納、閑静な住宅地、LDK15畳以上、前道6m以上、和室、シャワー付洗面台、対面式キッチン、バリアフリー、トイレ2ヶ所、浴室1坪以上、2階建、複層ガラス、温水洗浄便座、床下収納、浴室に窓、TVモニタ付インターホン、都市ガス |
Features pickup 特徴ピックアップ | | Parking two Allowed / 2 along the line more accessible / Super close / It is close to the city / System kitchen / Yang per good / All room storage / A quiet residential area / LDK15 tatami mats or more / Or more before road 6m / Japanese-style room / Washbasin with shower / Face-to-face kitchen / Barrier-free / Toilet 2 places / Bathroom 1 tsubo or more / 2-story / Double-glazing / Warm water washing toilet seat / Underfloor Storage / The window in the bathroom / TV monitor interphone / City gas 駐車2台可 /2沿線以上利用可 /スーパーが近い /市街地が近い /システムキッチン /陽当り良好 /全居室収納 /閑静な住宅地 /LDK15畳以上 /前道6m以上 /和室 /シャワー付洗面台 /対面式キッチン /バリアフリー /トイレ2ヶ所 /浴室1坪以上 /2階建 /複層ガラス /温水洗浄便座 /床下収納 /浴室に窓 /TVモニタ付インターホン /都市ガス | Price 価格 | | 29,800,000 yen ・ 30,800,000 yen 2980万円・3080万円 | Floor plan 間取り | | 4LDK 4LDK | Units sold 販売戸数 | | 2 units 2戸 | Land area 土地面積 | | 165.04 sq m (registration) 165.04m2(登記) | Building area 建物面積 | | 98.53 sq m ・ 99.36 sq m (measured) 98.53m2・99.36m2(実測) | Driveway burden-road 私道負担・道路 | | Road width: 5m ~ 6m 道路幅:5m ~ 6m | Completion date 完成時期(築年月) | | December 2013 2013年12月 | Address 住所 | | Machida, Tokyo Shimooyamada cho 東京都町田市下小山田町 | Traffic 交通 | | Odakyu line "Machida" bus 22 Bunsakurakyo walk 7 minutes JR Yokohama Line "Fuchinobe" 10 minutes Sakuradai chome walk 11 minutes by bus Keio Sagamihara Line "Tamasakai" bus 17 minutes Tadao metropolitan housing before walking 19 minutes 小田急線「町田」バス22分桜橋 歩7分 JR横浜線「淵野辺」バス10分桜台一丁目 歩11分 京王相模原線「多摩境」バス17分忠生都営住宅前 歩19分
| Person in charge 担当者より | | Rep Asama Yuki Age: 20 Daigyokai Experience: 10 years "that important on looking house is the concept of your own, What kind of property, where, You need want or express purpose to buy how much. That we will support from a variety of perspectives regardless only to a variety of information and comparison such as a single point also for " 担当者浅間 勇輝年齢:20代業界経験:10年「住まい探しの上で大事な事はお客様自身のコンセプトです、どんな物件を、どこで、いくらで買いたいか明確な目的が必要です。その為にも様々な情報や比較対象等一点だけに拘らず様々な視点からサポート致します」 | Contact お問い合せ先 | | TEL: 0800-603-8480 [Toll free] mobile phone ・ Also available from PHS Caller ID is not notified Please contact the "saw SUUMO (Sumo)" If it does not lead, If the real estate company TEL:0800-603-8480【通話料無料】携帯電話・PHSからもご利用いただけます 発信者番号は通知されません 「SUUMO(スーモ)を見た」と問い合わせください つながらない方、不動産会社の方は
| Building coverage, floor area ratio 建ぺい率・容積率 | | Kenpei rate: 40%, Volume ratio: 80% 建ペい率:40%、容積率:80% | Time residents 入居時期 | | Consultation 相談 | Land of the right form 土地の権利形態 | | Ownership 所有権 | Structure and method of construction 構造・工法 | | Wooden 2-story 木造2階建 | Use district 用途地域 | | One low-rise 1種低層 | Land category 地目 | | Residential land 宅地 | Overview and notices その他概要・特記事項 | | Contact: Asama Yuki, Building confirmation number: 01327 担当者:浅間 勇輝、建築確認番号:01327 | Company profile 会社概要 | | <Mediation> Kanagawa Governor (2) Article 026 475 issue (stock) residence of square HOMESyubinbango252-0231 Sagamihara, Kanagawa Prefecture, Chuo-ku, Sagamihara 5-1-2A <仲介>神奈川県知事(2)第026475号(株)住まいの広場HOMES〒252-0231 神奈川県相模原市中央区相模原5-1-2A |
Local appearance photo現地外観写真  Nearby park, etc. It is a quiet residential area. Site area of about 50 square meters have car space in the spacious house also 2 ~ 3 units can be.
近隣に公園等あり閑静な住宅街です。敷地面積約50坪あり広々した住宅でカースペースも2 ~ 3台可能。
Livingリビング  LDK16 Pledge, All room pair glass, Shutters standard
LDK16帖、全居室ペアガラス、雨戸標準
Kitchenキッチン  Artificial marble counter ・ Pair type water purifier with system Kitchen
人造大理石カウンター・一対型浄水器付システムキッチン
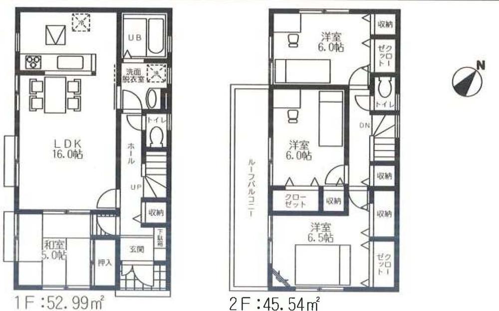
Floor plan間取り図  (2), Price 29,800,000 yen, 4LDK, Land area 165.04 sq m , Building area 98.53 sq m
(2)、価格2980万円、4LDK、土地面積165.04m2、建物面積98.53m2
 Local appearance photo
現地外観写真
Bathroom浴室  1 tsubo size ・ Barrier-free type ・ With bathroom dryer
1坪サイズ・バリアフリータイプ・浴室乾燥機付
 Non-living room
リビング以外の居室
 Entrance
玄関
 Wash basin, toilet
洗面台・洗面所
 Receipt
収納
 Toilet
トイレ
 Balcony
バルコニー
Supermarketスーパー  1100m until Super Sanwa Koyamada shop
スーパー三和小山田店 まで1100m
 View photos from the dwelling unit
住戸からの眺望写真
 The entire compartment Figure
全体区画図
Floor plan間取り図  (1), Price 30,800,000 yen, 4LDK, Land area 165.04 sq m , Building area 99.36 sq m
(1)、価格3080万円、4LDK、土地面積165.04m2、建物面積99.36m2
 Non-living room
リビング以外の居室
 Receipt
収納
Kindergarten ・ Nursery幼稚園・保育園  Sakuradai 1100m to nursery school
桜台保育園 まで1100m
 Non-living room
リビング以外の居室
 Receipt
収納
Location
|