New Homes » Kanto » Tokyo » Machida
 
| | Machida, Tokyo 東京都町田市 |
| Odakyu line "Tamagawa Gakuen before" walk 13 minutes 小田急線「玉川学園前」歩13分 |
| (Seller direct sales !!) Heart full Town Tamagawa Gakuen before (Machida Tamagawa Gakuen 3-chome) station 13 minutes! It will soon complete ~ 3,980 yen ~ Streets in the old condominium complex ~ It is a direct sales Property! (売主直売!!)ハートフルタウン玉川学園前(町田市玉川学園3丁目)駅13分!間もなく完成します ~ 3,980万円 ~ 旧分譲団地内の街並 ~ 直売物件です! |
| ◆ Seller direct sales! Streets in the old condominium complex! It is a direct sales Property! ◆ ○ Odakyu line " Tamagawa Gakuen before " station Walk 13 minutes ○ 4LDK Living of 13 quires more than spacious space + stand-alone Japanese-style 5 quires more than Popular face-to-face kitchen adoption ○ surrounding living environment is good in a quiet residential area East road, Feeling of freedom & yang per in about 5m road ◎ Garage is also happy to! (Possible two garage) ○ wide garden is also attractive You come true hope of the family! ○ bonus repayment Mu Even 100% loan It is available for purchase at 110,000 yen. Try as compared to now rent + parking Badai document request ・ Because of local your tour do not hesitate busy season, Thank you accepted by phone. Kichijoji office 0120-15-8848 until ◆売主直売!旧分譲団地内の街並み! 直売物件です!◆○小田急線 『 玉川学園前 』 駅 徒歩13分○4LDK リビング13帖超のひろびろ空間+独立型の和室5帖超 人気の対面キッチン採用○周辺は閑静な住宅街で住環境良好です 東側道路は、約5m道路で解放感&陽当り◎ 車庫入れもラクラクです! (車庫2台可能)○ひろいお庭も魅力的 ご家族の希望がかないます!○ボーナス返済無 100%ローンでも 11万円台で購入可能です。 今の家賃+駐車場代と比べてみて下さい資料請求・現地ご見学はお気軽に繁忙期のため、お電話にて受付をお願いします。吉祥寺営業所 0120‐15‐8848迄 |
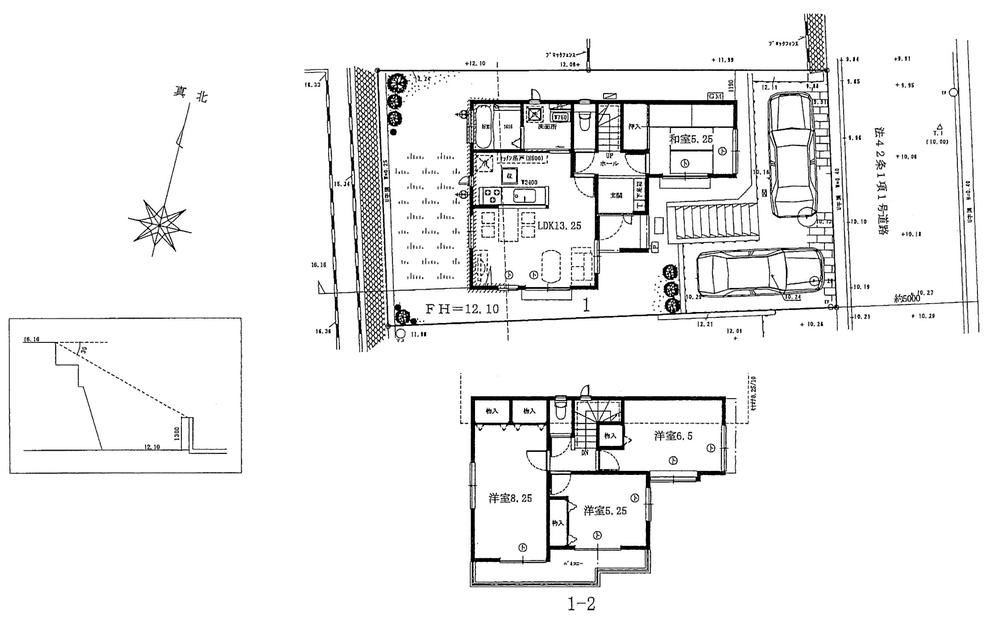
Features pickup 特徴ピックアップ | | Construction housing performance with evaluation / Design house performance with evaluation / Corresponding to the flat-35S / Pre-ground survey / Vibration Control ・ Seismic isolation ・ Earthquake resistant / Seismic fit / Year Available / LDK20 tatami mats or more / Energy-saving water heaters / Super close / Facing south / System kitchen / Yang per good / All room storage / Flat to the station / Siemens south road / Around traffic fewer / Corner lot / Shaping land / Washbasin with shower / Face-to-face kitchen / Toilet 2 places / Bathroom 1 tsubo or more / 2-story / Double-glazing / Zenshitsuminami direction / Warm water washing toilet seat / Underfloor Storage / The window in the bathroom / TV monitor interphone / Leafy residential area / Mu front building / Water filter / City gas / Flat terrain 建設住宅性能評価付 /設計住宅性能評価付 /フラット35Sに対応 /地盤調査済 /制震・免震・耐震 /耐震適合 /年内入居可 /LDK20畳以上 /省エネ給湯器 /スーパーが近い /南向き /システムキッチン /陽当り良好 /全居室収納 /駅まで平坦 /南側道路面す /周辺交通量少なめ /角地 /整形地 /シャワー付洗面台 /対面式キッチン /トイレ2ヶ所 /浴室1坪以上 /2階建 /複層ガラス /全室南向き /温水洗浄便座 /床下収納 /浴室に窓 /TVモニタ付インターホン /緑豊かな住宅地 /前面棟無 /浄水器 /都市ガス /平坦地 | Event information イベント情報 | | (Please be sure to ask in advance) [The shop, Property Location ・ Floor plan ・ We have published all the compartment view (including the road with). ] Because of the busy season, Thank you accepted by phone. Free dial 0120-15-8848 Our sales listing is, You can also see in the building. Complete listing is of course, You can also see your freely in the property under construction. Marantz rather, I thought firm like seeing a structural framework can not be seen easily in the post-completion. Your tour at any time is possible. If you wish to site visits, Please contact us in advance. Specification ・ We will send blueprint. The exact (including planned) that blueprint and are using please tell us when and housing equipment is hope the specification has been posted. (事前に必ずお問い合わせください)【当店では、物件所在地・間取り図・区画図(道路付けを含む)を全て公開しております。】繁忙期のため、お電話にて受付をお願いします。フリーダイヤル 0120-15-8848当社の販売物件は、建築中でもご覧いただけます。完成物件はもちろん、建築中の物件でもご自由にご覧いただけます。むしろ当社としましては、完成後ではなかなか見ることが出来ないしっかりとした構造躯体をご覧いただきたいと思っております。いつでもご見学は可能です。現地見学をご希望される場合は、事前にご連絡ください。仕様書・設計図お送りいたします。正確な設計図や使用している(予定を含む)住宅機器などが掲載している仕様書をご希望されるときはお申し付けください。 | Price 価格 | | 39,800,000 yen 3980万円 | Floor plan 間取り | | 4LDK 4LDK | Units sold 販売戸数 | | 1 units 1戸 | Land area 土地面積 | | 148.46 sq m (measured) 148.46m2(実測) | Building area 建物面積 | | 90.67 sq m (measured) 90.67m2(実測) | Driveway burden-road 私道負担・道路 | | Road width: 5m, Asphaltic pavement, Public road 道路幅:5m、アスファルト舗装、公道 | Completion date 完成時期(築年月) | | 2014 end of January schedule 2014年1月末予定 | Address 住所 | | Machida, Tokyo Tamagawa Gakuen 3-26-13 東京都町田市玉川学園3-26-13 | Traffic 交通 | | Odakyu line "Tamagawa Gakuen before" walk 13 minutes Odakyu line "Machida" walk 32 minutes 小田急線「玉川学園前」歩13分 小田急線「町田」歩32分
| Related links 関連リンク | | [Related Sites of this company] 【この会社の関連サイト】 | Person in charge 担当者より | | Person in charge of real-estate and building Kurosaki Fumie Age: 20 Daigyokai Experience: 2 years from now, Residential a smart buy era! My name is Kurosaki of Idasangyo Kichijoji office. Idasangyo is the only direct sales specialty store. Our heart full Town is home to long-lasting and strong strong earthquake. 担当者宅建黒崎 史恵年齢:20代業界経験:2年これからは、住宅をかしこく買う時代です!飯田産業吉祥寺営業所の黒崎と申します。飯田産業唯一の直売専門店です。当社のハートフルタウンは地震に強い丈夫で長持ちする住宅です。 | Contact お問い合せ先 | | TEL: 0800-808-5143 [Toll free] mobile phone ・ Also available from PHS Caller ID is not notified Please contact the "saw SUUMO (Sumo)" If it does not lead, If the real estate company TEL:0800-808-5143【通話料無料】携帯電話・PHSからもご利用いただけます 発信者番号は通知されません 「SUUMO(スーモ)を見た」と問い合わせください つながらない方、不動産会社の方は
| Sale schedule 販売スケジュール | | ◆ Seller direct sales! Streets in the old condominium complex! It is a direct sales Property! ◆ ○ Odakyu line " Tamagawa Gakuen before " station Walk 13 minutes ○ 4LDK Living of 13 quires more than spacious space + stand-alone Japanese-style 5 quires more than Popular face-to-face kitchen adoption ○ surrounding living environment is good in a quiet residential area East road, Feeling of freedom & yang per in about 5m road ◎ Garage is also happy to! (Possible two garage) ○ wide garden is also attractive You come true hope of the family! ○ bonus repayment Mu Even 100% loan It is available for purchase at 110,000 yen. Try as compared to now rent + parking Badai document request ・ Because of local your tour do not hesitate busy season, Thank you accepted by phone. Kichijoji office 0120-15-8848 until ◆売主直売!旧分譲団地内の街並み! 直売物件です!◆○小田急線 『 玉川学園前 』 駅 徒歩13分○4LDK リビング13帖超のひろびろ空間+独立型の和室5帖超 人気の対面キッチン採用○周辺は閑静な住宅街で住環境良好です 東側道路は、約5m道路で解放感&陽当り◎ 車庫入れもラクラクです! (車庫2台可能)○ひろいお庭も魅力的 ご家族の希望がかないます!○ボーナス返済無 100%ローンでも 11万円台で購入可能です。 今の家賃+駐車場代と比べてみて下さい資料請求・現地ご見学はお気軽に繁忙期のため、お電話にて受付をお願いします。吉祥寺営業所 0120‐15‐8848迄 | Building coverage, floor area ratio 建ぺい率・容積率 | | Kenpei rate: 40%, Volume ratio: 80% 建ペい率:40%、容積率:80% | Time residents 入居時期 | | 2014 end of January schedule 2014年1月末予定 | Land of the right form 土地の権利形態 | | Ownership 所有権 | Structure and method of construction 構造・工法 | | Wooden 2-story (panel method) 木造2階建(パネル工法) | Construction 施工 | | Idasangyo (peace of mind and reliability of its own design ・ Construction ・ Condominium sales) 飯田産業(安心と信頼の自社設計・施工・分譲販売) | Use district 用途地域 | | One low-rise 1種低層 | Land category 地目 | | Residential land 宅地 | Other limitations その他制限事項 | | Height district 高度地区 | Overview and notices その他概要・特記事項 | | Contact: Kurosaki Fumie, Building confirmation number: HPA-13-06368-1 No. 担当者:黒崎 史恵、建築確認番号:HPA-13-06368-1号 | Company profile 会社概要 | | <Seller> Minister of Land, Infrastructure and Transport (8) No. 003306 (Ltd.) Idasangyo Kichijoji office Information Center Yubinbango180-0004 Musashino-shi, Tokyo Kichijojihon cho 1-13-9 Daiei Building 1F <売主>国土交通大臣(8)第003306号(株)飯田産業吉祥寺営業所インフォメーションセンター〒180-0004 東京都武蔵野市吉祥寺本町1-13-9大栄ビル1F |
Local photos, including front road前面道路含む現地写真  In one house a quiet residential area nestled in the hill, Car does not pass rarely, We recommend to families with small children come. Local (12 May 2013) Shooting
高台にたたずむ一邸閑静な住宅街で、車もめったに通りません、お子様のいらっしゃるご家庭におススメします。現地(2013年12月)撮影
Local appearance photo現地外観写真  Local (12 May 2013) Shooting
現地(2013年12月)撮影
Local photos, including front road前面道路含む現地写真  Local (12 May 2013) Shooting
現地(2013年12月)撮影
Floor plan間取り図  (1 Building), Price 39,800,000 yen, 4LDK, Land area 148.46 sq m , Building area 90.67 sq m
(1号棟)、価格3980万円、4LDK、土地面積148.46m2、建物面積90.67m2
 The entire compartment Figure
全体区画図
Supermarketスーパー  782m to Super Sanwa Tamagawa Gakuen shop
スーパー三和玉川学園店まで782m
Kindergarten ・ Nursery幼稚園・保育園  Tamagawa 383m to the central kindergarten
玉川中央幼稚園まで383m
Primary school小学校  399m until Machida Municipal Machida fifth elementary school
町田市立町田第五小学校まで399m
Junior high school中学校  1701m until Machida Municipal Minamioya junior high school
町田市立南大谷中学校まで1701m
Supermarketスーパー  964m to business super Machida Minamioya shop
業務スーパー町田南大谷店まで964m
Model house photoモデルハウス写真  Model house
モデルハウス
 Model house
モデルハウス
Rendering (appearance)完成予想図(外観)  ( Building) Rendering
( 号棟)完成予想図
Same specifications photos (living)同仕様写真(リビング)  ( Building) same specification
( 号棟)同仕様
 ( Building) same specification
( 号棟)同仕様
Same specifications photos (Other introspection)同仕様写真(その他内観)  ( Building) same specification
( 号棟)同仕様
Same specifications photos (living)同仕様写真(リビング)  ( Building) same specification
( 号棟)同仕様
 ( Building) same specification
( 号棟)同仕様
Same specifications photos (Other introspection)同仕様写真(その他内観)  ( Building) same specification
( 号棟)同仕様
Same specifications photos (living)同仕様写真(リビング)  ( Building) same specification
( 号棟)同仕様
Otherその他  Now is the era to buy wisely housing! Idasangyo only direct sales specialty store Kichijoji office, we have the introduction of the Heart full Town. Heart full Town of the Company (the seller) is the house that long-lasting and strong strong earthquake.
これからは住宅をかしこく買う時代です!飯田産業唯一の直売専門店吉祥寺営業所はハートフルタウンのご紹介をしております。当社(売主)のハートフルタウンは地震に強い丈夫で長持ちする住宅です。
 Thanks in Tokyo and number one!
おかげさまで東京都ナンバーワン!
Construction ・ Construction method ・ specification構造・工法・仕様  Nice house of strong Iida to earthquake
地震に強い飯田のいい家
 Even without damage for the fourth consecutive times of seismic experiment!
連続4回の耐震実験でも損傷なし!
 All property in a residential performance evaluation report of the third-party organization
全物件で第3者機関の住宅性能評価書
Otherその他  Everyone is granted to buy a house
誰もが当たり前に家を買える
Location
|