New Homes » Kanto » Tokyo » Machida
 
| | Machida, Tokyo 東京都町田市 |
| Odakyu line "Tamagawa Gakuen before" walk 13 minutes 小田急線「玉川学園前」歩13分 |
| Tamagawagakuen Mae walk 13 minutes newly built single-family Pre-ground survey, 2 along the line more accessible, Facing south, System kitchen, Bathroom Dryer, Siemens south road, Or more before road 6m, Bathroom 1 tsubo or more, 2-story, Double-glazing, In the bathroom 玉川学園前駅徒歩13分新築戸建 地盤調査済、2沿線以上利用可、南向き、システムキッチン、浴室乾燥機、南側道路面す、前道6m以上、浴室1坪以上、2階建、複層ガラス、浴室に |
| Minamioya Elementary School 1400m Minamioya junior high school 1400m Santoku Honmachida shop 350m Business super Machida Minamioya shop 500m Onodera clinic 550m Pre-ground survey, 2 along the line more accessible, Facing south, System kitchen, Bathroom Dryer, Siemens south road, Or more before road 6m, Bathroom 1 tsubo or more, 2-story, Double-glazing, The window in the bathroom, All living room flooring, City gas 南大谷小学校1400m 南大谷中学校1400m 三徳本町田店350m 業務スーパー町田南大谷店500m 小野寺クリニック550m 地盤調査済、2沿線以上利用可、南向き、システムキッチン、浴室乾燥機、南側道路面す、前道6m以上、浴室1坪以上、2階建、複層ガラス、浴室に窓、全居室フローリング、都市ガス |
Features pickup 特徴ピックアップ | | Pre-ground survey / 2 along the line more accessible / Facing south / System kitchen / Bathroom Dryer / Bathroom 1 tsubo or more / 2-story / Double-glazing / The window in the bathroom / All living room flooring / City gas 地盤調査済 /2沿線以上利用可 /南向き /システムキッチン /浴室乾燥機 /浴室1坪以上 /2階建 /複層ガラス /浴室に窓 /全居室フローリング /都市ガス | Price 価格 | | 24,800,000 yen 2480万円 | Floor plan 間取り | | 4LDK 4LDK | Units sold 販売戸数 | | 1 units 1戸 | Land area 土地面積 | | 73.92 sq m (measured) 73.92m2(実測) | Building area 建物面積 | | 58.31 sq m (registration) 58.31m2(登記) | Driveway burden-road 私道負担・道路 | | Nothing, East 4.3m width 無、東4.3m幅 | Completion date 完成時期(築年月) | | June 2014 2014年6月 | Address 住所 | | Machida, Tokyo Minamioya 東京都町田市南大谷 | Traffic 交通 | | Odakyu line "Tamagawa Gakuen before" walk 13 minutes JR Yokohama Line "Machida" bus 11 minutes shrine before walk 3 minutes Odakyu line "Tsurukawa" 40 minutes shrine before walk 3 minutes by bus 小田急線「玉川学園前」歩13分 JR横浜線「町田」バス11分神社前歩3分 小田急線「鶴川」バス40分神社前歩3分
| Person in charge 担当者より | | Personnel FP Keiji Osawa Age: 40 Daigyokai Experience: 20 years real estate purchase is difficult. That's why you cage kept in mind for the first time of the easy-to-understand carefully even better. It is not in selling all there is to it. It will be a long-term relationship. We are working responsibly. 担当者FP大澤啓二年齢:40代業界経験:20年不動産購入は難しいことです。だからこそ初めての方にもわかりやすく丁寧にを心がけて居ります。売ってお終いではありません。長いお付き合いになります。責任を持って取り組んでおります。 | Contact お問い合せ先 | | TEL: 0800-603-8480 [Toll free] mobile phone ・ Also available from PHS Caller ID is not notified Please contact the "saw SUUMO (Sumo)" If it does not lead, If the real estate company TEL:0800-603-8480【通話料無料】携帯電話・PHSからもご利用いただけます 発信者番号は通知されません 「SUUMO(スーモ)を見た」と問い合わせください つながらない方、不動産会社の方は
| Building coverage, floor area ratio 建ぺい率・容積率 | | 40% ・ 80% 40%・80% | Time residents 入居時期 | | Consultation 相談 | Land of the right form 土地の権利形態 | | Ownership 所有権 | Structure and method of construction 構造・工法 | | Wooden 2-story 木造2階建 | Use district 用途地域 | | One low-rise 1種低層 | Other limitations その他制限事項 | | Irregular land 不整形地 | Overview and notices その他概要・特記事項 | | Contact: Keiji Osawa, Facilities: Public Water Supply, This sewage, City gas, Building confirmation number: 112157, Parking: car space 担当者:大澤啓二、設備:公営水道、本下水、都市ガス、建築確認番号:112157、駐車場:カースペース | Company profile 会社概要 | | <Mediation> Kanagawa Governor (2) Article 026 475 issue (stock) residence of square HOMESyubinbango252-0231 Sagamihara, Kanagawa Prefecture, Chuo-ku, Sagamihara 5-1-2A <仲介>神奈川県知事(2)第026475号(株)住まいの広場HOMES〒252-0231 神奈川県相模原市中央区相模原5-1-2A |
Local photos, including front road前面道路含む現地写真  Good per sun per south public land in a quiet residential area of Tamagawagakuen Mae 13-minute walk, Green is a rich living environment.
玉川学園前駅徒歩13分の閑静な住宅街で南側公共用地につき陽当たり良好、緑豊かな住環境です。
 Other local
その他現地
 Other local
その他現地
Floor plan間取り図  24,800,000 yen, 4LDK, Land area 73.92 sq m , Building area 58.31 sq m
2480万円、4LDK、土地面積73.92m2、建物面積58.31m2
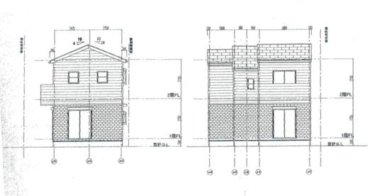
 Rendering (appearance)
完成予想図(外観)
 Local photos, including front road
前面道路含む現地写真
Hospital病院  550m until Onodera clinic
小野寺クリニックまで550m
 Other local
その他現地
 Other
その他
 Local photos, including front road
前面道路含む現地写真
 Other local
その他現地
Otherその他  Santoku Honmachida shop 350m
三徳本町田店350m
 Other local
その他現地
 Other local
その他現地
Other localその他現地  Good per sun, Lush living environment
陽当たり良好、緑豊かな住環境
Location
|