New Homes » Kanto » Tokyo » Machida
 
| | Machida, Tokyo 東京都町田市 |
| JR Yokohama Line "Fuchinobe" walk 26 minutes JR横浜線「淵野辺」歩26分 |
| [Present] now, To customers all contact, Popular soft fluffy HAPPY WAON pillow gift! ! 【プレゼント】今なら、お問い合わせいただいたお客さま全員に、人気のふんわりやわらかHAPPY WAON抱き枕プレゼント!! |
| ■ Comfortable living environment even in the elderly in the handrail with the stairs ■ Adopt a superior construction methods such as Kisopakkin method and pre-cut method ■ Enhancement is housed, such as under-floor storage and attic storage ■階段に手すりつきでお年寄りでも快適な住環境 ■キソパッキン工法やプレカット工法など優れた建築工法を採用 ■床下収納や屋根裏収納など収納が充実 |
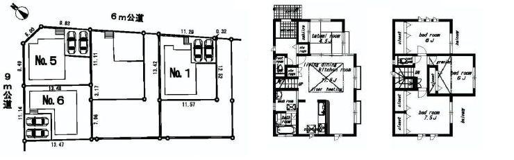
Features pickup 特徴ピックアップ | | Corresponding to the flat-35S / Parking two Allowed / System kitchen / Yang per good / All room storage / Japanese-style room / Shaping land / Face-to-face kitchen / 2-story / Warm water washing toilet seat / Underfloor Storage / The window in the bathroom / TV monitor interphone / Southwestward / Dish washing dryer / Attic storage / Floor heating / Readjustment land within フラット35Sに対応 /駐車2台可 /システムキッチン /陽当り良好 /全居室収納 /和室 /整形地 /対面式キッチン /2階建 /温水洗浄便座 /床下収納 /浴室に窓 /TVモニタ付インターホン /南西向き /食器洗乾燥機 /屋根裏収納 /床暖房 /区画整理地内 | Price 価格 | | 40,300,000 yen 4030万円 | Floor plan 間取り | | 4LDK 4LDK | Units sold 販売戸数 | | 1 units 1戸 | Total units 総戸数 | | 6 units 6戸 | Land area 土地面積 | | 150.2 sq m 150.2m2 | Building area 建物面積 | | 102.68 sq m 102.68m2 | Driveway burden-road 私道負担・道路 | | Nothing, Northeast 6m width 無、北東6m幅 | Completion date 完成時期(築年月) | | October 2013 2013年10月 | Address 住所 | | Machida Negishi Tokyo 1 東京都町田市根岸1 | Traffic 交通 | | JR Yokohama Line "Fuchinobe" walk 26 minutes JR Yokohama Line "Kobuchi" walk 24 minutes JR Yokohama Line "Yabe" walk 31 minutes JR横浜線「淵野辺」歩26分 JR横浜線「古淵」歩24分 JR横浜線「矢部」歩31分
| Related links 関連リンク | | [Related Sites of this company] 【この会社の関連サイト】 | Contact お問い合せ先 | | TEL: 0800-805-3596 [Toll free] mobile phone ・ Also available from PHS Caller ID is not notified Please contact the "saw SUUMO (Sumo)" If it does not lead, If the real estate company TEL:0800-805-3596【通話料無料】携帯電話・PHSからもご利用いただけます 発信者番号は通知されません 「SUUMO(スーモ)を見た」と問い合わせください つながらない方、不動産会社の方は
| Building coverage, floor area ratio 建ぺい率・容積率 | | Fifty percent ・ Hundred percent 50%・100% | Time residents 入居時期 | | Consultation 相談 | Land of the right form 土地の権利形態 | | Ownership 所有権 | Structure and method of construction 構造・工法 | | Wooden 2-story 木造2階建 | Use district 用途地域 | | One low-rise 1種低層 | Overview and notices その他概要・特記事項 | | Facilities: Public Water Supply, This sewage, City gas, Parking: car space 設備:公営水道、本下水、都市ガス、駐車場:カースペース | Company profile 会社概要 | | <Mediation> Minister of Land, Infrastructure and Transport (1) the first 008,536 No. ion housing (Ltd.) Four Members Yubinbango104-0033, Chuo-ku, Tokyo Shinkawa 1-24-12 <仲介>国土交通大臣(1)第008536号イオンハウジング(株)フォーメンバーズ〒104-0033 東京都中央区新川1-24-12 |
Local appearance photo現地外観写真  Exterior Photos
外観写真
Floor plan間取り図  40,300,000 yen, 4LDK, Land area 150.2 sq m , Building area 102.68 sq m floor plan
4030万円、4LDK、土地面積150.2m2、建物面積102.68m2 間取り図
Local appearance photo現地外観写真  Exterior Photos
外観写真
 House before the road
家前道路
Livingリビング  Living 11.5 Pledge introspection
リビング11.5帖内観
Bathroom浴室  Windowed bathroom
窓付きバスルーム
Kitchenキッチン  System kitchen
システムキッチン
Non-living roomリビング以外の居室  Japanese-style room 4.5 Pledge
和室4.5帖
Entrance玄関  Entrance of introspection
玄関の内観
Wash basin, toilet洗面台・洗面所  Independent wash basin
独立洗面台
 Receipt
収納
Toiletトイレ  First floor toilet
1階トイレ
Other introspectionその他内観  First floor staircase
1階階段
Livingリビング  Whole of introspection
全体の内観
Non-living roomリビング以外の居室  Western-style 6 Pledge introspection
洋室6帖内観
Receipt収納  Attic storage
屋根裏収納
Toiletトイレ  Second floor toilet
2階トイレ
Non-living roomリビング以外の居室  Western-style 6 Pledge storage
洋室6帖収納
Receipt収納  Attic storage
屋根裏収納
Non-living roomリビング以外の居室  Western-style 6 Pledge
洋室6帖
Location
|