2014January
46,400,000 yen, 2LDK, 111.75 sq m
New Homes » Kanto » Tokyo » Machida
 
| | Machida, Tokyo 東京都町田市 |
| Odakyu line "Tsurukawa" walk 23 minutes 小田急線「鶴川」歩23分 |
Price 価格 | | 46,400,000 yen 4640万円 | Floor plan 間取り | | 2LDK 2LDK | Units sold 販売戸数 | | 1 units 1戸 | Land area 土地面積 | | 140.1 sq m (measured) 140.1m2(実測) | Building area 建物面積 | | 111.75 sq m (measured) 111.75m2(実測) | Driveway burden-road 私道負担・道路 | | Nothing 無 | Completion date 完成時期(築年月) | | January 2014 2014年1月 | Address 住所 | | Machida, Tokyo Okura-cho 東京都町田市大蔵町 | Traffic 交通 | | Odakyu line "Tsurukawa" walk 23 minutes Odakyu line "Tsurukawa" bus 9 minutes Okura walk 3 minutes 小田急線「鶴川」歩23分 小田急線「鶴川」バス9分大蔵歩3分
| Contact お問い合せ先 | | TEL: 0800-805-6281 [Toll free] mobile phone ・ Also available from PHS Caller ID is not notified Please contact the "saw SUUMO (Sumo)" If it does not lead, If the real estate company TEL:0800-805-6281【通話料無料】携帯電話・PHSからもご利用いただけます 発信者番号は通知されません 「SUUMO(スーモ)を見た」と問い合わせください つながらない方、不動産会社の方は
| Building coverage, floor area ratio 建ぺい率・容積率 | | 40% ・ 80% 40%・80% | Time residents 入居時期 | | Consultation 相談 | Land of the right form 土地の権利形態 | | Ownership 所有権 | Structure and method of construction 構造・工法 | | Wooden 2-story 木造2階建 | Use district 用途地域 | | One low-rise 1種低層 | Other limitations その他制限事項 | | Building area in the penthouse part about 3.64m2 including 建物面積内塔屋部分約3.64m2含 | Overview and notices その他概要・特記事項 | | Facilities: Public Water Supply, This sewage, City gas, Building confirmation number: No. 00375 設備:公営水道、本下水、都市ガス、建築確認番号:00375号 | Company profile 会社概要 | | <Mediation> Minister of Land, Infrastructure and Transport (3) The 006,183 No. housing Information Center Ikuta shop Seongnam Construction (Ltd.) Yubinbango214-0038 Kawasaki City, Kanagawa Prefecture Tama-ku, Ikuta 2-8-6 <仲介>国土交通大臣(3)第006183号住宅情報館 生田店城南建設(株)〒214-0038 神奈川県川崎市多摩区生田2-8-6 |
Local appearance photo現地外観写真  Building appearance
建物外観
Other localその他現地  Local Photos
現地写真
 Local Photos
現地写真
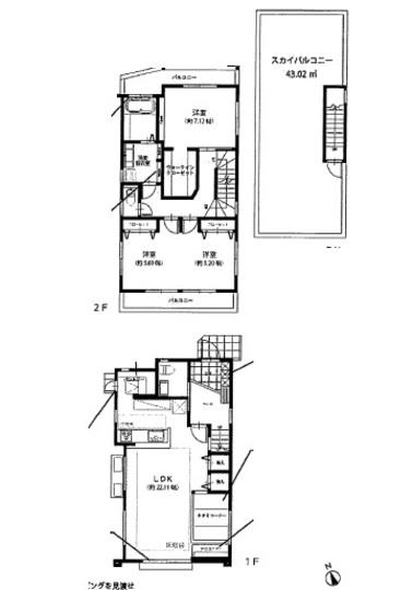
Floor plan間取り図  46,400,000 yen, 2LDK, Land area 140.1 sq m , Building area 111.75 sq m floor plan
4640万円、2LDK、土地面積140.1m2、建物面積111.75m2 間取図
Local photos, including front road前面道路含む現地写真  Frontal road
前面道路
Other localその他現地  Promenade
遊歩道
Location
|